Project Header Image
    Home/

    Jacoby Studios Headquarters

Jacoby Studios Headquarters

Paderborn, 2020

• [Photographer]

By

Simon Menges

• [Photographer]

By

Simon Menges

• [Photographer]

By

Simon Menges
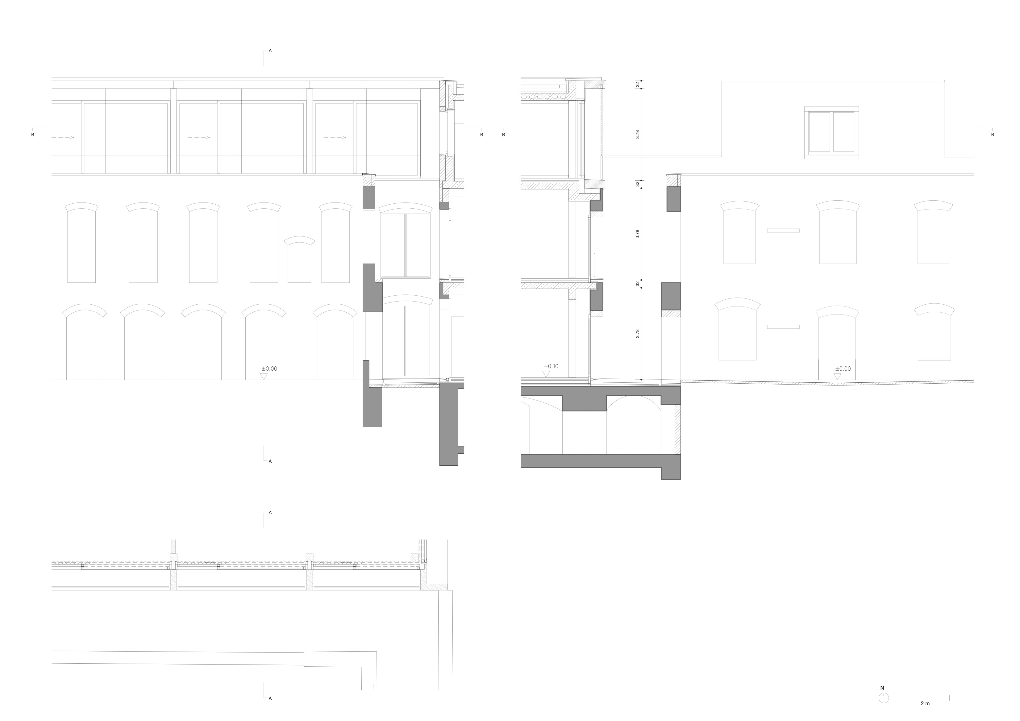
The former ‘St. Vincenz hospital’ is situated in the medieval town centre of Paderborn next to the western tributary of the Pader Springs. The hospital moved out in 2013 and the existing complex has been converted into a new headquarter for a family-run company designed by David Chipperfield Architects Berlin.
The existing ensemble originates from a former seventeenth-century Capuchin monastery. The buildings, which were used as a hospital from 1841 onwards, were severely damaged during the Second World War. Subsequently, the complex underwent several changes and extensions through reconstruction and later modifications. The conversion for the Jacoby Studios involved the removal of the post-war additions, exposing the historic building fabric of the monastery once again. In particular, the chapel façade, the cloister, the east building wing, and the seventeenth-century cellar were preserved and restored, creating a picturesque ruin structure made of quarry-stone masonry with the former cloister at its heart. The complex of monastery and annexes is embedded in a garden designed by Wirtz International.
New extension wings, ranging from two to three-storeys, are arranged in accordance with the orthogonal structure to the north, west, and south of the original buildings. Through the historic entrance gate and the former chapel, visitors access the entrance foyer.
Echoing the historic situation, the ensemble appears once again in the cityscape as a well-balanced composition of different volumes. In the urban landscape of the Pader Springs, the new complex has its own sense of identity, while maintaining historic continuity.

Design team:

David Chipperfield Architects
Landscape Architect: Wirtz International, Schoten, Peter Wirtz, Jan Grauwels
Architect In Charge: David Chipperfield Architects Berlin
Partners: David Chipperfield, Martin Reichert, Alexander Schwarz, David Chipperfield, Martin Reichert
Project Architects: Franziska Rusch, Frithjof Kahl
Project Team: Thomas Benk, Thea Cheret, Dirk Gschwind, Elsa Pandozi, Franziska Rusch, Diana Schaffrannek, Eva-Maria Stadelmann, Amelie Wegner, Dalia Liksaite
Construction Documentation, Executive Architect: Schilling Architekten, Jochem Vieren, Michael Zinnkann
Structural Engineer, Services Engineer, Lighting Consultant: Gantert + Wiemeler engineering planning
Building Physics, Acoustics Fire Consultant: Hansen Ingenieure, Münster HHP West Beratende Ingenieure GmbH

• [Photographer]

By

Simon Menges

• [Photographer]

By

Simon Menges

Project Gallery

Latest products in our catalog