2021
Project by
HAA&DUrban nest in the heart of Berlin.
In contrast to the chaotic urban environment of the city, the apartment, located in the heart of Berlin, is a warm island of quietness and softness. Although it has the features of a private house, it is part of a newly constructed complex.
While creating the layout, emphasis was placed on the bright, open, and pleasant atmosphere that communicates well with the surrounding outdoors and celebrates it. That approach also reflects in the careful selection of minimalistic and timeless furniture, lighting, and the open-space floor plan. The minimal decor has been enhanced by the incorporation of bold paintings by a local artist, adding a personalised touch to the interior. Thanks to its location on the ground floor and extensive glazing, it seems as if the apartment is one with the surrounding garden. A peaceful and cosy atmosphere, however, is ensured by wavy curtains in natural colours that gently let in warm sunlight.
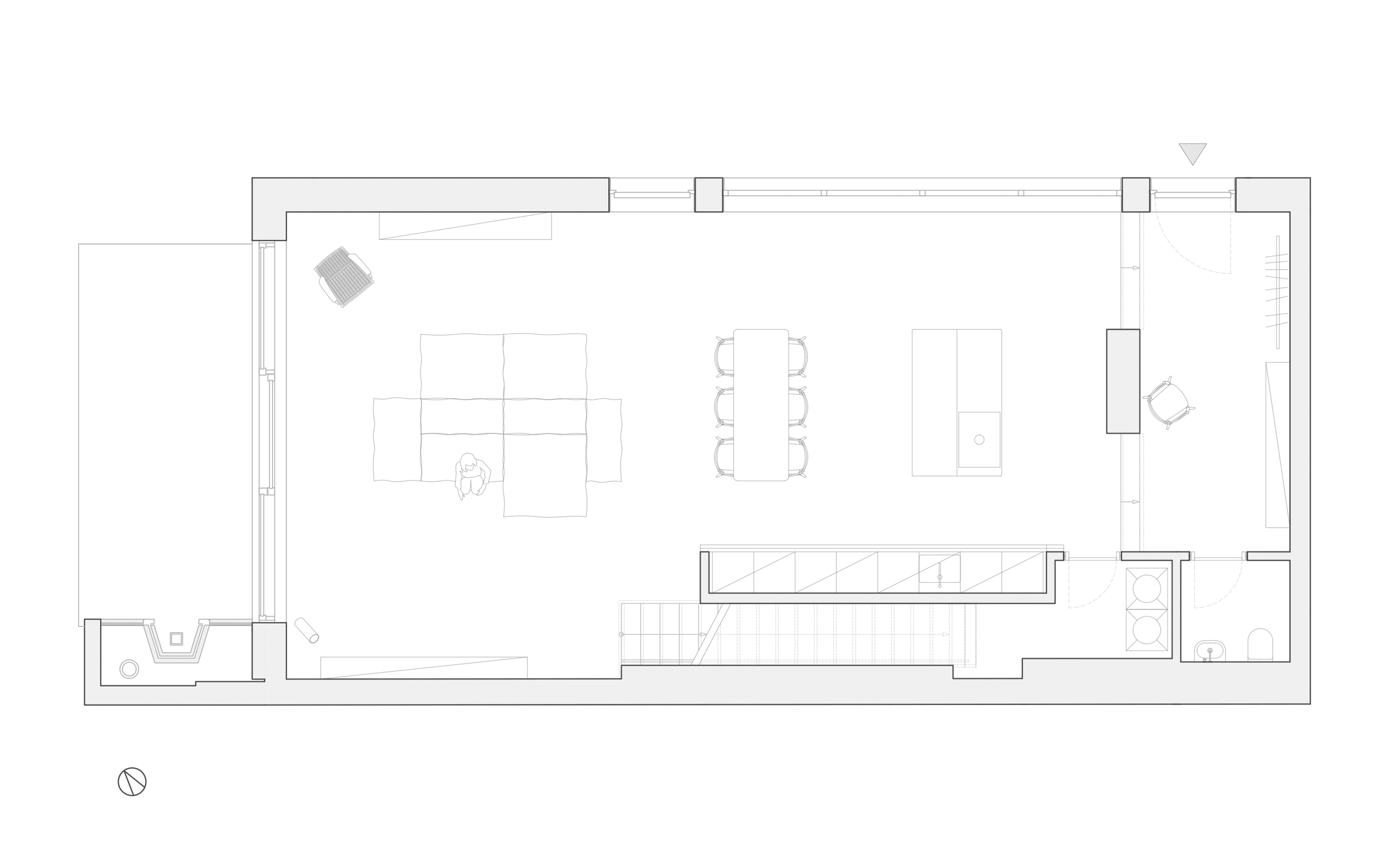
The ground floor is the main semi-public area, where family and friends can meet and spend time together. The private spaces are located on the upper floor, providing intimacy when needed. The kitchen island, dining table and sofa align as gathering points on one strong axis, creating a circular movement around it, highlighting the framed view reflecting from the windows.
The use of wood is a recurring theme in the apartment carpentry and floor, as in many of HAA&D designs. As a timeless, elegant and sustainable material, wood is also known for its positive psychological and general health impact. In its natural colour, wood decorates the space with its quiet presence, not competing with the surrounding green outdoors but completing it and creating peaceful harmony. The wooden carpentry was specially designed by the architects to accommodate all the needs of the residents and was handmade by a local artisan.















