Project Header Image
    Home/

    Beyond House

Beyond House

Melbourne, 2015

• [Photographer]

By

Peter Bennetts

• [Photographer]

By

Peter Bennetts

• [Photographer]

By

Peter Bennetts
With Beyond house we seek to stretch the boundaries of the typical terrace house. The existing heritage house was south-facing, dark, cold, narrow and overshadowed by neighbouring walls on both side boundaries. It's owners, a family of three, were detached from the world beyond. They are serious about sustainability and wanted the new addition to be naturally comfortable, using sun for heating, breezes for cooling, water harvesting, solar power, recycled materials (even re-using the old kitchen!) and integrating and indoor clothes airer.
The owners had lived here for 10 years, and needing more space (and sun), had weighed up moving out but their physical and social connections in Northcote were too strong. So the view to Rucker’s Hill, a geographic and social centre of Northcote, became a focus of the vistas from multiple rooms. Facing north, this view co-incides with getting sun deep into the Living rooms at the back of the house.
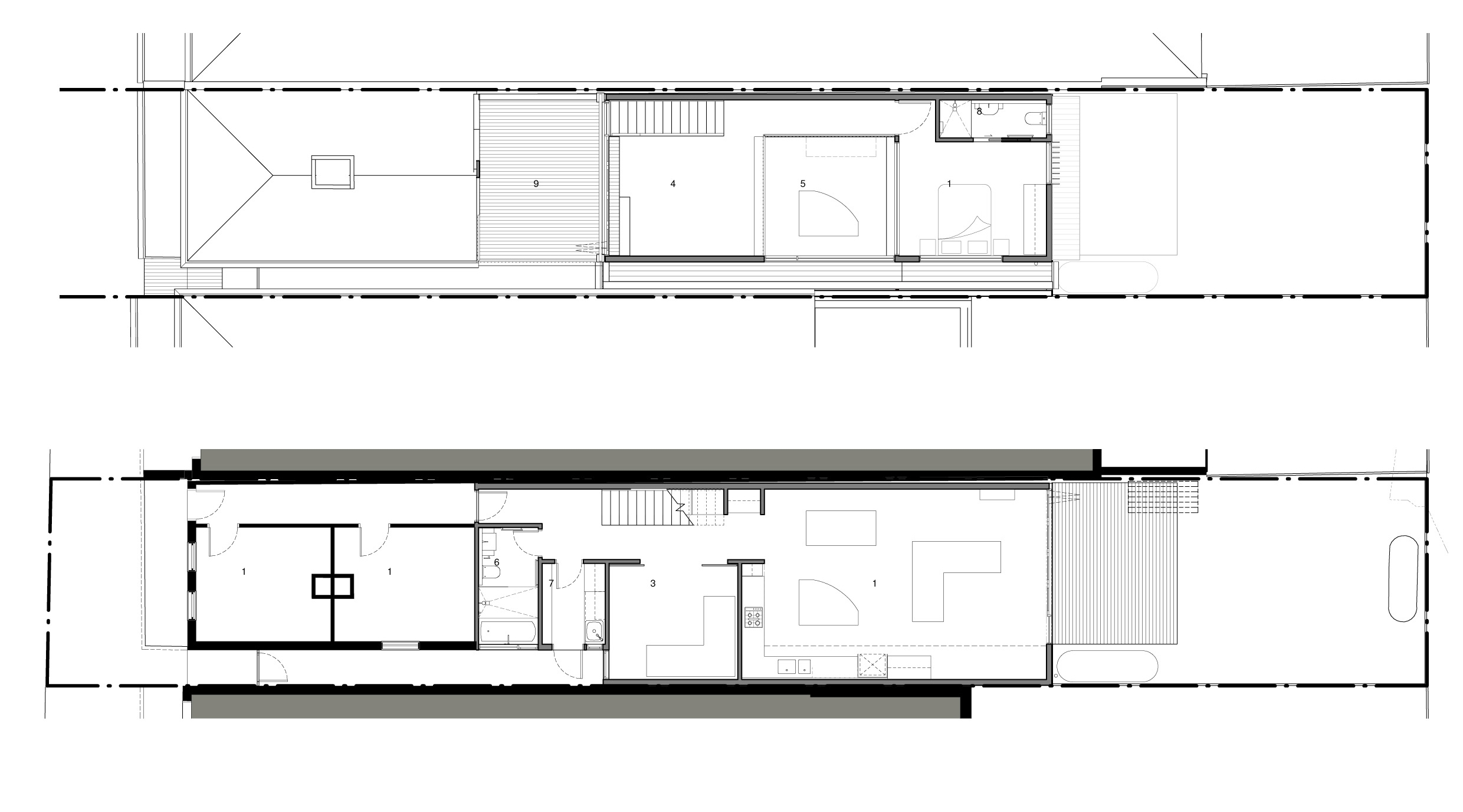
We looked beyond the site constraints and beyond the typical spatial boundaries within a terrace house’s rooms and levels. Through the insertion of central void, adjacent to a multi-purpose studio space that opens onto a roof deck, the occupants engage with the world beyond – the sun, breezes, sky and trees. Internal planters and many carefully placed openable external windows bring the external environment in from beyond. Internal windows allow rooms to be opened to share light, breezes and views across the void.
These elements break down the barriers typically within and around a terrace house to create social connections between occupants unified by the flexible open spaces and visual connections to the sky, tree-tops and now visible Ruckers Hill community beyond. The form of the building is simple, one dramatic form rakes upwards from south to north to catch winter sun while minimising overshading on the back yards. Eaves would have contravened the heritage support so we adopted external operable louvres for sun control. The external envelope clad in simple colorbond and these louvres respond to the context of metal rooftops. The new roof deck becomes an oasis of colour amongst the dull metal and roof-mounted gadgets.
The owners of this house a family of three are serious about sustainability. They don’t own a car, do all their commuting by bike with the occasional use of a flexicar and one of the parents works from home. The owners had lived here for 10 years, and needing more space had weighed up moving out but their physical and social connections in Northcote were too strong. We believe this is important for social sustainability- that buildings can evolve to allow communities to remain strong. Their dedication to living with a low environmental impact is pervasive throughout the architecture from the high-tech active technology solar power on the roof to the low-tech indoor clothes airer hanging from the ceiling. These elements and others are all unashamedly integrated into the architecture.
Active technology includes Solar power and rain water collection for use in the laundry and toilets and grey water from the laundry available for re-use in the garden. Summer sun is controlled with adjustable external louvres that can be operated via automation or even remotely from the occupant’s smart phone. Passive deign is a key consideration. The roof deck and central void allowing north sun to penetrate deep into the ground floor living rooms that usually isn’t possible in a 6m wide terrace house with this orientation and neighbouring buildings on both sides. The sun hits the ground floor thermal mass in the form of an insulated slab on ground providing stable winter temperatures.
Cross ventilation flows from south to north as the prevailing breezes can move through most rooms facilitated by openable internal & external windows and the central void. Landscape is brought into the house with recessed planter boxes softening the internal environment and helping indoor air quality and a visual connection with nature. The roof deck provides a space for productive garden previously unavailable in this south-facing block. Recycled materials from the old house include a window and the 8 year old kitchen that was carefully dismantled and reassembled with the addition of a few new key elements allow it to seamlessly insert into the new space.
Ben Callery Architects

• [Photographer]

By

Peter Bennetts

• [Photographer]

By

Peter Bennetts

Project Gallery