Project Header Image
    Home/

    Tex Tonic House 1

Tex Tonic House 1

Victoria, London, 2010

Brief
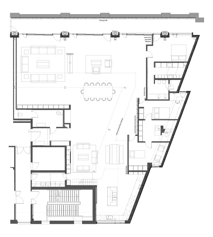
The clients brief in this invited competition was to design two apartments on the top floor of the existing Cent!l London post office and Phillips de Pury art action house in Victoria, London. The client expressed a wish for large volume ‘loft’ spaces and his desire for a contemporary design and functionality. Paul McAneary Architects’ response won the competition with a proposal for expressed natural tectonics through numerous new details, and even developing a new material type - of cast timber bronze.
Concept Design
Since, the two apartments are built on top of the existing Central London post office, the postal delivery system has been the inspi!tional source of the concept design. Paul McAneary Architects responded to the brief by expressing and magnifying the ‘post box component-concept-element’ into large boxes of natural materials accommodating for the private programme. We placed three bedroom boxes within the large double height loft space, to provide rooms for sleeping accommodation: additional to the master bedroom and two further bedrooms, they accommodate for the master bedroom walkin wardrobe, en-suite bathroom and a shared bathroom. In line with a more contemporary domesticity, the private programme area is relatively modest in size. The client expressed the desire to have a large versatile living space perfect for relaxation and parties, as a result the living area is spacious and serves multipurpose events.
The overall architectural language is modest and dramatic at the same time: mixed timber tectonics have been applied with an emphasis on their texture and intrinsic beauty. The amount of ‘vertical natural light’ flooding through the large skylights, walk on glass and the horizontal curtain walling maximise the exquisite effect of the natural grain and pattern of the timber ceiling, oak beams and floor as well as the bronze ‘timber texture’.
Private Accommodation Boxes
The ‘boxes’ of the Tex-Tonic House display natural textured materials. The thick, ‘chunky ‘100mm x 200mm oak sections have been designed to express the depth of the sand blasted oak with an expressed ‘finger’ or ‘comb’ joining detail. The array of boxes is illuminated from below to bring out the natural texture of the material to the full. For the box in the centre we developed a new material, a cast bronze timber cladding. During the preparation process of the timber for the cast we brushed out the summer growth of the timber to articulate the maximum texture. Following this process the timber was burnt to remove the timber’s hair. Following the cast of the bronze an acid solution treatment was applied to achieve a blackened bronze finish. Finally the ridges were brushed to create ‘highlights’ expressing the wood texture of the bronze.
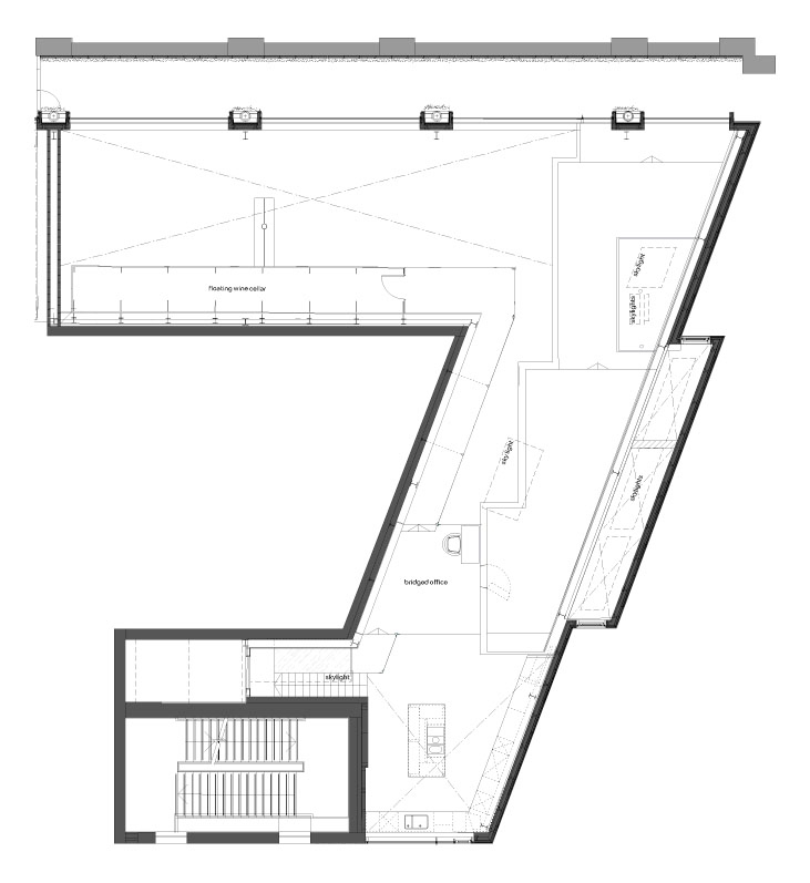
Suspended Timber Mezzanine Floor
The aim was to make the mezzanine floor plate to appear floating: the structural challenge was to reduce floor thickness to the minimum possible, as a result it is only 95mm thick. This was technically achieved by suspending the floor from the steel roof structure. Slender 50mm bars support the very thin floor. The chilled wine store is supported by 10mm thin fins, which apart from the structural purpose, function together with the 2268 metre tension wire as shelving for up to 3200 bottles.
Cantilevered Stairs
The cantilevered solid oak stair treads lead to a structural glass floor which provides natural light and a t!nsparent connection between the lower kitchen and dining areas as well as the office area and wine store at mezzanine level.
Fireplace
The large open plan main living area is broken up by a freestanding sculptu!l concrete fire place, addressing both the living as well as the dining area. The in-situ cast concrete fireplace with exposed timber plank shuttering combines both the natural concrete and natu!l texture of timber. The result is a ‘raw’ material with a very natural texture - a simply beautiful product.
Front Door
The entrance to the Tex-Tonic House is made of 200 year old Rhodesian Teak. It measures 3,70 metre x 1,40 metre and weights approximately 450 kilos. The door is illuminated from above to emphasise the beautiful texture of this precious wood. The oversized appearance and the textured feeling of the door generate the visitor’s enthusiasm and expectation for the interior.
Dining Table
The dining table is similar to the front door made of 200 year old Rhodesian Teak surrounded by 12 mahogany Chippendale dining chairs.
Lighting
Our lighting philosophy was to provide numerous options that could be tuned to different settings and saved to facilitate the multitude of uses of the space at any time of the day or night. Apart from the lighting for the kitchen and dining table, all light fittings are concealed all lighting is therefore indirect as a result minimalistic and atmospheric. The settings can be adjusted from very dim to a dramatic use of light.
Roof Garden
The client is passionate about gardening and vegetation.Therefore we designed a 21 metre long vertical living wall: a self-contained and irrigated planting system incorporating ‘acid yellow’, green and white planting scheme. The long horizontal curtain walling maximises the perception of spacial continuity between the interior and the exterior so that the external roof garden becomes a vital ingredient of the internal living space.
Technology
We aimed to hide the technology as much as possible, to fully integrate all requirements so as the space could remain as calm, uncluttered and contemplative as possible. The space has a fully integrated AV system including B&W surround sound speakers and an integrated monitor into the storage wall which facilitates the numerous and ever increasing types of media. The KNX system that was installed allows the occupier of the spaces to operate light, sound, heating, alarm, blinds, internet and TV from any space within the apartment, from their iPad.
Shortlisted for the Structural Category of the Wood Awards 2011
Private
Paul McAneary Architects Ltd
Contractor: L. S. Construction
Supplier: The Plank Co., Black Isle Bronze Ltd, DirectStone Ltd, Palmalisa Zantetedeschi,
Photographer: Paul McAneary Architects Ltd

Galleria del progetto

Ultimi prodotti nel nostro catalogo

1 Variante

Mostra il prodotto Skyfall del produttore Quasar