Project Header Image
    Home/

    Summerhouse Skåne

Summerhouse Skåne

Österlen

Progetto di

LASC studio

• [Fotografo]

Di

Laura Stamer

• [Fotografo]

Di

Laura Stamer
Set in the Swedish summer retreat area of Österlen, this conversion of an abandoned farmhouse re-thinks and plays on the notion of nostalgia and shelter by combining them with very contemporary desires for space, light and nature.
Houses in the area are traditionally robust and nest-like for protection in the blustery, open landscape. But while the clients were attached to the traditional style, they also wanted to enjoy the nature indoors.
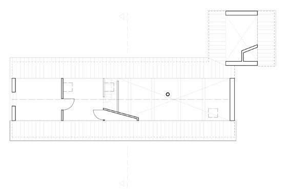
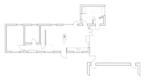
The challenge of the conversion was to re-invent the elements that gave the house a sense of belonging. While elements like original windows and floors were kept, two thirds of the interior walls were torn down. The space was further opened up by inserting large window openings with hidden frames that dissolve in the existing fabric. Accordingly the fine detailing of the old windows is rather accentuated than opposed.
This strategy of reducing the elements is present in all interventions. Materials are limited to concrete, pine wood and smooth white plaster. The pale and bleached palette connects to the scenery outside and is finished off by an infusion of bright coloured surfaces, relating to conceptions of context and memory. The colours are reminiscent of the clients’ many years in China, but also of summer days spent on the nearby beach with its bright towels and kites. The colours are never boldly presented, but appear and disappear as one transitions from one space to the other.
The precise placement of the stair, windows and floors emphasize the meetings of contrasting surfaces. The result is a contemporary simulation of the narrative that old houses often seem to possess. The two-sided stove is placed in the heart of the house, elevated slightly to bring the fire closer to eye-level. The placement of the stove marks the meeting of the new concrete floor with the old wooden floor. This meeting ends precisely at the edge of a large cut-out window.
Having a restrained budget to work with, the key design strategy was to opt for an ‘immaterial luxury’. Using only inexpensive materials opened up for adding elements made on site, like a heated concrete bathroom bench, a wooden shower niche or a custom made steel bench. The result is an unpretentious summerhouse that brings the focus of luxury back to being about experience and simplicity: the direct relation to nature, splashes of bright colours or the sound of water falling on wood.
private
Architects: Jonas Labbé, Johannes Schotanus (LASC studio)

• [Fotografo]

Di

Laura Stamer

• [Fotografo]

Di

Laura Stamer

• [Fotografo]

Di

Laura Stamer

Galleria del progetto

Ultimi prodotti nel nostro catalogo