Project Header Image
    Home/

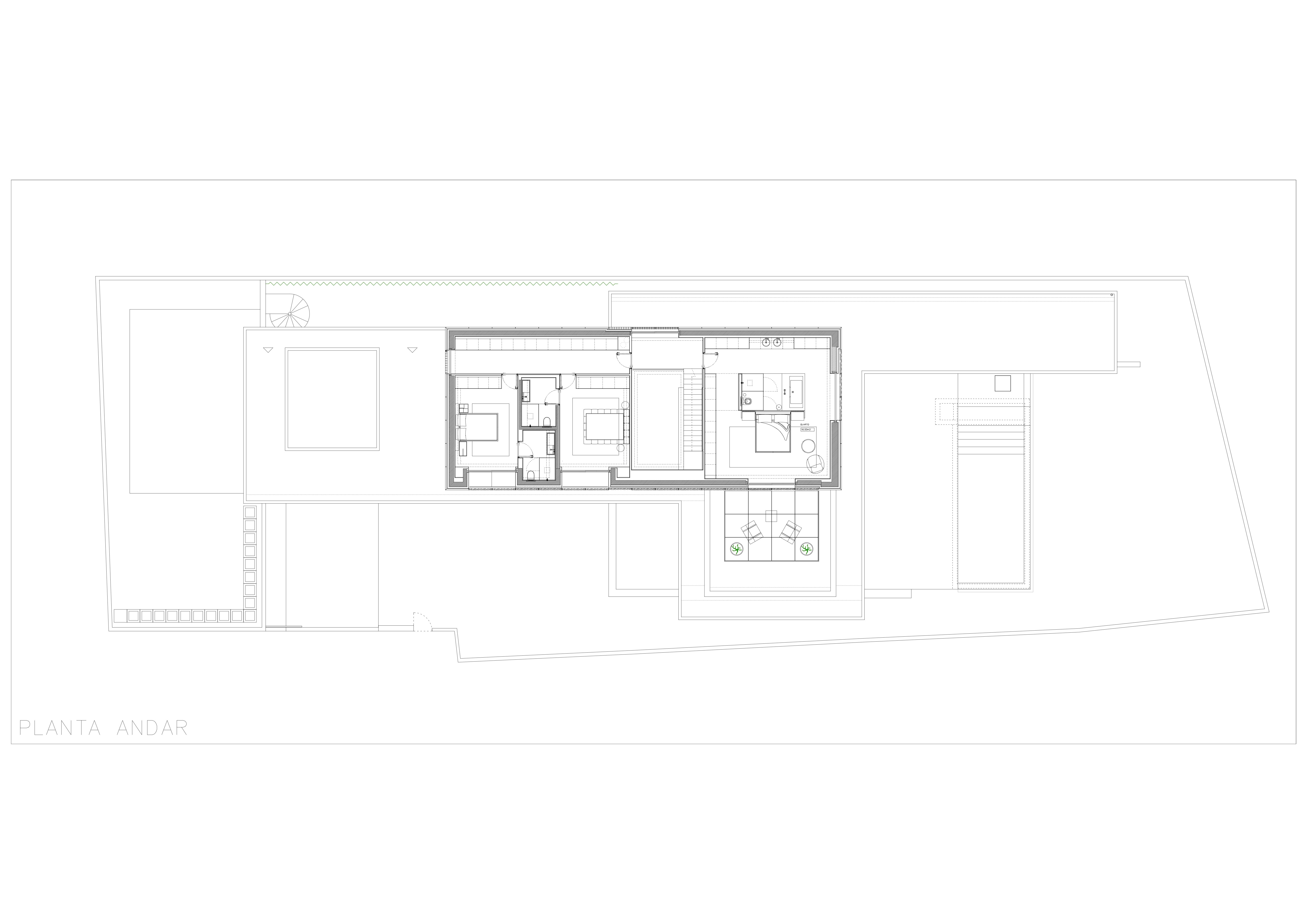
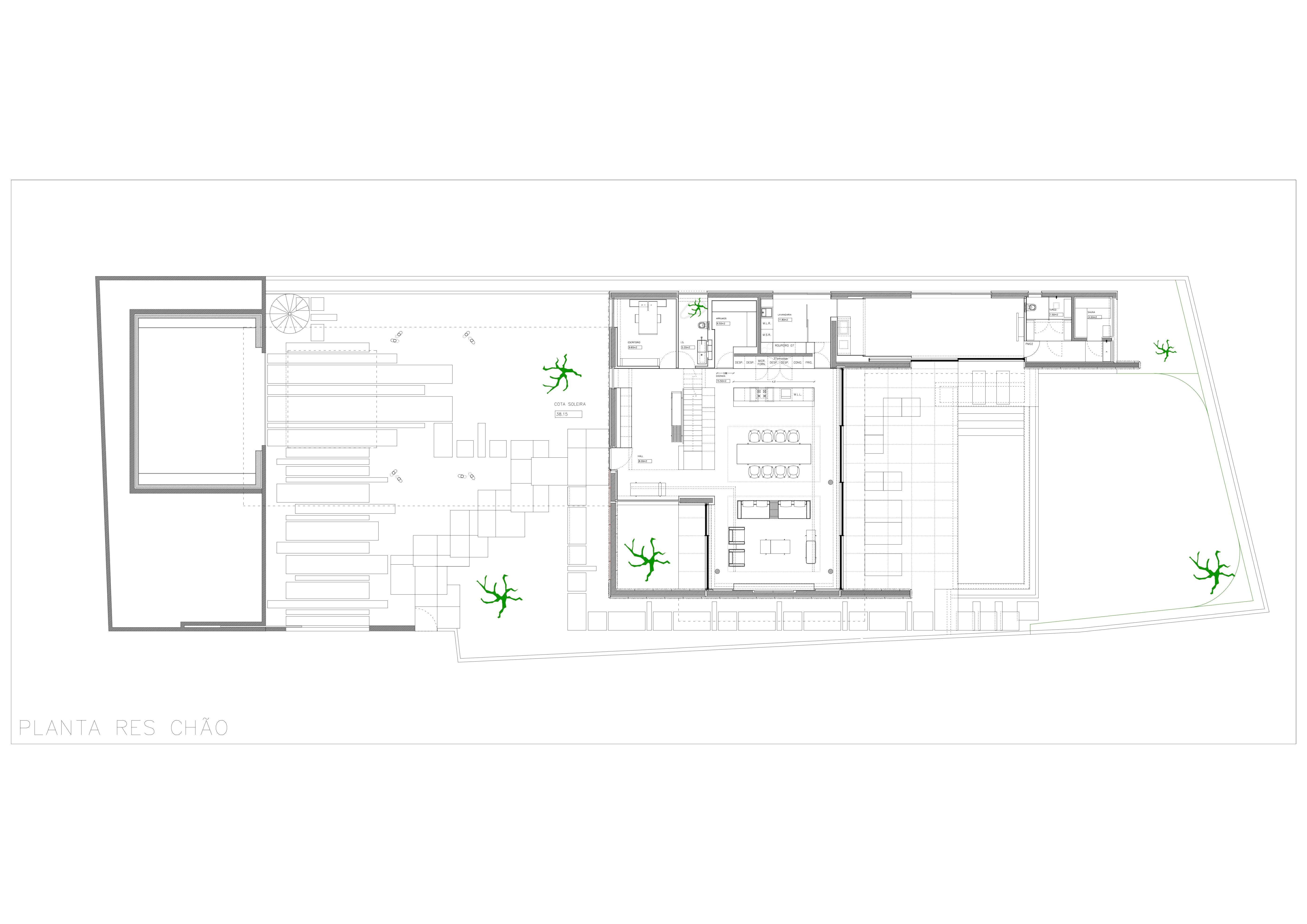
    RiscoWhite House

RiscoWhite House

Barcelinhos, 2022

It is located on the south bank of the River Cávado, in Barcelinhos, offering a wide green landscape immortalized by the Palace of the Dukes of Bragança and the Medieval Tower.
The land is presented in two elevated platforms, supported by high granite walls and hawks from which small flowers emerge, it is here that RiscoWhite is located.
In the act of transmitting its natural condition, the Architecture and accepting the site and its historical legacy, an attempt to transmit the existing language – a small housing unit – without speculation or ambition.
RiscoWhite appears to us as a striped white concrete block, torn silently, that extends along the lowest platform where the volumes gravitate in the serenity of the place, in a game of two heights that enjoys its immense landscape.

Design Team:

Landscape Design: Sara Ferreira
Interior Design: Risco Singular

Galleria del progetto

Ultimi prodotti nel nostro catalogo

Mostra il prodotto Paramount I 1410 del produttore DRAENERT
Mostra il prodotto Skyfall del produttore Quasar