Project Header Image
    Home/

    Footpatrol London

Footpatrol London

London, 2018

• [Fotografo]

Di

French & Tye

• [Fotografo]

Di

French & Tye

• [Fotografo]

Di

French & Tye
London's most established and respected sneaker destination has been updated and refreshed by Counterfeit Studio, helping to bring it in line with Footpatrol’s status as London’s premier sneaker store.
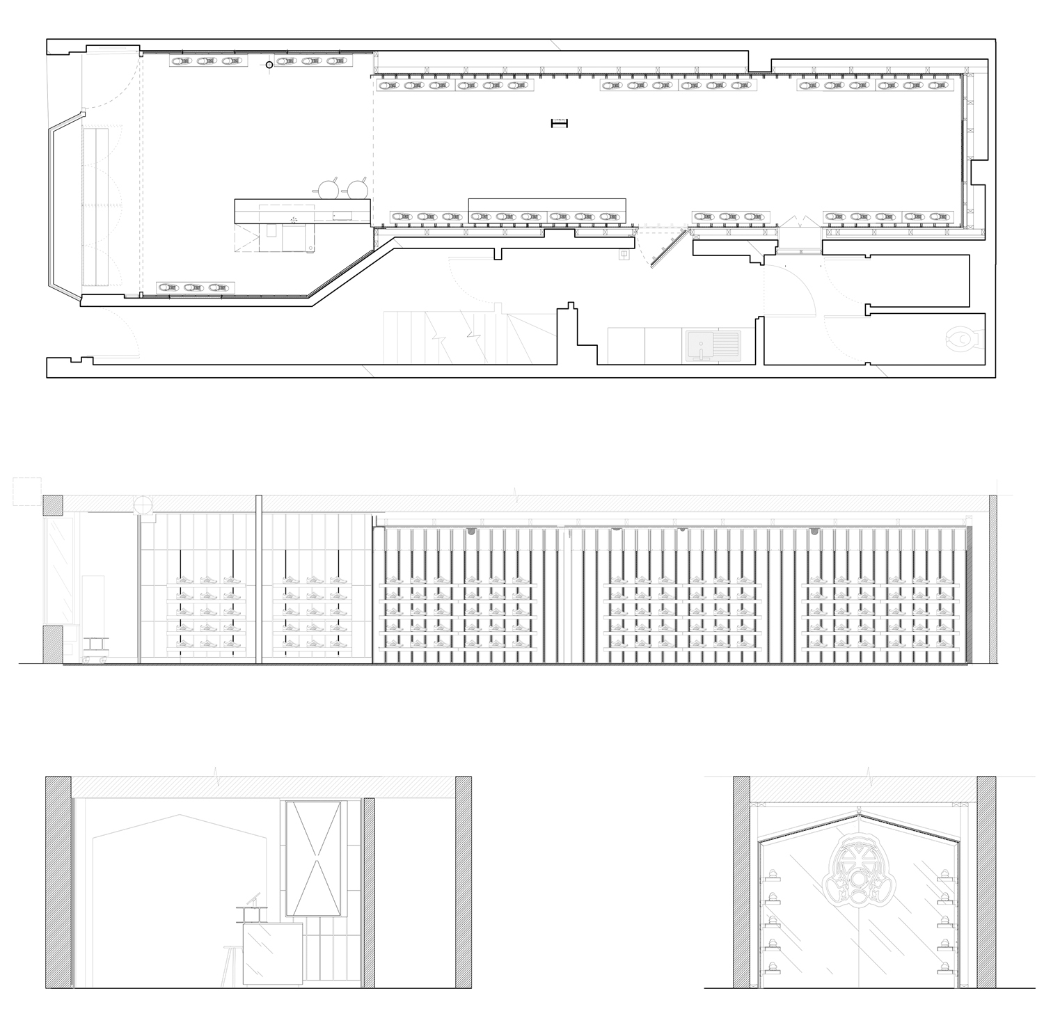
Maintaining the pitched roof ‘shed’ structure was an essential part of the brief; over the years it has become a defining detail of the Soho location, a reference which was echoed in Counterfeit Studio’s latest Footpatrol Paris store.
The layout of the small store has been optimized to make the most of every possible millimeter. The cash desk is situated to the front section to improve circulation of the space and to better facilitate product launches and brand campaigns. Here the durable galvanized wall cladding references billboard backdrops as a nod to marketing activities intended.
In keeping with the same resourceful approach to utilitarian materials that underpinned the previous store iterations, fibreglass sections, more commonly used on external fire escapes, have been re-appropriated as oversized benches, display shelving and cladding to the rear section of the store. The cladding cleverly conceals a flexible shelving system to allow the staff to reconfigure the store as required, in any which way necessary.
The neutral tones of the fiberglass and galvanized cladding provide a modern, clean and engineered backdrop, allowing the product to take center stage and establishing a directional brand language for Footpatrol’s future.

Design Team:

Counterfeit Studio

• [Fotografo]

Di

French & Tye

• [Fotografo]

Di

French & Tye

Galleria del progetto

Ultimi prodotti nel nostro catalogo