Project Header Image
    Home/

    Anibal Building

Anibal Building

Rio de Janeiro, 2015

• [Fotografo]

Di

Leonardo Finotti

• [Fotografo]

Di

Leonardo Finotti

• [Fotografo]

Di

Leonardo Finotti
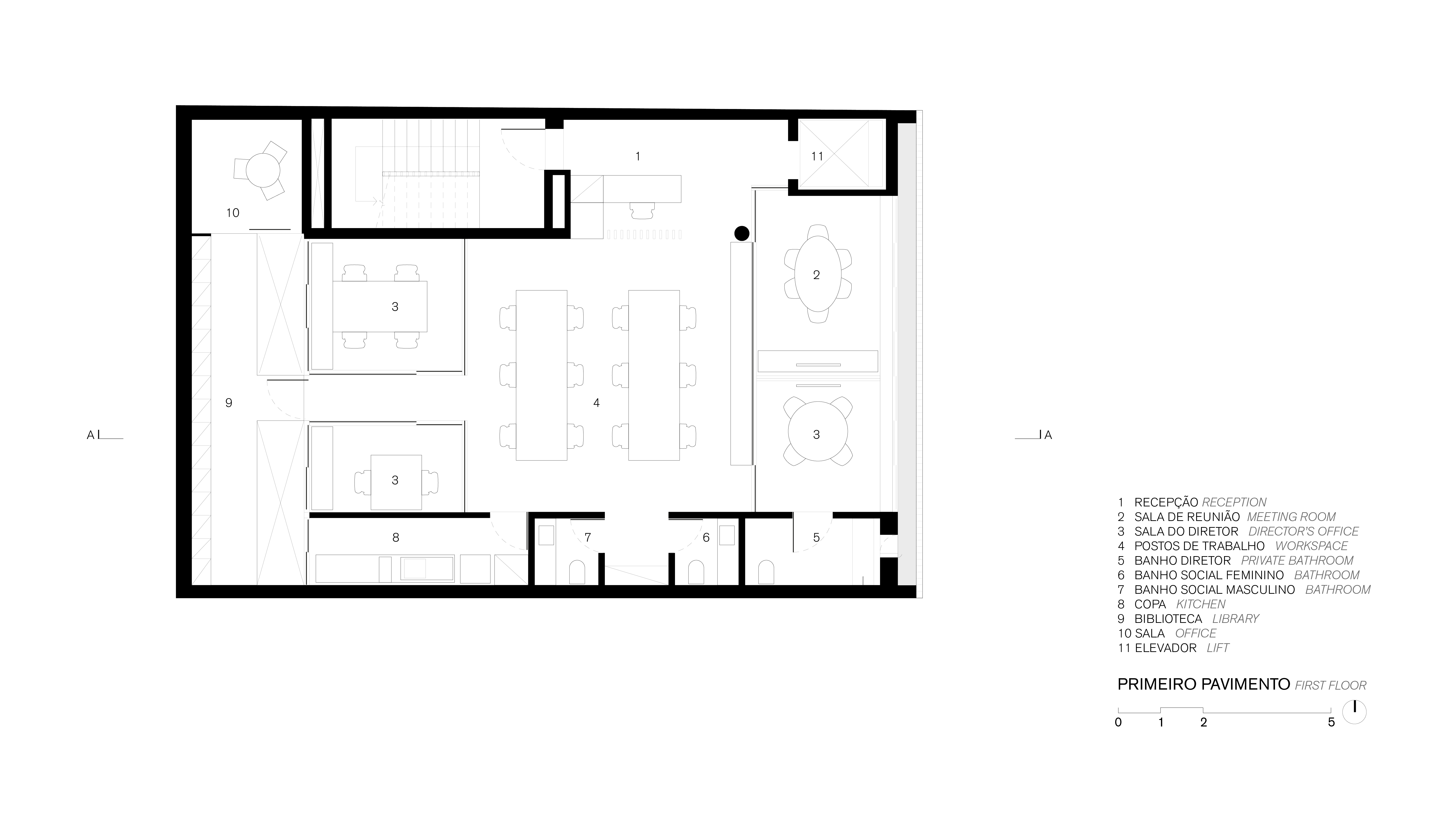
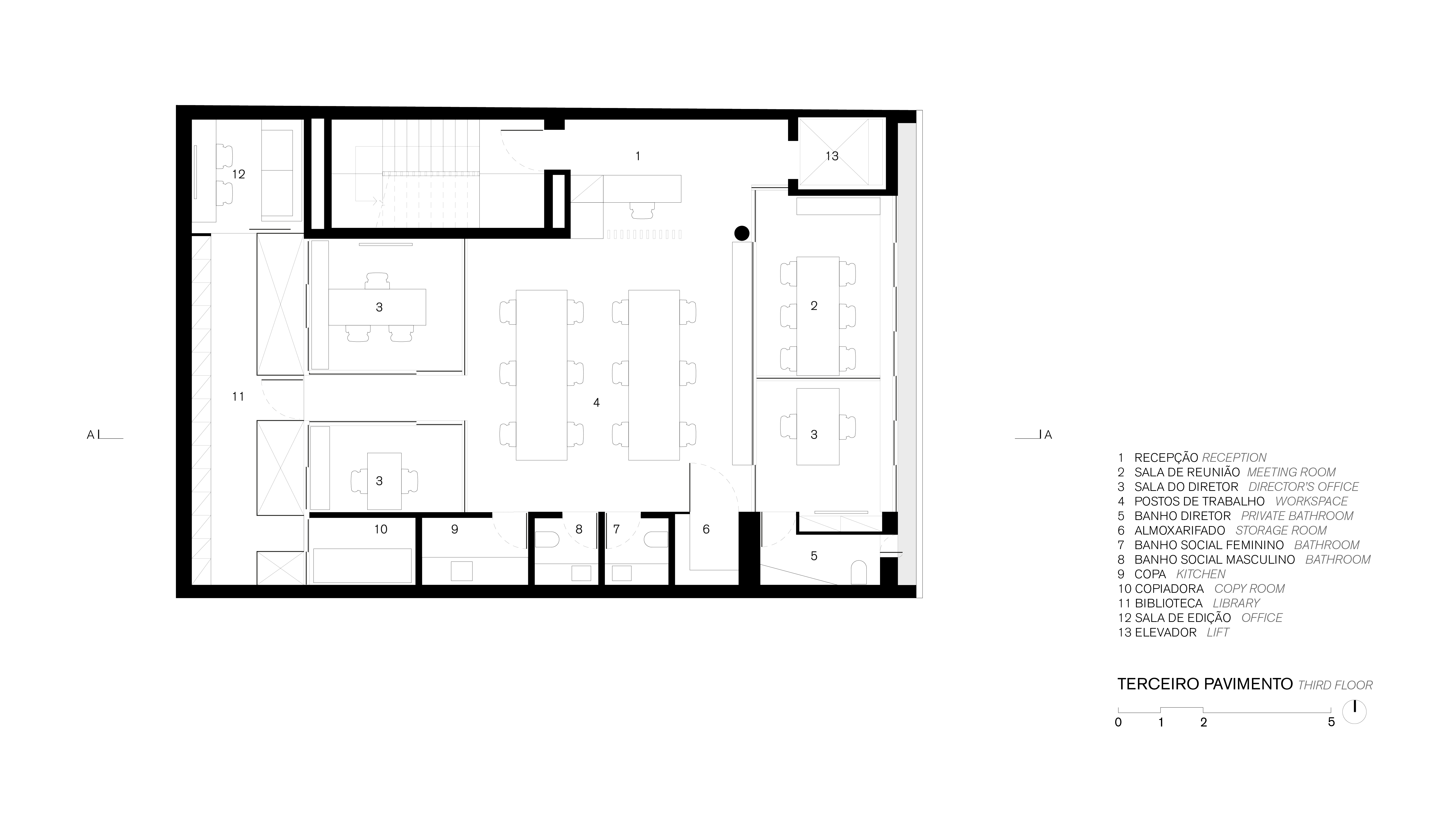
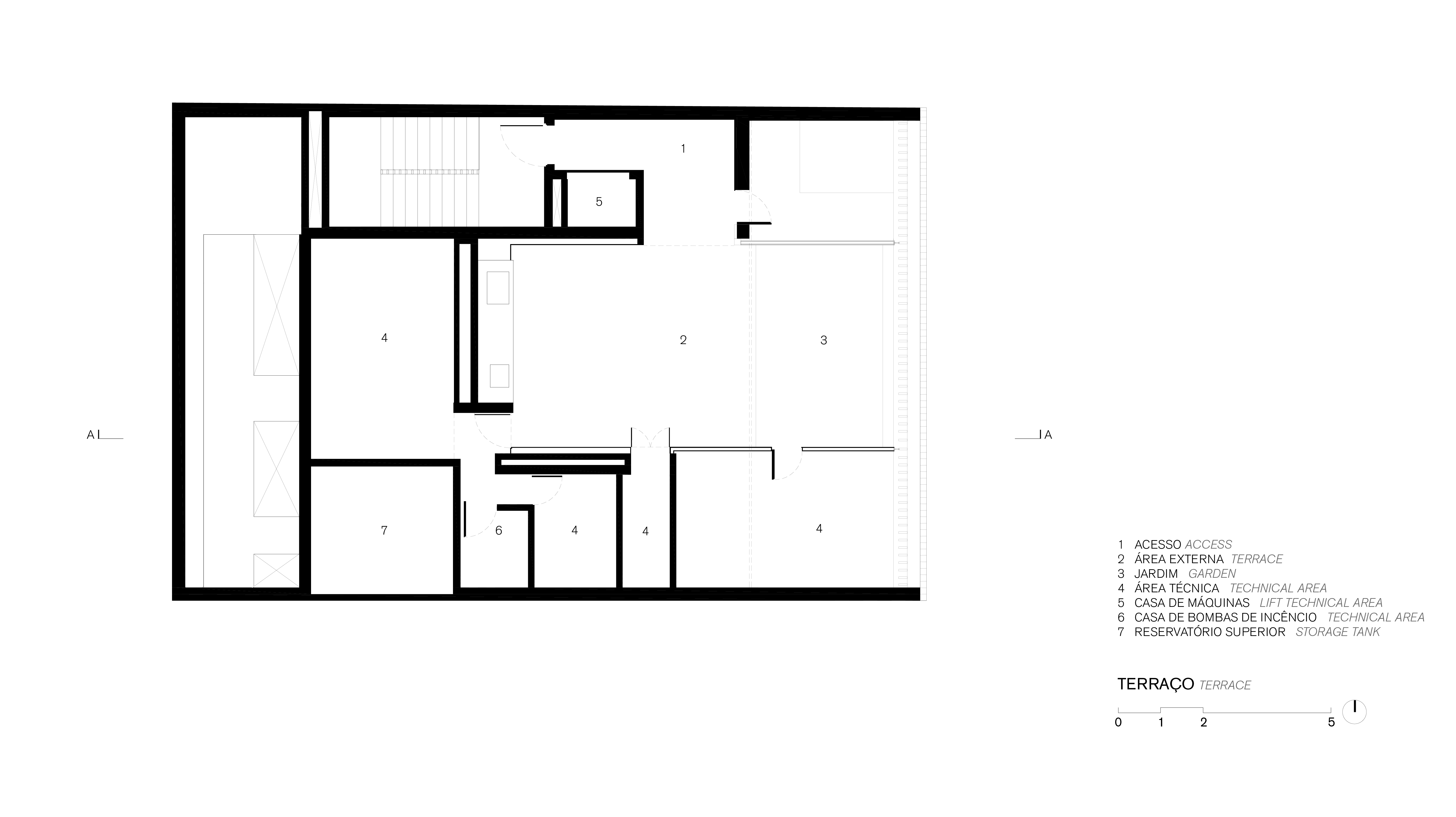
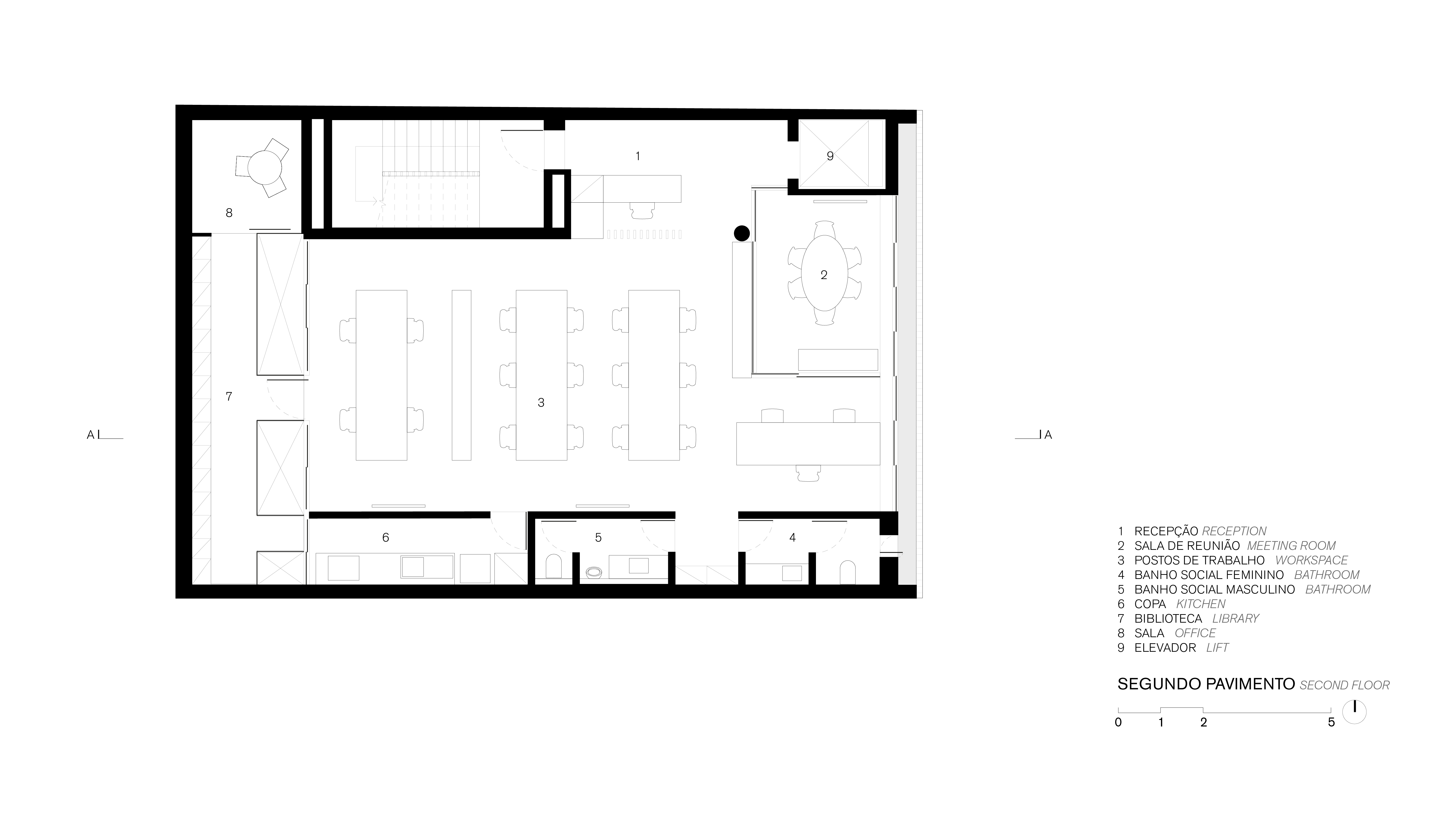
The Anibal Building is located in one of the densest and most upscale neighborhoods of Rio de Janeiro, Ipanema. It houses the headquarters of three different companies distributed throughout three open floor plans. Both ground floor and penthouse spaces are shared by all the users.
The façade is composed of a package of different layers that filter light and sound. The outermost skin is a lattice of perforated aluminum that covers the upper working floors, which is followed by a green buffer and special soundproof windows.
Work spaces occupy open plans that are made possible by concrete waffle slabs that are supported by peripheral columns and load-bearing walls. Building installations, vertical circulations and columns are all located around the perimeter of the building.
The full occupation of the site by the building brought the challenge of guaranteeing adequate daylight to its interiors, which is solved by using the library, which spans through all floors and is used as a large-scale skylight. The glass partitions of the library render it as a light prism, distributing daylight while filtering undesired radiation.

Design Team:

Bernardes Arquitetura
Interior Design: Claudia Moreira Salles
Team: Thiago Bernardes, Camila Tariki, Francisco Abreu, Daniel Vannucchi, Fabiana Porto, Victor Campos, Gabriela Di Toma, Antonia Bernardes, Caroline Premoli, Fernanda Lopes, Luiza Landim
Landscape Architecture: Daniela Infante
Lighting Design: Studio ILuz
Design team and collaborators:
Acoustics: Roberto Thompson Motta
Air Conditioning: Frioterm
Automation: Noise
Visual Communication: 6D
Construction Company: São Bento
Detection: Proline
Electrical and Hydraulic Installations: Efficienta
Structural Design: Abilitá
Foundations: Costa Santos

• [Fotografo]

Di

Leonardo Finotti

• [Fotografo]

Di

Leonardo Finotti

Galleria del progetto

Ultimi prodotti nel nostro catalogo