Project Header Image
    Home/

    Administration Building with Rooftop Greenhouse

Administration Building with Rooftop Greenhouse

Oberhausen, 2019

Progetto di

KUEHN MALVEZZI

• [Fotografo]

Di

hiepler, brunier,

• [Fotografo]

Di

hiepler, brunier,

• [Fotografo]

Di

hiepler, brunier,
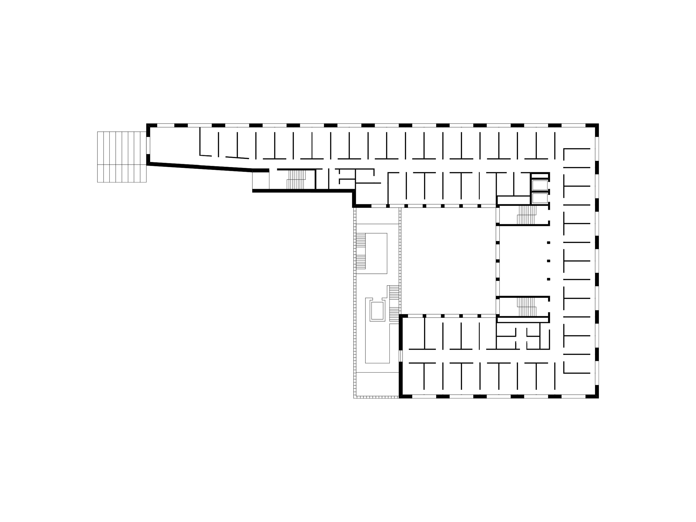
The office building in the center of Oberhausen combines the diverse functions of a public administrative building and rooftop garden in a new way, integrating features of both typologies. The tension between the physicality of the brick building and the delicate lightness of the greenhouse creates a new identity that affects the urban context of the Altmarkt, an important location in the city.
A vertical garden connects the square with the roof garden. Developed in collaboration with landscape architects atelier le balto, it is an effective urban planning element that purposefully combines the old and new landscape typologies as a public space. A varied course leads visitors from the tree-lined market square up steps and platforms, past climbing plants and seating areas, to the roof. From the rooftop, the view opens up over the historical cen-ter of the city.
A part of the rooftop greenhouse, which was planned in cooperation with Haas Architekten, is a research area used by the Oberhausen-based Fraunhofer Institute for Environmental, Safety and Energy Technology, to realize its concepts in the field of building-integrated agriculture.

Design team:

Kuehn Malvezzi
Project team: Margherita Fanin, Rebekka Bode, Felix Rohde, Konstanze Beelitz, Anna Naumann, Moritz Scheible, Francesco Pizzorusso, Martin Löffler
Competition project team: Karin Fendt, Peter Franz Weber
Landscape architect: atelier le balto, Berlin
Rooftop greenhouse concept: Fraunhofer Institute for Environmental, Safety and Energy; Technology UMSICHT, Oberhausen
Technical planners
Greenhouse planner: Haas Architekten, Berlin
Structural engineer: Frankenstein Consult, Berlin
Fire protection specialist: Hagen – Ingenieure für Brandschutz, Kleve
Building services: HL-Technik, Munich
Building physics: Müller BBM, Gelsenkirchen
Building surveillance architecture: HPP, Düsseldorf
Signage and information system: Double Standards, Berlin

• [Fotografo]

Di

hiepler, brunier,

• [Fotografo]

Di

hiepler, brunier,

Galleria del progetto

Ultimi prodotti nel nostro catalogo

Mostra il prodotto Guastalla del produttore IOC project partners