Project Header Image
    Maison/

    STROM flat

STROM flat

Prague, 2017

Projet de

Formafatal

• [Photographe]

Par

BoysPlayNice

• [Photographe]

Par

BoysPlayNice
The young couple approached us for advice while choosing their future new home. Finally, the choice fell on a spacious, more than 90 m2 large apartment, which required a complete reconstruction. The apartment is located in a functionalist house in the center of Prague, but also in the immediate vicinity of greenery.
The client's wish was to create a home that would provide a feeling of airiness and spaciousness and at the same time, they desired the possibility to separate the daily activities so the members of the household will not disturb each other.
By adjusting the layout, we obtained a large longitudinally illuminated living space. Thanks to the large windows, in connection with the layout improvement, it is possible to see the green treetops even from the central living part of the apartment. We played with see-through views both to the exterior and between interior spaces of the apartment.
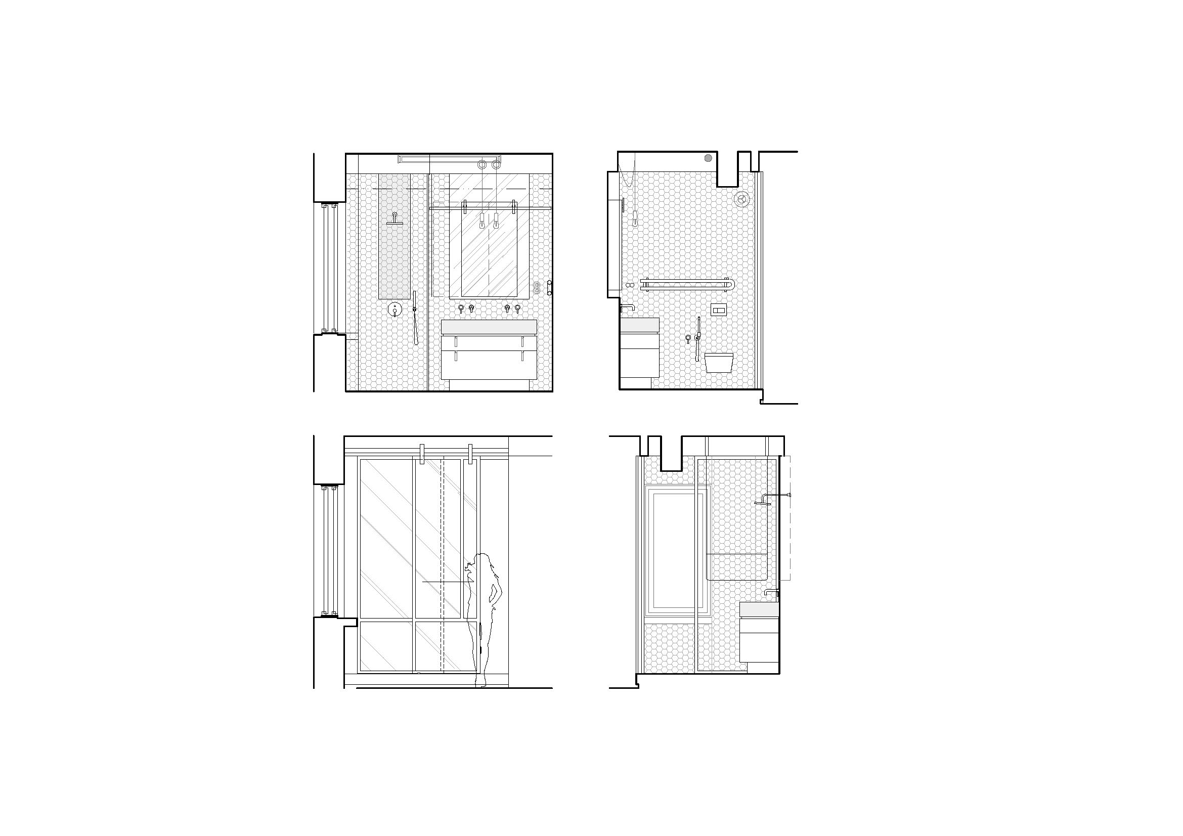
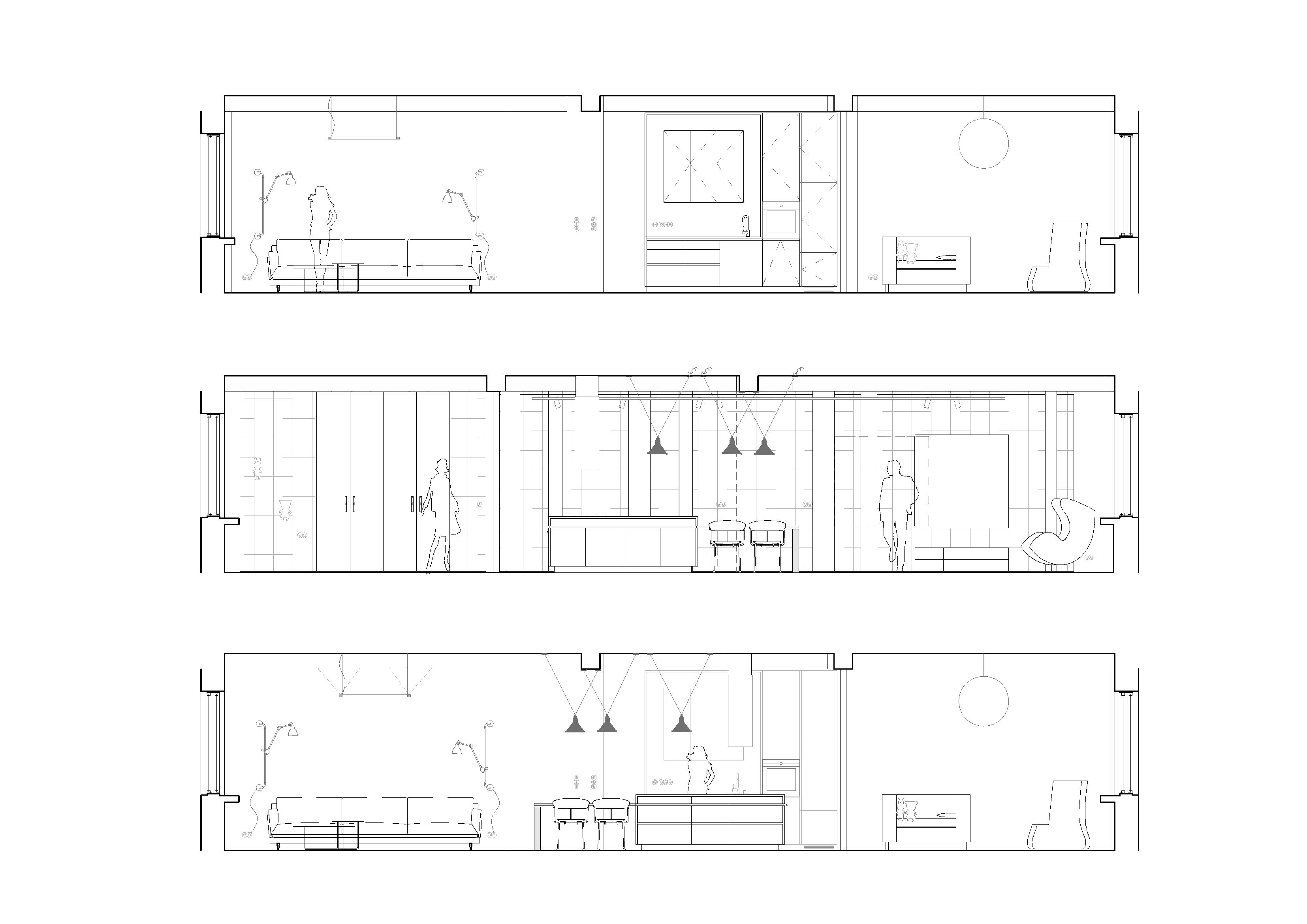
The center of the layout is the kitchen with a solid oak dining table, which separates the living room and office room, later converted into a children's room. The bedroom is located in a separate block, interconnected to a day-lit bathroom.
We searched for the main interconnection motif of the interior together with the client and none of the thoughts was exactly what we desired until accidentally revealed a beautifully crafted concrete girder ceiling structure, partly with a visible drawing of a wooden formwork.
The new interior was created with respect to the existing elements of the apartment - concrete girder ceiling, massive long windowsills made of black terrazzo and renovated oak parquet floors. We followed these basic details with simple colors and materials - white, black, metal, concrete surfaces and oak wood.
The connecting furniture element in the main living space is the large and long library, passing through the entire width of the layout. The cables are situated in metal pipes along the ceiling profiles, design of switches and sockets (Berker range 1930) was chosen as a reminder to the classic rotary switches.
The walls of the bathrooms are lined with a matt ceramic mosaic, in fine tones of cream and dim green, complemented by a rough contrast in concrete washbasins, concrete screed on the floors in combination with black metal frames, faucets, handles and light fixtures.

• [Photographe]

Par

BoysPlayNice

• [Photographe]

Par

BoysPlayNice

• [Photographe]

Par

BoysPlayNice

Galerie de projets

Derniers produits dans notre catalogue

Afficher le produit Tissu Safescreen du fabricant Silent Gliss