Project Header Image
    Maison/

    Livraria da Vila

Livraria da Vila

São Paulo, 2006

Projet de

Isay Weinfeld

Mots-clés

Architecture

• [Photographe]

Par

Leonardo Finotti

• [Photographe]

Par

Leonardo Finotti

• [Photographe]

Par

Leonardo Finotti
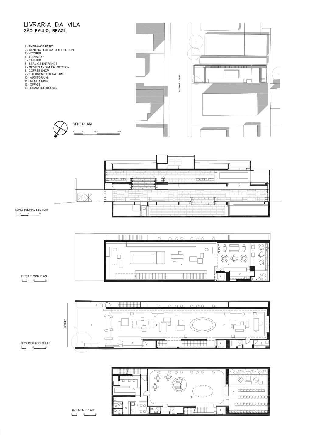
The Livraria da Vila is the result of the refurbishment of a two-story house, built on a very narrow plot in São Paulo.
From start, it was clear an open plan was needed, as to better arrange products and circulation. For that reason, significant structural alterations were performed to the existing building, such as the incorporation of metal parts that would make it possible to displace the pillars to the outer sections of the building, and reinforce its foundations.
The inclusion of one level – basement – allowed for the setting up of an entire floor exclusive for children, in addition to a small auditorium, to hold courses and lectures.
We believe that in a commercial venue, a project must always be developed to enhance the product, its in-store merchandising, and its sales. There are, undoubtedly, innumerable ways to achieve this goal, and it is probably the nature of the approach that distinguishes each project.
We, in particular, strive for solutions that will allow customers to experience the product as comfortably as possible.
In the case of Livraria da Vila, such comfort is translated into the composition of low-ceilinged spaces, dark tones, indirect lighting and infinite shelves – in careful disarray – covering all walls to the ceiling. Whichever direction one looks at, there are books, and an unpretentious feel, reminding that of used-book stores, making customers at ease to browse the shelves for the books they want, to leaf through or even read them in the couches and easy chairs scattered around the multiple stories.
The pivoting window-shelf-doors, and the voids “connecting” one floor to the next, are other project elements that, unexpected, invite customers to enter and explore the store and its various spaces.
Arquitetura: Isay Weinfeld
Colaborador: Domingos Pascali | Marcelo Alvarenga
Coordenador do projeto: Monica Cappa Santoni
Equipe de projeto: Juliana Garcia | Leandro Garcia

• [Photographe]

Par

Leonardo Finotti

• [Photographe]

Par

Leonardo Finotti

Galerie de projets

Derniers produits dans notre catalogue