Project Header Image
    Maison/

    JD House

JD House

provincia de Buenos Aires

Mots-clés

Architecture

• [Photographe]

Par

Gustavo Sosa Pinilla

• [Photographe]

Par

Gustavo Sosa Pinilla

• [Photographe]

Par

Gustavo Sosa Pinilla
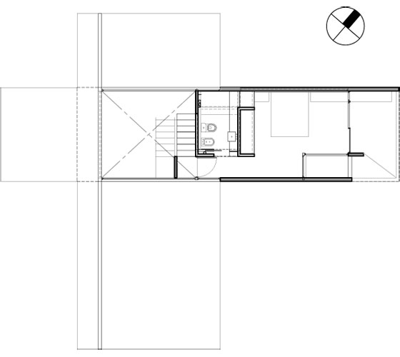
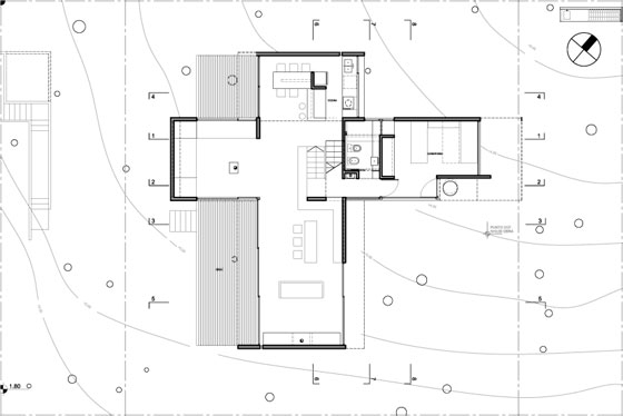
Brief Relation of JD House.
The particularity of this engagement was that, although the requirement was about two bedrooms and their respective bathrooms, the social area must be large enough with the possibility of being adapted to different uses as they frequently receive many friends.
The program was resolved by crossing two prisms perpendicularly and placing it in a forest clearing between the trees. The strong slope of the land was exploited to hide part of the program, reducing in this way the presence of the built volume.

• [Photographe]

Par

Gustavo Sosa Pinilla

• [Photographe]

Par

Gustavo Sosa Pinilla

Galerie de projets

Derniers produits dans notre catalogue

Afficher le produit Bamboo 4810 Extérieur-Lampes sur pied du fabricant Vibia
Afficher le produit LO Value Presse à boîtes et PET du fabricant Lista Office LO