Project Header Image
    Maison/

    Into the wild

Into the wild

2018

Projet de

Ark Shelter

Mots-clés

Architecture

• [Photographe]

Par

BoysPlayNice

• [Photographe]

Par

BoysPlayNice

• [Photographe]

Par

BoysPlayNice
Nowadays we live in a world where we are extremely busy and from time to time we need to escape from it. Escape from the stress, duties and civilizations back to our roots where it all started.
The past 3 years we have been working on re-designing, building and testing different types of Ark-Shelters. We want to create a place that gives you comfort in the heart of the nature and gives you the perfect setting for a detox of your mind.
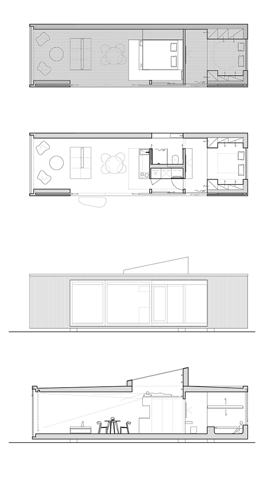
From this perspective we created a new Shelter type: “into the wild cabin”. With his 5 openings all around we wanted to create a visual focus of the nature all around. Each opening brings in another atmosphere of the nature.
There is a big openable wall side and the big front glazing makes you feel like you’re sitting outside. The milk glass window in the bathroom gives you the all-natural incoming light you need. We’ve made an extra module which is set on the roof and has a big window so you can sleep under a sky full of stars.
The Shelter¨, with its low-tech outlook facade, is created so that it attempts to blend with nature, while refining its complex and sophisticated system that automatically works with space and light.
Thanks to a automatical system the heating, cooling and shadings can be pre-programmed. The double-bed goes up automatically in the ceiling and beneath the bed there is a hidden jacuzzi, this creates a new relaxing area. The Shelter can work completely off-grid through solar panels, batteries and rain water collector.
The 40m2 has a central black box in the middle that creates 5 different areas, every single side is part of a particular area in the Shelter. The sliding doors in the corners create more space and the different areas can be completely divided.
Thanks to the extra module on top we have more incoming light from above. The left part of the box works as a kitchen and a relaxing zone, the back of the box has a shower and a sink next to the window. Next to the bathroom we have the big bed and the jacuzzi. The extra module on top is another bedroom that you can also easily turn into a relaxing mediation zone.
This new Shelter has been a totally new challenge for us an it’s all about the details, we wanted to create a place that has it all in least possible space but with all the possible luxury.
Ark Shelter: Michiel De Backer and Martin Mikovčák

• [Photographe]

Par

BoysPlayNice

• [Photographe]

Par

BoysPlayNice

Galerie de projets

Derniers produits dans notre catalogue