Project Header Image
    Maison/

    Dolomites House

Dolomites House

2006

Mots-clés

Architecture

• [Photographe]

Par

Hermann Gasser

• [Photographe]

Par

Hermann Gasser

• [Photographe]

Par

Hermann Gasser
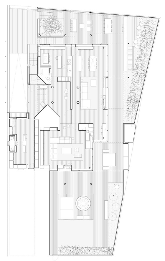
The idea of remodelling this house in the Dolomite mountains at the border between Italy and Austria started because of an uncomfortable living situation. The existing building presented a very large and high entry hall with the rooms arranged around it, and it was always necessary to walk through it to move around the house. On the ground floor, the kitchen, dining room, living room and the stube were not proportioned to the size of the house and they couldn’t get enough light.
For this reason the entire ground floor has been demolished, and a new interior clear glass envelope with a gyp wall inserted is now the only separation among the different spaces. Few new volumes have been added around the house to extend the entry hall and the oversized family room, which include dining, relax and study areas.
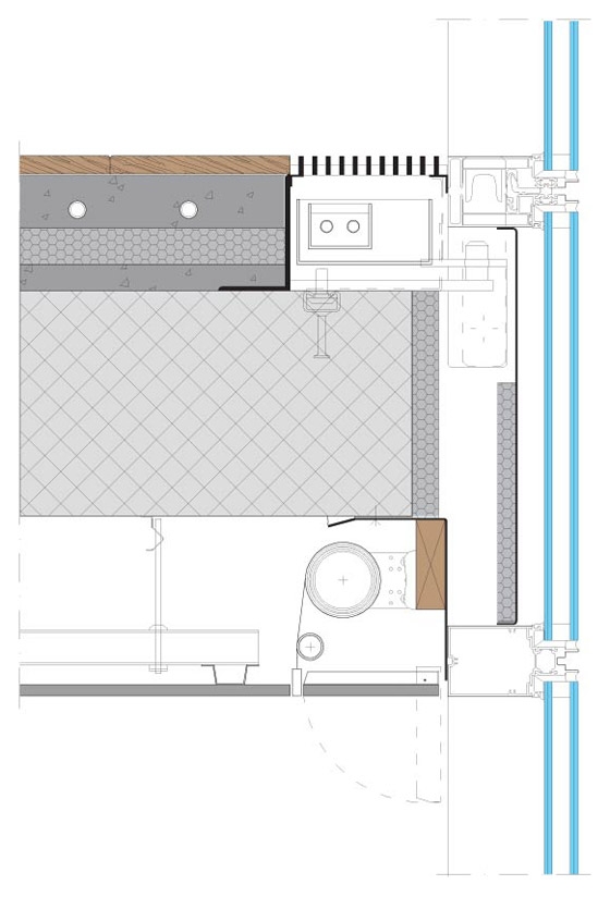
To allow the maximum amount of light into the rooms, the façades have been replaced by a custom designed structural silicon curtain wall, with base and head mullions flush with the floor and ceiling, and large pop-out sliding doors to create interaction between indoor and outdoor. Because of the very low temperatures of the winter, the heating solution is the combination of radiant floor heating, perimeter floor radiators along the curtain wall, a gas see-through-the-outside fireplace and a wood one.
The house is controlled by a fully automated iBus system, and a particular attention has been given to the audio video equipment, which also includes invisible speakers plastered into walls or ceilings of different areas. Almost everything has been custom designed, from the entire kitchen to the tables, desks, gas and wood fireplaces. Since maple wood isn’t stable with radiant floor heating, the floor planks were custom built with 2.5mm Canadian maple top and back layers on a particle board. The 20cm width of the floor planks modulate the position of all the elements, from the walls to the millwork.
The garden is enclosed by a 2.5m tall wood wall with horizontal slats to emphasize the perspective and cast shadows of sunlight from above and of spotlights from below.
A wood deck made of 14cm wide Ipe wood planks surrounds the house, runs up a sunbathing platform with a Jacuzzi inserted, and covers two long desks.
The sun shading is an horizontal system that runs on tracks inserted in steel beams, as if the interior ground floor ceiling would be extended out. A steel framed wood canopy on one side allows to sit outdoor in a rainy day.
Architect: Jacopo Mascheroni
Collaborator: Pietro Borzini
Structural engineer: Planungsbüro Dr.Ing. Aichner, Brunico (BZ)
Mechanical engineer: Thermostudio Bruneck, Brunico (BZ)
Construction side supervisors: Oskar Gartner (Hobag A.G.), Rudi Viehweider (Metris GmbH)
General contractor: Hobag A.G., Campo Tures (BZ)
Curtain wall: Coges, Padova
Interior contractor: Metris GmbH / Srl, Molini di Tures (BZ)
Carpentry: Unionbau GmbH, Molini di Tures (BZ)
Electrical-lighting: Leitner Hubert SAS, Brunico (BZ)
Audio-video: Fidelity Group, Bolzano
Outdoor shades: Hella Italia Srl, Brunico (BZ)
Landscape: Nippon Bonsai, Carate Brianza (MI)

• [Photographe]

Par

Hermann Gasser

• [Photographe]

Par

Hermann Gasser

• [Photographe]

Par

Hermann Gasser

Galerie de projets

Derniers produits dans notre catalogue