Seoul, 2021
Proyecto de
LAB404Etiquetas
Arquitectura de interior
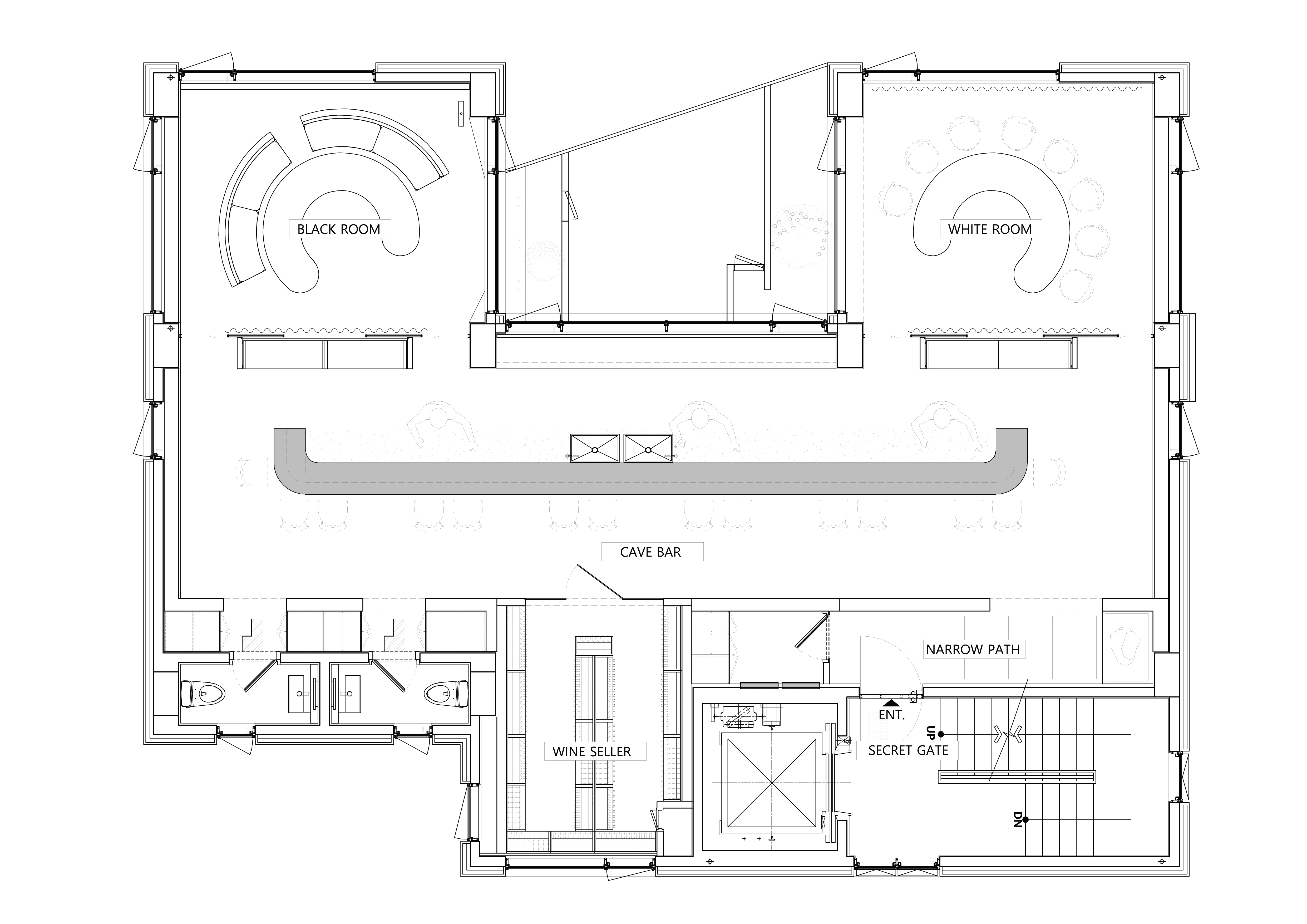
Wine Social is a cultural space where you can experience wine in comfort through blind tasting of 5 wines curated by a sommelier. The concept is a new world opening up when you open the secret gate, walk a narrow path and enter a white cave and a space under the sky where darkness and light coexist.
Feel the Wine - Close your eyes and savor the wine itself in the same way you would focus on yourself when closing your eyes in nature.
Secret Cave and Sky - When you open the secret gate with a small light, a new world opens up and you walk a narrow path until you reach a white cave and a space under the sky where darkness and light coexist.
Social Space - We created a space with a modern interpretation of nature where customers can socialize over wine. We established the CAVE BAR and SKY ROOM to enable customers to enjoy wine while sharing a comfortable experience.
Secret Gate - When you open the secret gate with a small light, a new world that is different from the downtown area of Shin sa-dong in Gangnam opens up.
Narrow Path - It is a transitional space envisioning a walk along a path under the sunlight sparkling through the leaves. The light of the WHITE CAVE spreads along the path through the lattice space.
White Cave - The CAVE BAR is a space where two or three people communicate with a sommelier over wine in a wine cellar based on the motif of a cave.
Black Sky - The Black Room is a space where four or five people close their eyes in the dark clouds and feel the wine itself. The white fabric on the ceiling moves with the wind from the air conditioner. The bar table and round sofa are also based on the motif of round stones, and the black mirror on the side expands the feeling of spaciousness.
White Sky - The White Room is a fresh and bright space that contrasts with the Black Room.



















