Project Header Image
    Inicio/

    WAC

WAC

Krems An Der Donau, 2018

Proyecto de

Atelier Gitterle

Etiquetas

Arquitectura

• [Fotógrafo]

Por

Hertha Hurnaus

• [Fotógrafo]

Por

Hertha Hurnaus

• [Fotógrafo]

Por

Hertha Hurnaus
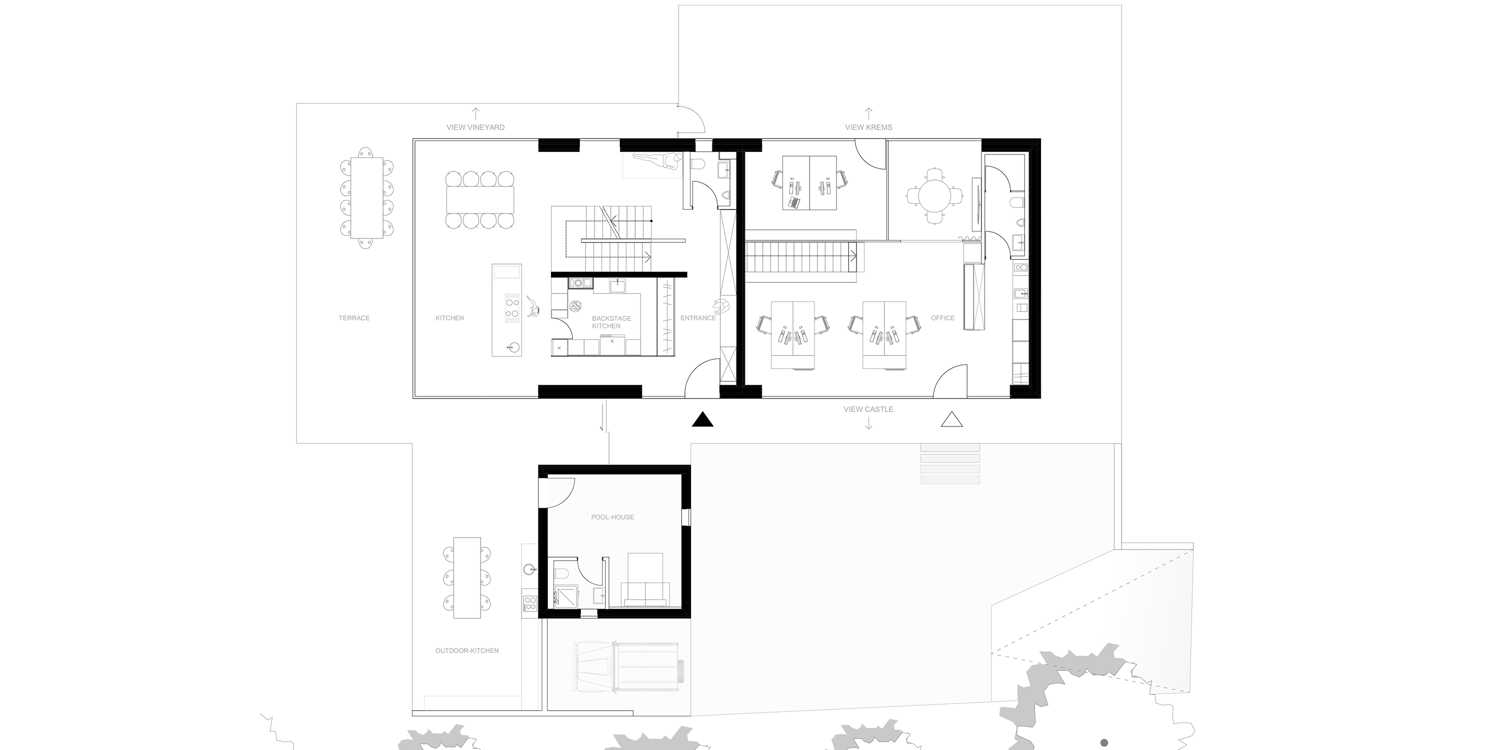
The client's requirement was to create a family home that would also contain an office for their cosmetics start-up. The positioning of the building in the middle of the vineyards has been deliberately chosen because the young company produces Demeter-certified natural cosmetics from the vines on site.
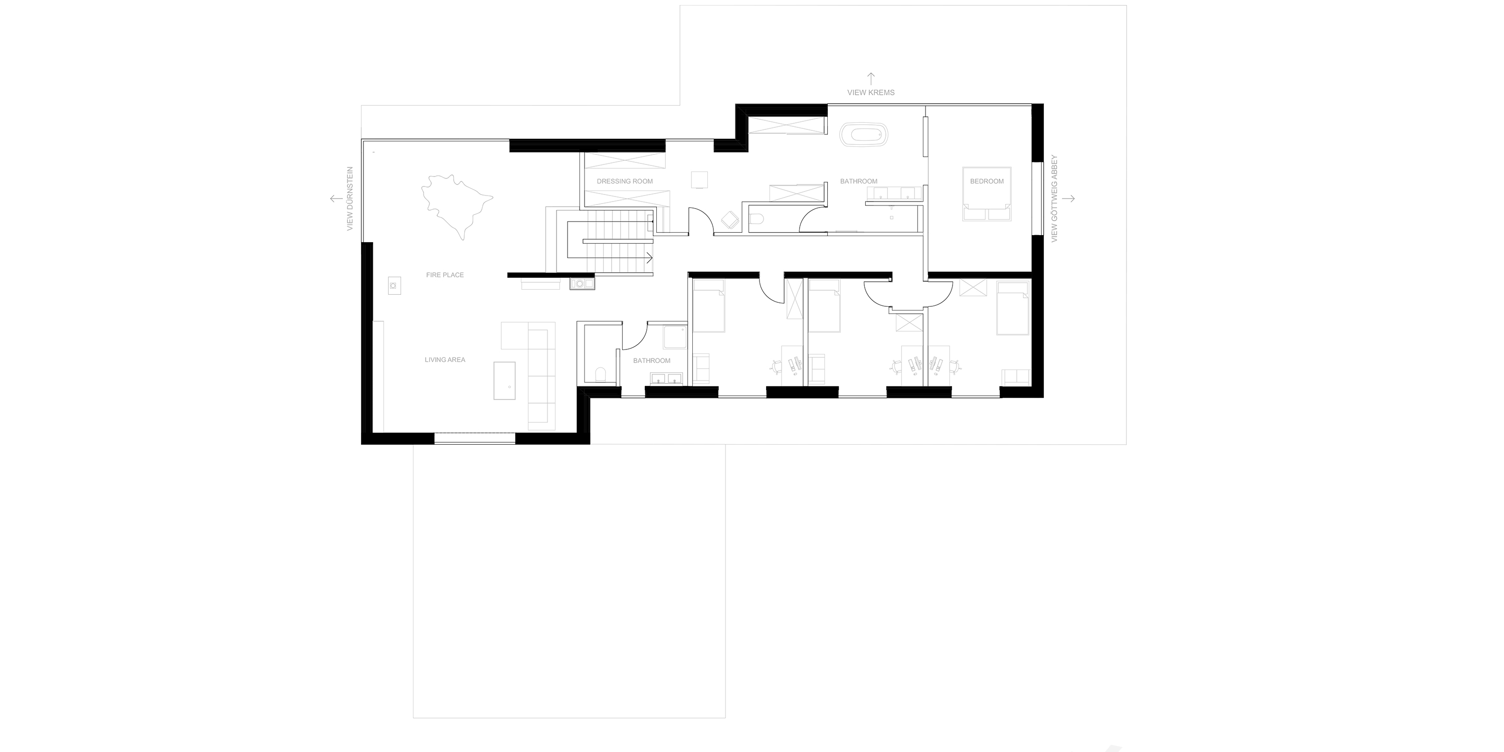
The building was embedded in the topography of the vineyards to reveal the view of world cultural heritage Krems, castle Dürnstein and Göttweig abbey.
The start-up's office faces the street with a separate entrance and access to the warehouse, while the private living area is on the opposite side. Generous window elements create bright, light-flooded rooms and connect the interior with the surrounding vineyards. The openings were deliberately set to maintain privacy despite the openness to the landscape.
The structure is strictly geometric and combined with ecological building materials in order to live up to the client's philosophy of life. The entire supporting structure is made of wood, the insulation material is made of ecological wood fiber and the facade is clad with natural wood.
In order to operate a sustainable heating system, a geothermal heat pump was installed, along with a PV system. The roof of the annex, which also serves as an accommodation for guests or business partners, was designed as a greened flat roof.

Design team:

Atelier Gitterle

• [Fotógrafo]

Por

Hertha Hurnaus

• [Fotógrafo]

Por

Hertha Hurnaus

Galería de proyectos

Últimos productos en nuestro catálogo

Mostrar el producto Utility Armchair U del fabricante Stellar Works
Mostrar el producto Tuboo del fabricante Plam Studio