Project Header Image
    Inicio/

    Überbauung Augustenstraße 29

Überbauung Augustenstraße 29

München, 2012

Proyecto de

tools off.architecture

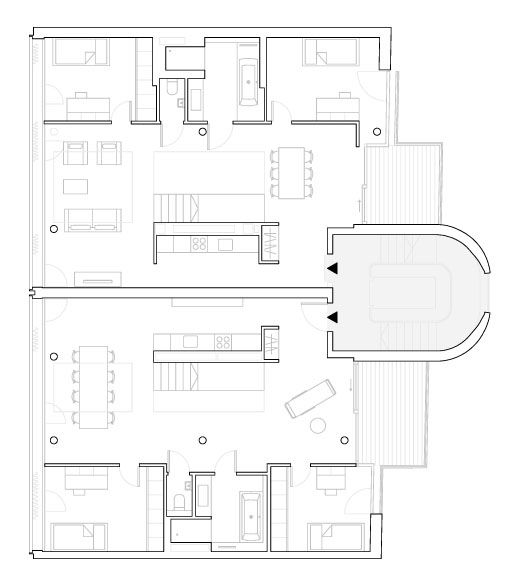
Das architektonische Konzept sieht eine Bebauung mit zwei Typologien unterschiedlichen Charakters vor:
Ein Apartmenthouse mit sechs Geschossen plus Dach schließt die jetzige Baulücke in der Augustenstrasse.
Seine mehrschalige transparente Fassade entwickelt sich aus den Zuschnitten der Wohnungen heraus. Die Wohnfläche von ca. 180qm pro Geschoss kann sowohl auf eine als auch auf zwei Wohnungen verteilt werden.
Der klare und offene Charakter des Gebäudes steht im Kontrast zu den angrenzenden Nachkriegsbauten und begründet sich in einer zeitgemäßen Weiterentwicklung und Verdichtung der Stadt.
In dem Hof stehen vier zu einer Gebäudeeinheit zusammengefasste Atelierhäuser. Private Vorzonen gliedern und differenzieren die Häuser.
Die drei Hauptgeschosse sind mit einem Luft- und Treppenraum miteinander verbunden. Von dort gelangt zusätzliches Licht in die nach Norden orientierten loftartigen Räume.
Das Dachgeschoss ist nach Westen ausgerichtet und bietet mit der angrenzenden Terrasse einen zusätzlichen uneinsehbaren Wohnbereich im Freien.
tools off.architecture
Durant Notter Architekten BDA BDIA
Visualisierungen: formstadt architekten+ingenieure

Galería de proyectos