Project Header Image
    Inicio/

    The Broad

The Broad

Los Angeles, 2015

Etiquetas

Arquitectura

• [Fotógrafo]

Por

Iwan Baan

• [Fotógrafo]

Por

Iwan Baan

• [Fotógrafo]

Por

Iwan Baan
The Broad is a new contemporary art museum being built by philanthropists Eli and Edythe Broad on Grand Avenue in downtown Los Angeles. The museum, which is designed by Diller Scofidio + Renfro, will open on September 20, 2015. The museum will be home to the nearly 2,000 works of art in The Broad Art Foundation and the Broads’ personal collections, which are among the most prominent holdings of postwar and contemporary art worldwide.
With its innovative “veil-and-vault” concept, the 120,000-square-foot, $140-million building will feature two floors of gallery space to showcase The Broad’s comprehensive collections and will be the headquarters of The Broad Art Foundation’s worldwide lending library. The Broad is also building a 24,000-square- foot public plaza adjacent to the museum to add another parcel of critical green space to Grand Avenue.
The Broad targets LEED Silver certification. With its electric car charging stations, bike parking spaces, rooftop drains routed to street level gardens that filter runoff, high-efficiency plumbing fixtures that help reduce water use by 40 percent, and its easy access to public transit including adjacency to the new Metro Regional Connector station at the corner of 2nd Street and Hope Street, The Broad aims to be in the top tier of eco-conscious and efficient museums.
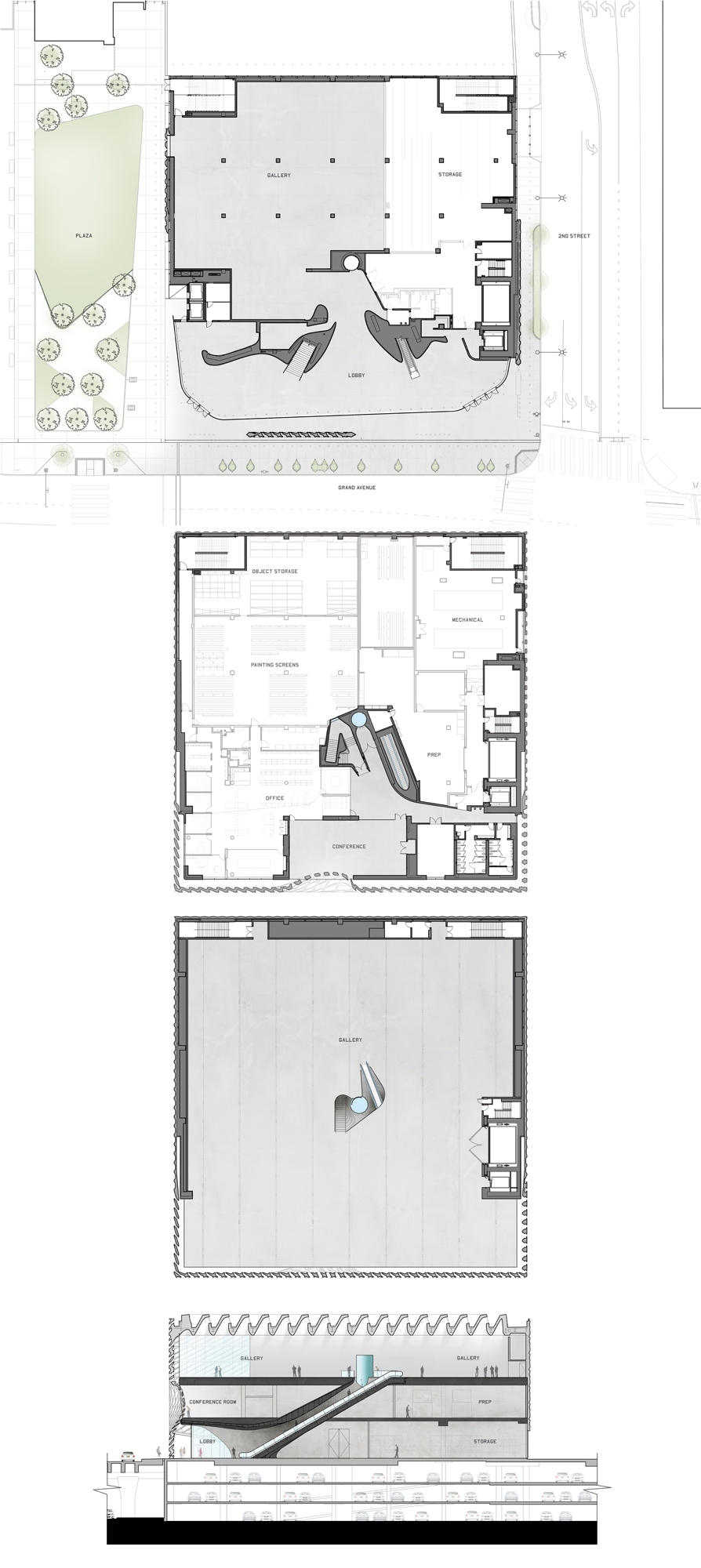
Configuration
Lower levels: Three-story, 366-space parking garage
First Floor: Two street-level entrances on Grand Avenue, public lobby, museum shop, gallery, multimedia space, collection storage, 105-foot escalator to third floor gallery, cylindrical glass elevator and central stairs to second and third floors
Second Floor: Collection storage visible to museum visitors through windows in a central stairwell leading from the third floor galleries down to the first floor lobby, museum offices, lecture hall
Third Floor: 35,000-square-foot, column-free gallery space with filtered natural light from skylights and windows
Principal Features
Dubbed “the veil and the vault,” the museum’s design merges the two key programs of the building: public exhibition space and the storage that will support The Broad Art Foundation’s extensive lending activities. Rather than relegate the storage to secondary status, “the vault” plays a key role in shaping the museum experience from entry to exit. Its heavy opaque mass is always in view, hovering midway in the building. Its carved underside shapes the lobby below and public circulation routes. Its top surface is the floor of the third floor galleries.
The vault is enveloped by the “veil,” a porous, honeycomb-like, exterior structure that spans across the block-long building and provides filtered natural daylight. The museum’s “veil” lifts at the corners, welcoming visitors into an active lobby. The public is then drawn upwards via escalator, tunneling through the vault, arriving onto nearly an acre of column-free gallery space bathed in diffuse light. The gallery has 23-foot- high ceilings, and the roof is supported by 7-foot-deep steel girders.
Departure from the third floor gallery space is a return trip through the vault via a winding central stair that offers glimpses into the vast holdings of the collection.
The Vault
● 36 million pounds of concrete make up the three-level “vault”
● 50,000-square-feet of gallery space including 35,000-square-feet of column-free space
● 21,000-square-feet of collection storage space
● The second floor concrete slab cantilevers 45-feet over the lobby.
The Veil
● The veil is made primarily of 2,500 fiberglass reinforced concrete (GFRC) panels and 650 tons of steel.
● The veil is supported at three points: the connections on 2nd Street and GTK Way, and the major 32-ton, 57-foot-long touchdown beam on Grand Avenue which sits 5-feet below the sidewalk and can manage loads of up to 3,000 tons.
● The Grand Avenue touchdown beam can rock about a central pivot point allowing the entire veil structure to slightly “see-saw” back and forth along its plane during a major earthquake. Each end of the beam is allowed to move up and down by ¾ of an inch.
● The roof includes five 190-foot steel girders weighing approximately 70 tons each.
● The roof has a 40-foot cantilever over the third floor gallery.
● The roof includes 318 skylight monitors with glazed openings to harvest diffused sunlight coming from the north.
● 30 percent of the total veil molds are used solely to form the “oculus” portion of the veil to create its intensely curved shape which indents the veil into the building and the vault.
● Veil countries of manufacture: Germany, Czech Republic, USA
Glazing
● The lobby includes 37 glass panels that are 20-feet by 5-feet, 6-inches, weighing 2,198 pounds each.
● The lecture hall includes seven glass panels that are 16-feet, 5-inches by 5-feet, weighing 2,044 pounds each.
● The galleries include 52 glass panels that are 24-feet and 10 ½ inches by 4-feet, 11 inches, weighing 4,881 pounds each.
● Glass countries of manufacture: Germany, Austria, USA, Mexico (elevator hoistway glass)
Parking Garage
● 155,000-square-foot, three-story subterranean parking garage
● 366 parking spaces
Public Plaza, Restaurant and Grand Avenue Streetscape
Description Public amenities associated with The Broad include an adjacent 24,000- square-foot public plaza, a new restaurant being developed by restaurateur Bill Chait, a new mid-block traffic signal and crosswalk connecting The Broad and public plaza with MOCA and the Colburn School and additional streetscape improvements. The plaza’s bosque of 100-year-old Barouni olive trees and grass create public space for picnics, outdoor films, performances and educational events. Pedestrians will use wide stairs and an elevator at the Hope Street end of the plaza to access Hope Street and the planned 2nd and Hope Street Metro Regional Connector station.
Principal Features
● The 24,000-square-foot plaza is supported by 18 pre-cast concrete or steel columns, seven girders and seven secondary beams made up of composite pre-cast and reinforced concrete or steel over GTK Way
● Plaza surfaces include: decomposed granite, etched concrete paving, Saint Augustine grass lawn, flowering groundcover
● New mid-block traffic signal and crosswalk connecting east and west sides of Upper Grand Avenue, planted median and new traffic lane striping
● Widened sidewalks on western side of Grand Avenue
Plantings
● A bosque of 100-year-old Barouni olive trees on the plaza
● Nodding Pincushion planters along residential tower
● Saint Augustine grass
● Dymonida sedum
● Chinese Pistache trees along Upper Grand between 2nd and 3rd streets
● Olive trees flanking pedestrian crosswalk and on Grand Avenue median
● Bulb planters in front of The Broad with native flowering grasses
Lighting
● Up-lit trees on plaza and in crosswalk
● New LED street lights
● In-ground up-lights along Grand Avenue
● Street lighting below the plaza
Diller Scofidio + Renfro
Executive Architect: Gensler
Landscape Architect: Hood Design (Walter J. Hood)
Construction: MATT Construction
Lighting: Tillotson Design Associates
Structural: Saiful / Bouquet Structural Engineers (Tom Bouquet)
Civil: KPFF Consulting Engineers (Rick Davis)
Traffic Engineers: Crain & Associates

• [Fotógrafo]

Por

Iwan Baan

• [Fotógrafo]

Por

Iwan Baan

Galería de proyectos

Últimos productos en nuestro catálogo