Project Header Image
    Inicio/

    Slice

Slice

Slåttevik, Haugesund, 2015

Etiquetas

Arquitectura

• [Fotógrafo]

Por

© Bent René Synnevåg

• [Fotógrafo]

Por

© Bent René Synnevåg
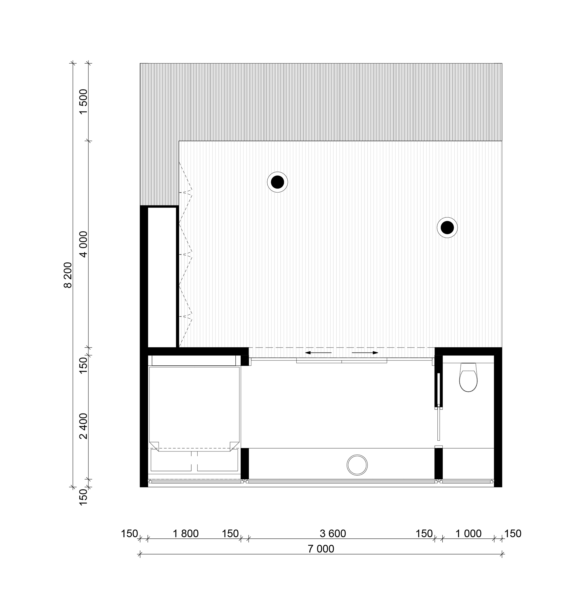
A house doesn’t need to be more than 15 m2 to be called a house.
As a consequence of the global economic recession and increase of centralization, architects worldwide take on the challenge of designing small houses. The design ideas are often proportionally inverted by the sizes.
A small building on just 15m2 is just as likely to give the architect a pleasurable task than a ginormous building on 5000 m2. A significant reduction of size and budget is not necessarily synonymous with a reduced ingenuity. Designing small houses even grant a greater sense of freedom. They are ideal for young architects to start of their careers with.
«How can we get the most out of this project?», was the question Saunders and his colleagues had in the back of their minds when they first sat down to draw the extra and outdoor guest room that the client wanted. They worked with the premises given by the site, and that meant preserving the old, existing plum trees in the garden. As a result the plum trees now grow through the triangular building, undisturbed. The contrasting colors of the black exterior against the white interior helps giving the impression of the building being «a slice» in the garden.
Artists sometimes work on the architects’ court, and sometimes architects work in the intersection between art and architecture. Saunders believe that it’s easier to let the fantasy run loose on small buildings. At least the chance of succeeding is greater. Artists such as Doug Aitken and Olafur Eliasson have too made small houses. Perhaps the small houses with their sculptural shapes are in an area bordering between art and architecture?
«Slice» describes the little house Todd Saunders drew in a small garden in Slåttevik just outside Haugesund in Norway. The challenge was: how do we design a 15 m2 sized house in the most exciting way possible? The buliding was supposed to be small, yet have a perfect design.
The fundamentals for this house are: it has to be a lovely place to spend an afternoon, spend a night, and a a good place to start the day. In the end, «Slice» became more than what we usually expect from a house, and also more unsual.
Stretching out the terrace resulted in a bigger room and a sculptural shape that frames the whole house while creating a yard.
Text by: Tone Rønning Vike
Saunders Architecture

• [Fotógrafo]

Por

© Bent René Synnevåg

• [Fotógrafo]

Por

© Bent René Synnevåg

• [Fotógrafo]

Por

© Bent René Synnevåg

Galería de proyectos

Últimos productos en nuestro catálogo