Project Header Image
    Inicio/

    Skotbu

Skotbu

2024

Proyecto de

Fjord Arkitekter

Etiquetas

Arquitectura

• [Fotógrafo]

Por

Monica friedrich johannessen
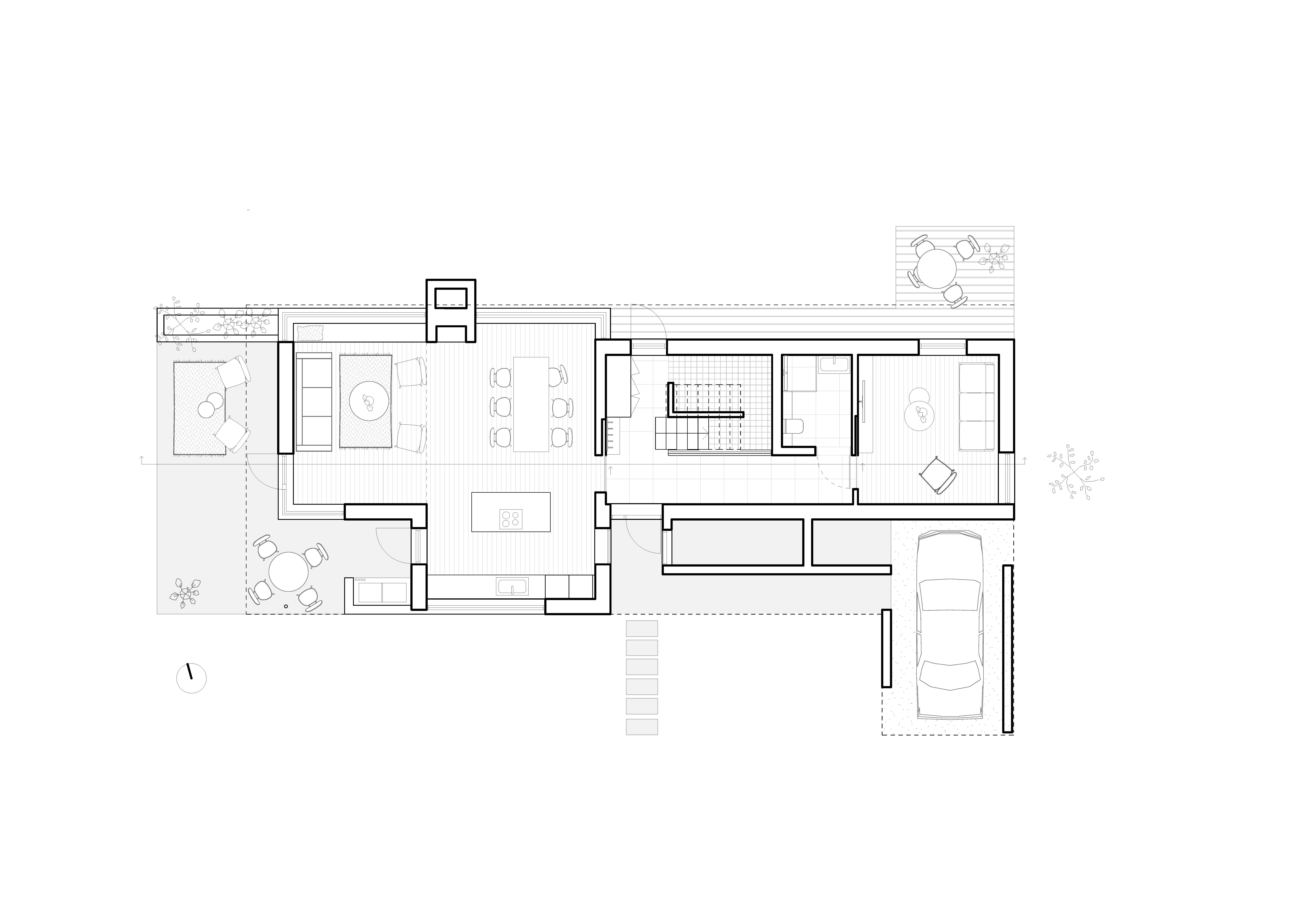
Nestled in the serene landscape of Skotbu, Norway, Skotbu house is a piece of modern architecture that exudes simplicity, functionality, and a deep connection with nature. This single-family residence, carefully positioned on the northeast side of the plot, boasts a sunny garden on the southwest part, perfect for basking in the warmth of the sun. The thoughtful design of the carport creates a natural separation from the neighbors, while the horizontal facade, crafted with meticulous attention to detail, features distinct materials between the floors, evoking a sense of harmony with the surroundings.
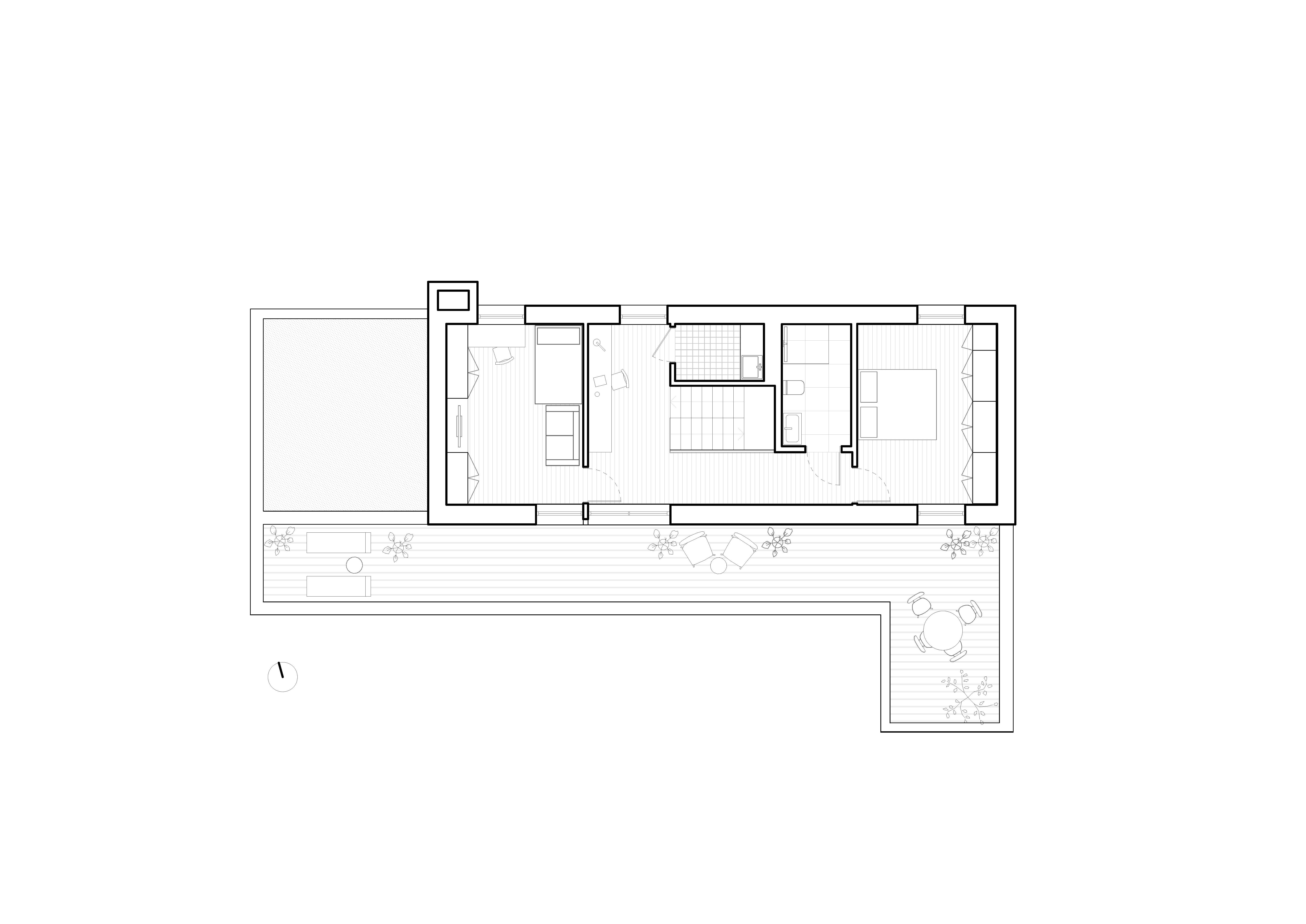
The first floor, built with loadbearing construction blocks, forms a sturdy base, while the light wooden construction of the second floor seems to float effortlessly above. Large corner windows on the first floor blur the boundaries between indoor and outdoor spaces, allowing the breathtaking views of the winter landscape to take center stage. The second floor, with its strategically placed windows, provides a private retreat while still offering an intimate connection with nature. The textured outdoor plaster, achieved through expert craftsmanship, adds a tactile quality to the design.
Inside, the fluid layout creates a seamless flow between living spaces, fostering interaction and a sense of continuity. The central living area, with its carefully positioned windows, becomes the heart of the home, blurring the lines between indoors and outdoors. Upstairs, private rooms are thoughtfully arranged around a central hallway, maintaining a sense of connection to the surrounding landscape while providing privacy. With its modern, minimalist aesthetic and masterful use of natural light, Skotbu house is a serene oasis that celebrates the beauty of Norwegian nature.

Design Team:

Lead Architect: Maria Inês Correia
Stylist: Marthe bergan osen

• [Fotógrafo]

Por

Monica friedrich johannessen

• [Fotógrafo]

Por

Monica friedrich johannessen

• [Fotógrafo]

Por

Monica friedrich johannessen

• [Fotógrafo]

Por

Monica friedrich johannessen

Galería de proyectos

Últimos productos en nuestro catálogo

Mostrar el producto Steeve Lou - 3 Lugar del fabricante Arper