Project Header Image
    Inicio/

    Pinterest Headquarters

Pinterest Headquarters

Palo Alto, 2013

Proyecto de

First Office

Etiquetas

Arquitectura

• [Fotógrafo]

Por

Naho Kubota

• [Fotógrafo]

Por

Naho Kubota

• [Fotógrafo]

Por

Naho Kubota
When we first met with Pinterest, it was to discuss their office in Palo Alto. There were 12 people in the group, but they were growing quickly. Evan and Ben, Pinterest’s founders, asked us to design an office environment that could reflect their unorthodox character and growth. Our response was through monumentality. Rather than buying a desk for every new engineer, we proposed one large table that would reach maximum capacity over a long period of time. It measured 32’ x 32’, and could easily fit sixty people. The table went into production, when we were called in for another meeting.
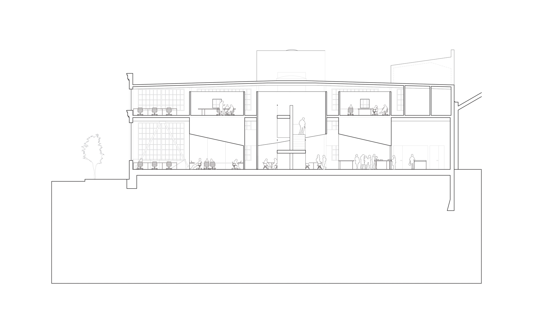
The company had exploded. Pinterest had tripled in size and the partners found a 45,000 square foot warehouse in San Francisco that could easily fit 300 people. They wanted a space that would be in a perpetual state of creation. No matter how big the company got, designers and engineers would feel encouraged to contribute their best ideas, to fill in the blank, to decorate, destroy, and exhibit again. We understood, that like the website itself, the office environment would have to offer an abstract framework within which collaborative, social, and emotional relationships could begin to form and transform the architectural space.
To our next meeting, we brought a plan, a model, and a quote—not a price quote, which we are sure they would have preferred—but a quote from the short formalist essay, “Art as Technique,” from 1917, by the literary theorist, Victor Shklovsky:
Habituation devours works, clothes, furniture, one’s wife, and the fear of war. ‘If the whole complex lives of many people go unconsciously, then such lives are as if they had never been.’ The technique of art is to make objects ‘unfamiliar,’ to make forms difficult, to increase the difficulty and length of perception because the process of perception is an aesthetic end in itself and must be prolonged.
We argued that a creative office cannot function on terms of efficiency, connectivity and productivity alone. For each person to take part in the creation of company culture, we would need to counter the habitual environment of the desk, the conference room, and the corner office. The idea of a non-habitual office space continued certain qualities of the initial house where Pinterest was born. There were no cubicles or hierarchies, just a domestic interior transformed by tech loving young people into a workplace.
With these thoughts in mind, we designed a catalog of strange objects. Big volumes that we called ‘houses’ would create pockets within the open warehouse. Different monumental tables would require for people to invent new ways of organizing a meeting, occupying a war room, coming together for a collective lunch or throwing a party at the bar. Even the most democratic, circular table, in inverse, would become a lock-down room for engineers on a deadline. All around, white and glass surfaces would turn into white boards, pinboards, and graffiti walls. The domestic interior would grow thick with objects, sketches and ideas formed through social contact.
We placed four houses into the warehouse, forming at its center a big, gathering space and at its edges a thick infrastructural corridor with service spaces that are variously expansive and compressed. We hope people will see opportunity here to chat with their coworkers, go deep into their work, enjoy the heat of the sun or a darkened room, and let the blood rush to their heads.
All of the Above | First Office, Project Designers:
Janette Kim, Anna Neimark and Andrew Atwood, with Charlie Able, Benjamin Farnsworth, Rachel Hillery, Mark Acciari, Austin Kaa, Steven Moody, Ewan Feng, Kate Hajash, Brian Lee, Darle Shinsato, Jane Zhu, Fiona Booth, Katie Okamoto, Margaret Zyro
Schwartz and Architecture, Executive Architect:
Neal Schwartz, Lourdes Garcia, Neil O’Shea, Wyatt Arnold, Erik Bloom, Joshua Yoches
Pinterest Team: Everett Katigbak and Per Johansson
Project Manager: Gina Caruso, Relocations Connections, Inc.
Contractor: NOVO Construction
Structural Engineer: Yu Structural Engineers
Furniture Designer: One Workplace
Lighting Designer: Pritchard Peck

• [Fotógrafo]

Por

Naho Kubota

• [Fotógrafo]

Por

Naho Kubota

Galería de proyectos

Últimos productos en nuestro catálogo

Mostrar el producto Halong del fabricante Durbanis
Mostrar el producto LO Value PET and can press del fabricante Lista Office LO