Project Header Image
    Inicio/

    Neue Messe

Neue Messe

Stuttgart, 2013

Proyecto de

wulf architekten

Etiquetas

Arquitectura

• [Fotógrafo]

Por

Archigraphie, Steffen Vogt

• [Fotógrafo]

Por

Archigraphie, Steffen Vogt

• [Fotógrafo]

Por

Archigraphie, Steffen Vogt
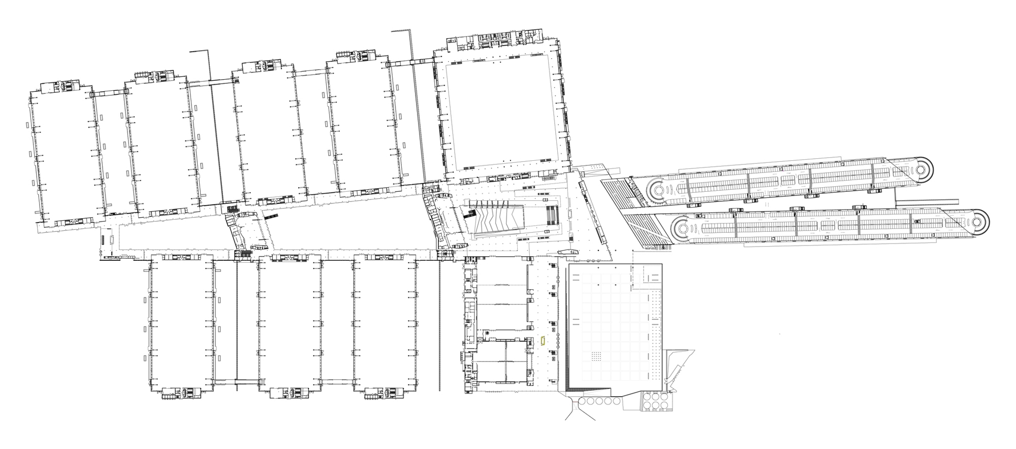
The Neue Messe exhibition centre venue is characterized by minimal use of the landscape, short paths and exhibition halls with distinctive curved roofs. The Messepark’s wedge shape makes it easier to get one’s bearings. Changes in level create ideal access for loading and unloading. The congress centre and the multifunction hall - with an outline like a circus big top – are visually distinct from the exhibition halls. The planted multi-storey car park rises above the autobahn and the planned ICE line and acts as a kind of “super sign” for the venue. The Neue Messe at Stuttgart airport responds to the topography of its surroundings, and makes sensitive use of ecological resources. A solar power array, 40,000 metres in size, is integrated into the roof. The structure’s free, curved lines are underpinned by a clear, rational formal vocabulary. The whole complex looks light and expansive.
wulf architekten

• [Fotógrafo]

Por

Archigraphie, Steffen Vogt

• [Fotógrafo]

Por

Archigraphie, Steffen Vogt

Galería de proyectos

Últimos productos en nuestro catálogo