Project Header Image
    Inicio/

    Katharinenschule

Katharinenschule

Hamburg, 2009

Etiquetas

Arquitectura

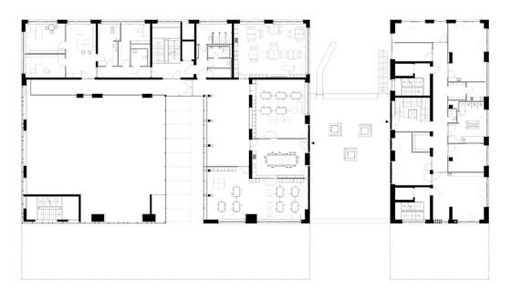
HafenCitySchule Entwurfskonzept
Die Schule am Sandtorpark ist das erste öffentliche Gebäude in der neu entstehenden HafenCity und Teil eines urbanen dichten Stadtquartiers. Das knapp bemessene Grundstück ersparte den Planern die Diskussion um eine zeitgemäß kompakte und flächeneffizient gebaute Schule. Über die schulische Nutzung hinaus, wurden hier in einer Art „hybridem“ Gebäude eine Kindertagesstätte und ein Hort mit Mensa, die von allen drei Einrichtungen genutzt wird, realisiert. Oberhalb der Kita entstanden ferner 30 Wohnungen verteilt auf 6 Geschosse.
Im Gegensatz zu den üblicherweise realisierten zwei- und dreigeschossigen Schulen wurde ein fünfgeschossiges Gebäude geplant, das nicht nur unkonventionell mit schulischen Freiflächen umgeht, sondern auch die Turnhalle so in die Kubatur integriert, dass ein energetisch sinnvolles Volumen entsteht. Die Sporthalle lässt aufgrund einer separaten Erschließung die Mehrfachnutzung durch Sportvereine in den Abendstunden und an Wochenenden zu.
Der „Schulhof auf dem Dach“ der HafenCity Schule wurde zum heiß diskutierten Wahlkampfthema der letzten Hamburg – Wahl. Die anfängliche Ablehnung schlug in begeisterte Zustimmung um, als man sich nach Fertigstellung von der Attraktivität und Einzigartigkeit dieses Freiraumes überzeugen konnte. Ein 4m hohes, die Dachfläche umgebendes Netz verhindert Kletterversuche der Kinder, ist aber gleichzeitig Kletterhilfe für die Bepflanzung mit wildem und echtem Wein, der in 2-3 Jahren für eine grüne Krone des Hauses sorgen wird. Hier können die Schüler Erfahrungen mit Pflanzen sammeln, den Wechsel der Jahreszeiten beobachten und auch Früchte ernten. Eine mit Segeln bespannte Pergola gibt Sonnenschutz und trägt ein heiteres Bild der Schule nach außen. Ein 2. Schulhof zu ebener Erde befindet sich teilweise unter der 7,5m weiten Auskragung der Obergeschosse und ist so auch bei Regen bespielbar.
Das Entwurfskonzept ordnet das Raumprogramm der Schule um ein zentrales nach oben offenes Atrium, das so nicht nur die dort platzierten Sonderräume mit ihren Fluren, sondern auch die Aula, die gleichzeitig Pausenhalle ist, grosszügig belichtet. Das Atrium schafft kurze Wege und gute Orientierung, wird von Lehrern wie Schülern geschätzt. Die Klassenräume und Gruppenräume können von hier aus über grosszügige Öffnungen ebenso eingesehen werden wie die Turnhalle. Auffallend sind die spielerisch schrägen Fensterleibungen am ganzen Gebäude. Sie wurden eingesetzt, um in dem neuen Stadtteil mit vielen Büro- und Wohnhäusern ein Fassadenthema zu entwickeln, das heiter auf die Andersartigkeit und Besonderheit der Nutzung hinweist, ohne laut zu werden. Das Motiv der Schrägen zieht sich wie ein roter Faden durch das ganze Haus.
Sowohl die tanzenden Treppengeländer wie auch die Umwehrungen des Dachgartens folgen diesem Leitmotiv.
Ein besonderes Anliegen war der Umgang mit Material und Farbe, die sorgfältig aufeinander abgestimmt wurden.
Konzeptionell sind die allgemeinen öffentlichen Bereiche wie Aula, Mensa, die Treppenhäuser und der Schulhof auf dem Dach in kräftigen Farben gehalten, während die Flure und Klassenzimmer bewusst auf Farbakzente verzichten, da diese durch die Nutzer ohnehin gesetzt werden.
Für den Boden der Aula wurde mit einem froschgrünen Kautschuknoppenbelag ein robustes Material gewählt, das dauerhaft gut aussieht. Er ist kombiniert mit roten Flächen, die die Eingangszone in der Halle akzentuieren und sich in der Mensa fortsetzen. Als Leitmaterial für Wände und konstruktive Teile wie Stützen und Unterzüge wurde hier sichtbar belassener Beton eingesetzt, der sich von den ansonsten weißen Wand- und Türoberflächen abhebt.
Auch die Treppenläufe sind sichtbare Betonfertigteile, die mit Eichenparkett auf den Trittstufen veredelt wurden. Auch in den Klassenräumen wurde Eichenparkett verlegt, das hier eine angenehme Farbstimmung vermittelt. Holz ist auch bei den Fenstern im Einsatz, die mit Holzklappen zur Dauerlüftung oder Nachtauskühlung kombiniert werden.
Für die Außenfassade wurde ein heller dänischer Klinker in Beige- und Grautönen verwendet, der in seinem Erscheinungsbild mit Beton harmoniert und ein diskretes Farbspiel entwickelt. Die Metallleibungen der honigfarbenen Holzfenster Fenster sind dem Mauerwerk angepaßt und nehmen sich zurück. In die Fenster sind Lüftungslamellen integriert, die eine natürliche Nachtauskühlung der Räume fördern.
Das Gebäudeensemble wurde nach dem HafenCity Umweltzeichen der Kategorie Gold zertifiziert, welches für besonders nachhaltige Bauvorhaben vergeben wird. Das kompakte Gebäude entspricht dem KfW 60- Standard und erreicht einen hohen ökologischen Standard durch zusätzlichen Einsatz regenerativer Energien in Form von Solarthermie und durch die Verwendung von Baustoffen mit beispielhafter Ökobilanz. Die Nutzung von "Grauwasser" und der Einsatz wasserloser Urinale für die Schule reduzieren den Grundwasserverbrauch.
Die Mehrfachnutzung vieler Bereiche auch für außerschulische Veranstaltungen tragen ebenso wie die Synergien zwischen Schule und Kita zur Einsparung von Ressourcen und somit zur Nachhaltigkeit bei.
Spengler · Wiescholek Architekten und Stadtplaner Hamburg
Hunck + Lorenz Freiraumplanung Landschaftsarchitekten BDLA Partnerschaft, Hamburg

Galería de proyectos

Últimos productos en nuestro catálogo

Mostrar el producto High Table Xl 2000 Wt202 del fabricante Interstuhl