Project Header Image
    Inicio/

    Kabelwerk Bauplatz D

Kabelwerk Bauplatz D

Wien, 2007

Proyecto de

M&S Architekten

Etiquetas

Arquitectura

• [Fotógrafo]

Por

Jörg Seiler

• [Fotógrafo]

Por

Jörg Seiler

• [Fotógrafo]

Por

Jörg Seiler
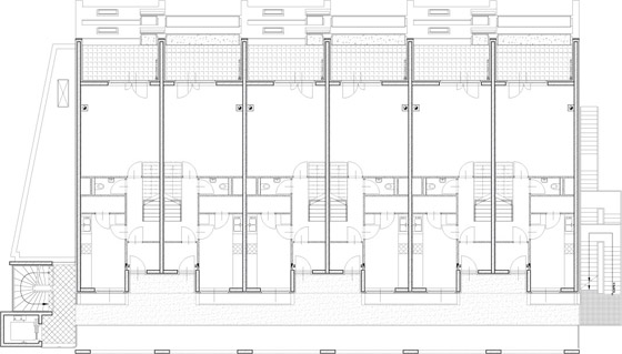
Innerhalb des spannenden städtebaulichen Projektes "Kabelwerk" wird ein Wohnhaus als "autofreies Wohnen" errichtet. Die ungewöhnliche Widmung des Bebauungsplans erlaubt eine ungewöhnliche Form – stapeln und versetzen von Maisonette-Typen ergeben einen Terrassenhaustypus, dessen Fassade die maximale Sonnenexponierung aufweist. Doppelgeschossige Terrassen werden durch Sonnen- und Witterungsschutz zu Räumen. Zum Platz wird eine markante Fassade mit dazwischen geschalteter halböffentlicher Zone errichtet.

• [Fotógrafo]

Por

Jörg Seiler

• [Fotógrafo]

Por

Jörg Seiler

Galería de proyectos

Últimos productos en nuestro catálogo