Project Header Image
    Inicio/

    Bus Station

Bus Station

Osijek, 2011

Proyecto de

Rechner d.o.o.

Etiquetas

Arquitectura

The idea of building a new bus station in Osijek was created in 2007, when the city of Osijek published an invitation to tender for the construction of a new bus station in Osijek on the principle of public-private partnerships. The tender required high quality architectural, and an economically best solution, in terms of construction cost, maintenance and usage. We, the renowned Croatian architect's office Rechner Ltd. from Osijek, were hired by one of the greatest Croatian construction companies “Osijek Koteks Inc.” from Osijek, and together we won the tender previously mentioned.
Problem task was to design the bus station up to A category, which means high quality contemporary architecture, whereas the “Osijek Koteks Inc.” offered the best economic conditions of financing, construction, maintenance and usage.
According to the tender, the city of Osijek and “Osijek Koteks Inc.” signed a contract on public-private partnership in which the city gave land and “Osijek Koteks Inc.” invested in the project and the construction of the bus station. The investor is claimed to use and manage business for the period of 30 years, after which it is obliged to give it into the ownership to the city of Osijek. After the designs were created and all the necessary permits were gained, work started and it hasn’t stopped even at the time of greatest global economic crisis. In the summer of 2011 the bus station in Osijek was officially opened.
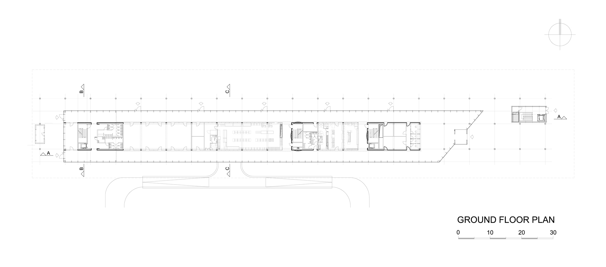
Urban solution of Bus station in Osijek was in many ways defined by its placement in urban tissue. Longitude of the city situated on river Drava is reflected even in the positioning of the Bus station building on the parcel.
Terminal of urban transport is located on the east, the most contractual side of longitudinal parcel: tram station, five platforms for urban transport buses, taxi stand, a large square with dominated roof surface and oblique high wall which points toward the entrance of the building and also separates the platforms from external access.
By its longitude, the bus station building constructed in parallel with the access intrazone road, "closes" 16 bus platforms that are located behind the building, in the "backyard", whose dimensions are 132.9 x 16.4 m. Besides the two-storey high station aula and communication areas there are all necessary trade-service-catering facilities and transportation offices. Facilities are located on ground floor and gallery. Buses arrive at the platform through checkpoints. Passengers access the platforms from the station building.
Slightly wavy dominant roof surface substantially shelters Bus terminal building on all sides, especially over the bus platform and the access of the square, which gives the association of a pleasant bus ride, like sailing on low and long waves. Her "weight" dematerialized glass surfaces of building facades, with a distinctive horizontality of glazed fields. Underground public garage beneath the entire building and the external platform has a capacity for 251 vehicles. It is directly associated with the contents of the bus station building, and pedestrian access is also possible from outside, through the access square. Transportation to the garage is separated from bus traffic.
Supporting structure of underground garage is a reinforced concrete. Supporting structure of the ground floor and staircase core of the bus station building are reinforced concrete columns and beams connected with reinforced concrete slab. Huge roof surface lies on the steel trusses in both directions, bearing steel columns 32 cm in diameter, in raster 8x8 m.
Bus station is characterized by extreme modernity, both in design and idea, as well as in performance and function. The basic idea is derived through research and tours of many European passenger terminals and airports.
Architects: Predrag Rechner, architect & Bruno Rechner, architect
Collaborator: Ines Pelzer

Galería de proyectos

Últimos productos en nuestro catálogo

Mostrar el producto Catifa (RE) 46 - 4 Patas del fabricante Arper