Project Header Image
    Inicio/

    Bosqueazul House

Bosqueazul House

Medellín, 2021

Etiquetas

Arquitectura

• [Fotógrafo]

Por

Mateo Soto

• [Fotógrafo]

Por

Mateo Soto

• [Fotógrafo]

Por

Mateo Soto
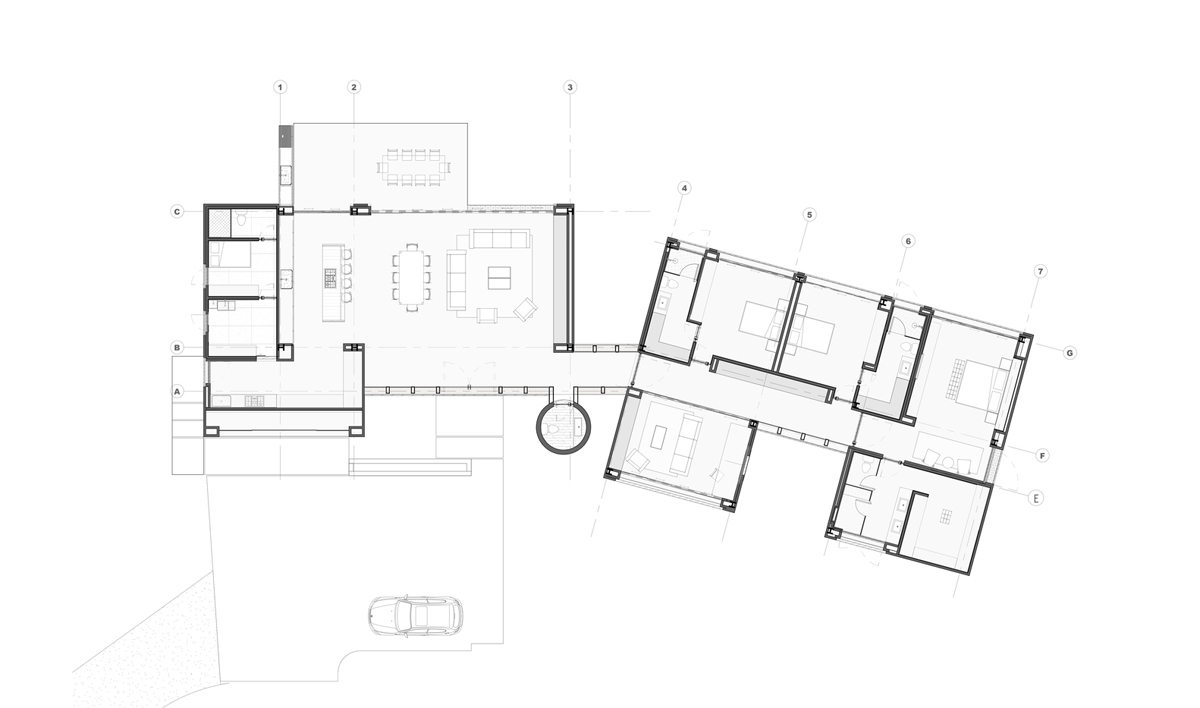
The main objective for the development of this home for its 4 members was to find the continuous relationship of the spaces with the exterior, making the forest surrounding the project the main player and attraction. Therefore, there are overtures in the volumes accompanied by floor to ceiling stained glass windows, allowing the connection and mimic with nature.
The materials shown in it like twice burnt craft brick, splint concrete, raw steel, and wood, look in their atemporality to age in harmony with the environment, maintaining its natural characteristics and allowing in this way to not crash with the siting but rather fuse with it.
The materials are not only part of the exterior but their rather immersive on the inside.
This parameter is made clear on the ceiling of the shared area, that we look to highlight, where the craft brick transforms from a façade material turning into Catalan vaults that cover the space, making its connection to the exterior clearer, creating a warm and cozy space.
The spaces are ruled by exterior visuals, connecting the shared area with the living space and the rooms through garden interrupted corridors, that are part of the interior.
Natural and artificial lighting are key players together, ensuring the natural light entering during the day on all areas and an emphasized materiality of the project precisely at night.

Design team:

Architects: ALH Taller de Arquitectura

• [Fotógrafo]

Por

Mateo Soto

• [Fotógrafo]

Por

Mateo Soto

Galería de proyectos

Últimos productos en nuestro catálogo

Mostrar el producto Genesis, floating knit del fabricante Terzani