Lisbon, 2022
Proyecto de
RAR.STUDIOEtiquetas
Arquitectura de interior
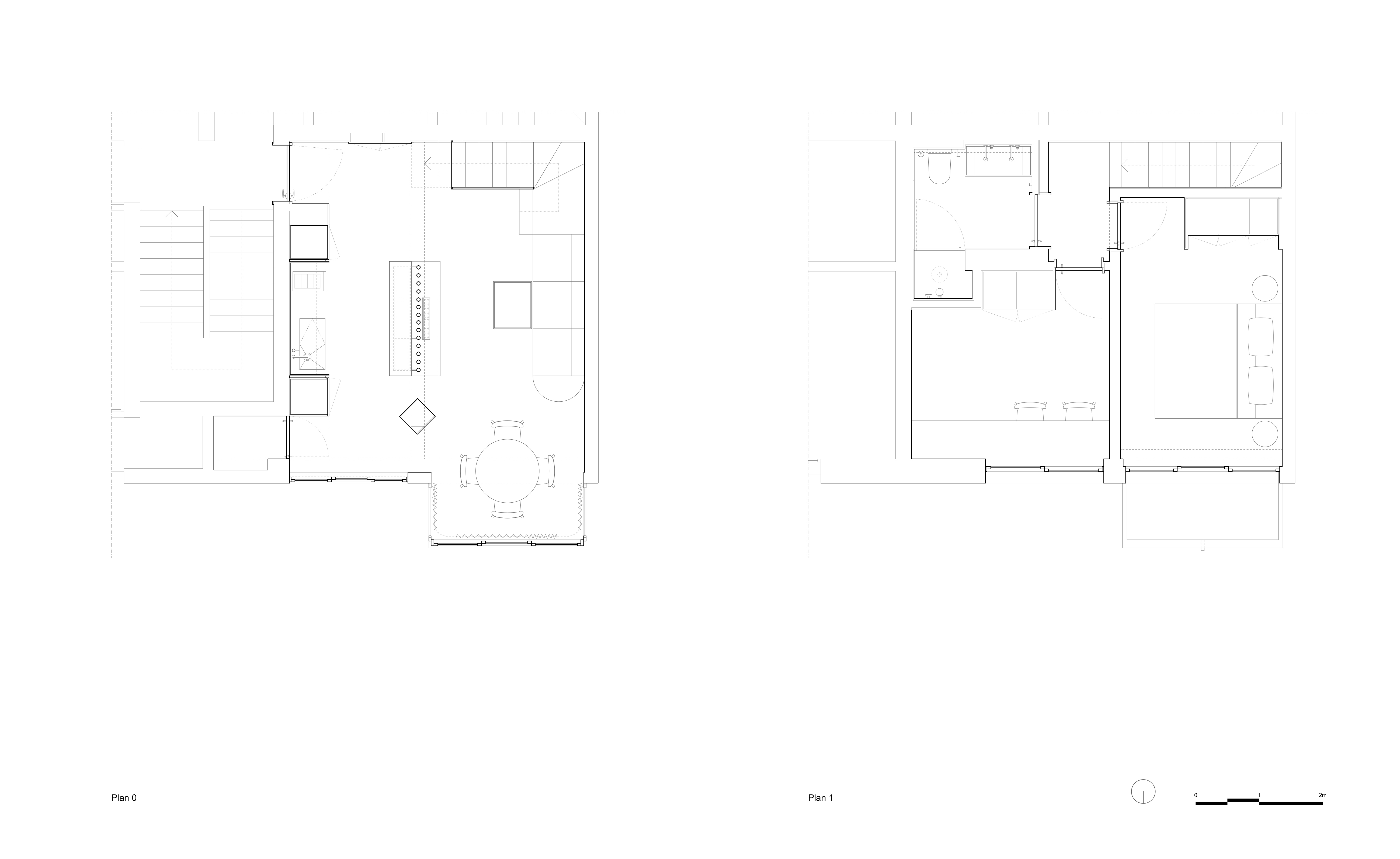
Apartment AR is a small duplex in a 1960s building in Lisbon’s Campo de Ourique neighbourhood.
The clients divide their time between the countryside – in a large, spacious house – and the city, where they wanted to have a flat that contained the bare minimum but could provide ample comfort for the couple and their cat Alice when they came to stay in town.
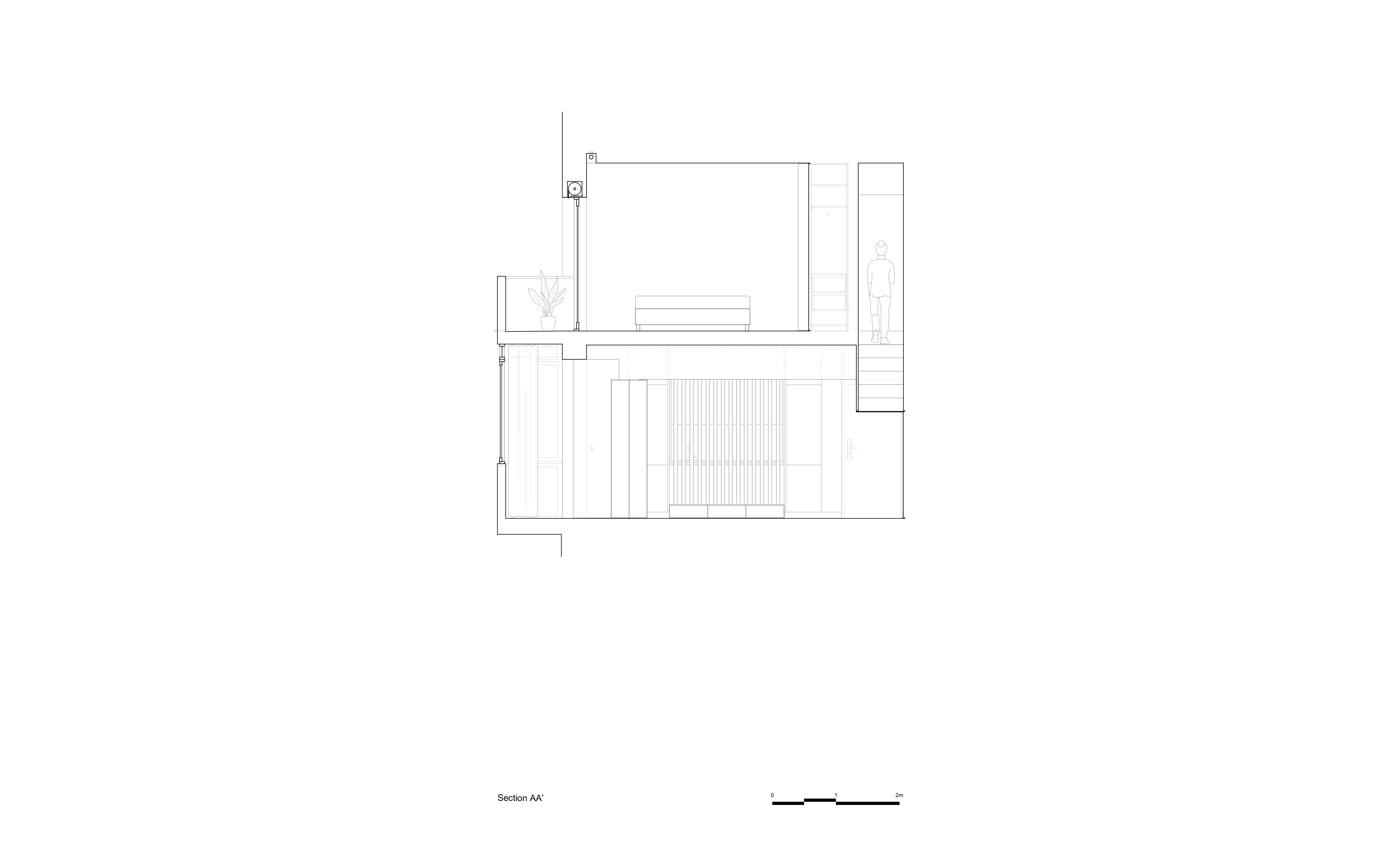
On the lower floor there is now a single space, with a central structure that mediates and supports the kitchen and living room areas. The existing large staircase has been replaced by a light, delicate, metal structure, which takes advantage of the double height ceiling. The interior door openings were resized, and the carpentry system has been completely redesigned, contemplating new items.



















