Project Header Image
    Home/

    Shanghai Hongqiao Performing Arts Center

Shanghai Hongqiao Performing Arts Center

Shanghai, 2016

• [Photographer]

By

Shu He

• [Photographer]

By

Shu He

• [Photographer]

By

Shu He
Highly visible
The project is located in Tianshan Road, the new commercial boulevard in Hongqiao, one of Shanghai’s high activity districts. It is surrounded by brightly lit shopping malls built this century. This development replaces and expands on the existing state run cinema centre on the site. The project was the subject of three rounds of invited competition over 5 years before BAU was contracted to design the project.
Exposure to difference
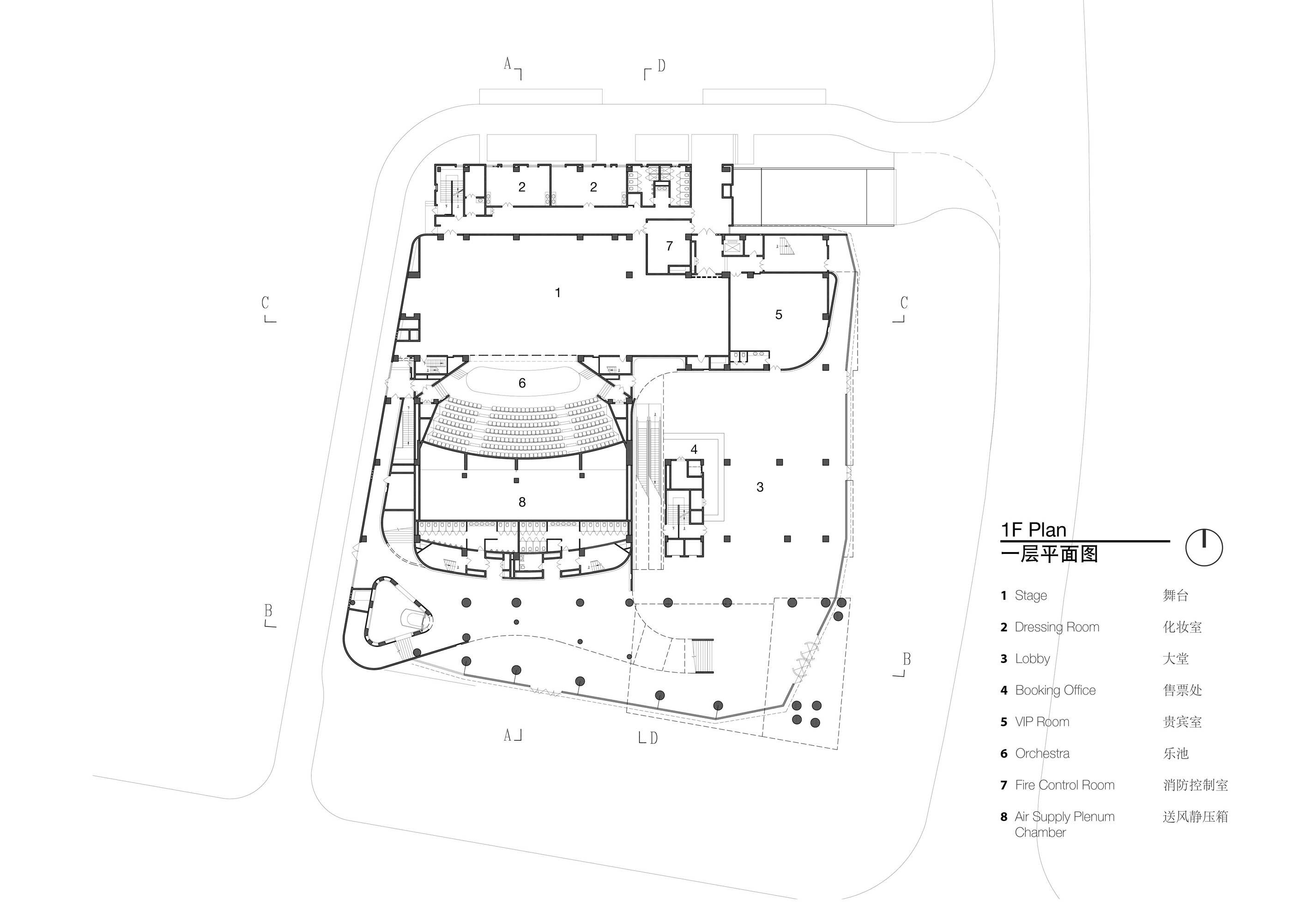
This project includes both traditional and modern programs of mass entertainment: theatre (1000 seats) and cinema (seven of various capacities). Usually seen as separate programs and increasingly supported by distinctly different user groups, this project presents the opportunity for the two different programs and variable patrons to engage. Articulating the programs as separate objects and linking them via an enclosed plaza creates an in-between-space in which the differences between the programs are enhanced, the potential for cross-patronage is maximised, and cross-fertilisation between the performing arts is encouraged.
An assemblage of difference
The theatre is developed as a stone monolith (a traditional material for a traditional program) with rounded articulation and a theatrical staircase. The cinemas are an ensemble of stacked metal boxes (a 20th Century material for a 20th Century program), the largest of which is suspended above the street corner. The enclosed plaza or mixing-lobby has ticket offices, café, flexible exhibition and event space, and open views to the external plaza and streetscape, also designed by BAU.

Design team:

BAU Project Team:
Architecture Team: James Brearley, Steve Whitford, Jiang Han, Luo Huaili, Liu Shuai, Song Hui, Yang Qing’an, Xia Wen, Emma Rytoft, Rong Yu, Li Fuming
Landscape Team: Robin Armstrong, Luo Li, Liang Yongqing, Chen Qi
Contractor: Jiangsu Guangyu Construction Group
Documenting Architect and Engineer: Qingdao Times Architectural Design Co., Ltd
Interior Architect: BAU + Shanghai Jianke Architectural Design Institute Co., Ltd
Acoustic Design & Consultant: Shanghai Research Institute of Building Science Group
Theater Stage Tech: Zhejiang Dafeng Industry Co., Ltd.
Cinema Tech: Shanghai Paradise CineTech Co., Ltd.
3D Rendering: BAU
Client: Shanghai Changning Cultural Bureau

• [Photographer]

By

Shu He

• [Photographer]

By

Shu He

Project Gallery

Latest products in our catalog