
PhotographerLorenzo Zandri

PhotographerLorenzo Zandri
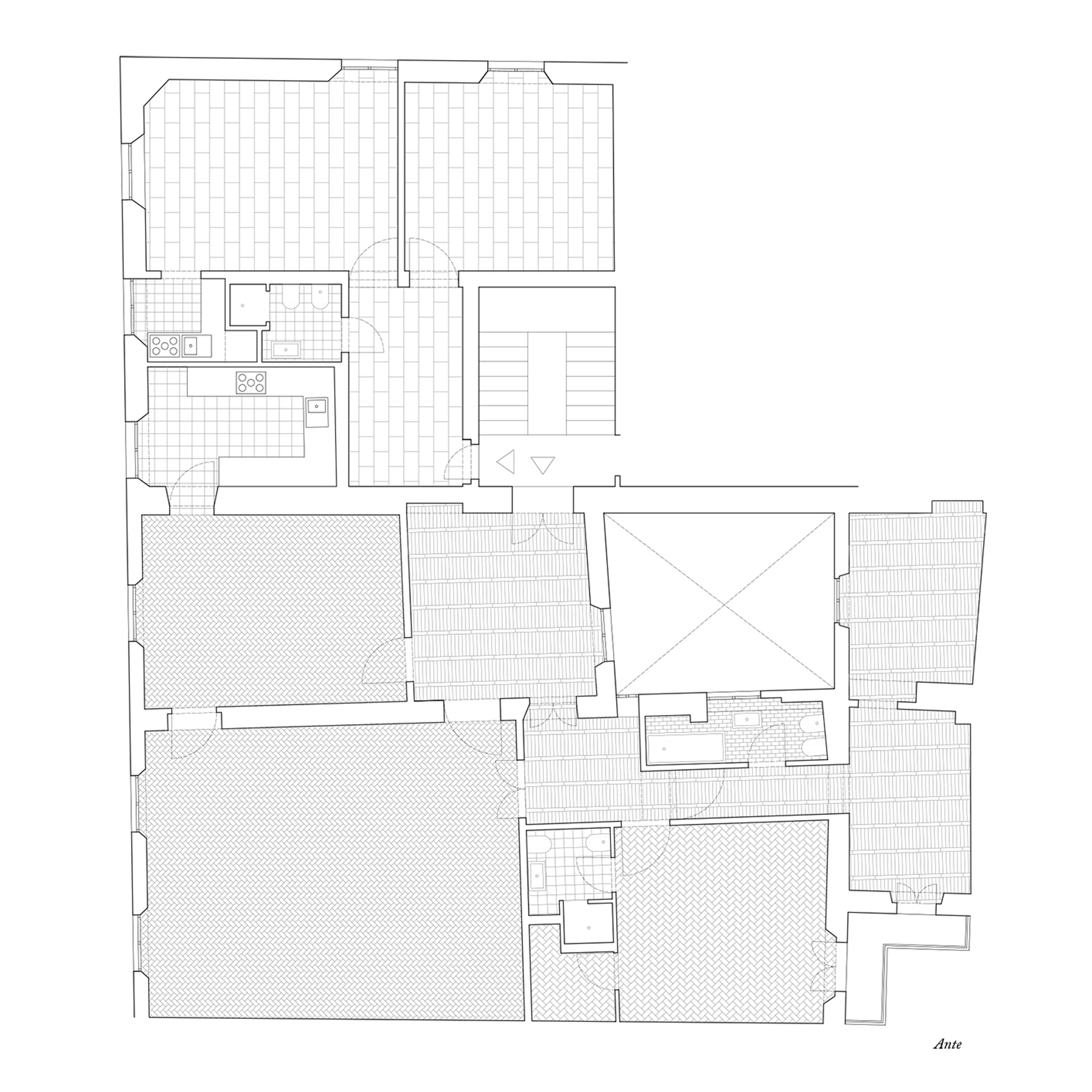
The project restores the original consistency of an apartment overlooking the church of Santo Spirito in the historic centre of Florence, altered over the years by divisions, modifications and wear.
The intervention consists in a total revision of the layout of the house, aimed at satisfying the needs of the contemporary living of a young family, in parallel with the consolidation and restoration of the structures of the historic building which it belongs to.
The new layout provides for a clear division between the living area, consisting of the largest rooms with the best views, and the sleeping area, located in the quietest and most intimate part of the house.
The living area, through large openings in the existing walls, appears as a continuum of spaces unified by a restricted palette of materials and light tones (terrazzo, lacquered timber, painting).
The sleeping area has greater variation in colours and materials, with teak parquet floors for the bedrooms and microcement and lime plaster in warm tones for the bathrooms.

PhotographerLorenzo Zandri

PhotographerLorenzo Zandri

PhotographerLorenzo Zandri

PhotographerLorenzo Zandri

















