Project Header Image
    Home/

    LBK

LBK

Adelaide, 2018

• [Photographer]

By

Sam Noonan

• [Photographer]

By

Sam Noonan

• [Photographer]

By

Sam Noonan
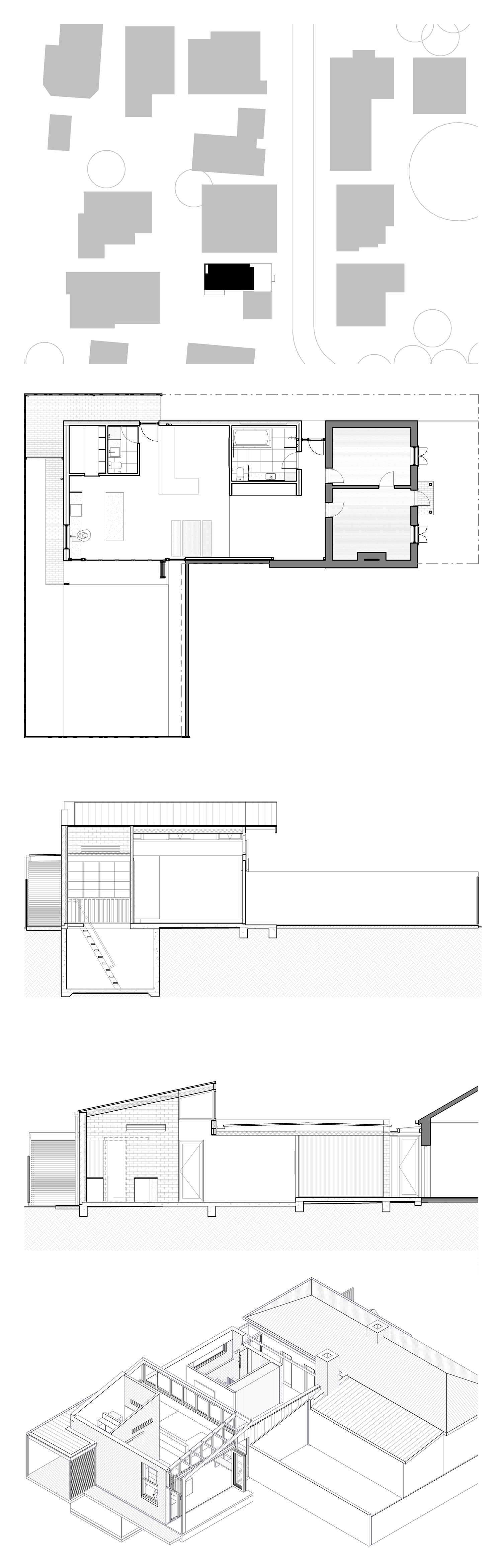
A modern, light filled extension to the rear of a quaint heritage listed cottage, set in a narrow, leafy suburban laneway. The major driving factor was to replicate the mass and scale of the existing cottage to create the rear living area, with a flat, low scale, minimalist link between the two.
The rear living area opens to high level sky views and a seamless transition between interior and exterior, where the existing yard aspect has been reoriented from west to south. Careful consideration of junctions between existing and new elements has allowed for clear definition yet still creates harmony between modern and heritage aesthetics.

Design Team:

Ply Architecture

• [Photographer]

By

Sam Noonan

• [Photographer]

By

Sam Noonan

Project Gallery

Latest products in our catalog