Project Header Image
    Home/

    House_SL

House_SL

2010

• [Photographer]

By

Dietmar Tollerian

• [Photographer]

By

Dietmar Tollerian

• [Photographer]

By

Dietmar Tollerian
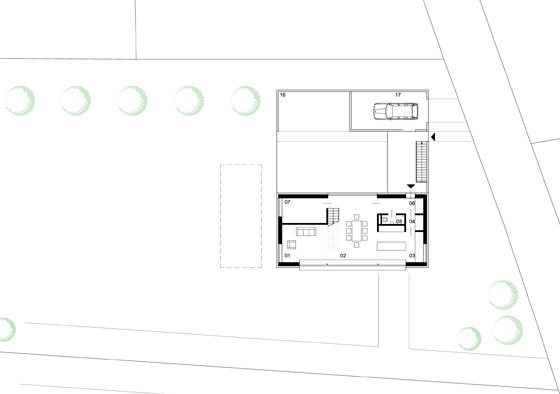
Das Gebäude befindet sich an einem Südhang zwischen den Orten Mittertreffling und Gallneukirchen. Auf dem gegenüberliegendem Hang führt die Mühlkreisautobahn und im Tal die Bundesstraße vorbei, welche eine ganz erhebliche Beeinträchtigung des ansonsten wunderschönen Grundstückes darstellen. Dies war auch Ausgangspunkt der Entwurfsstrategie. Das Gebäude wurde nicht wie üblich an die Nordgrenze der Parzelle gestellt, sondern bewusst als „Lärmschutzwand“ und als „Stützwand“ zur Ausbildung einer ruhigen und ebenen Hofzone nach Süden gesetzt. Der Hof öffnet sich Richtung Westen und stellt dort die Verbindung zum „natürlichen“ Garten mit Obstbaumbestand her. Die architektonische Ausformung des Gebäudes bezieht sich auf die alten Mühlviertler Hofstrukturen mit ihrer dreiseitigen Anordnung und den weiß-grauen Fassaden. In unserem Fall handelt es sich dabei um Beton und einer Pe-Folie, die um das gesamte Gebäude und Nebengebäude gespannt wurde.

• [Photographer]

By

Dietmar Tollerian

• [Photographer]

By

Dietmar Tollerian

Project Gallery