
Gable Clerestory House
Nestled in amongst a street lined with well-preserved red brick Federation-era houses, Gable Clerestory House presents a quiet and homogenous frontage to the street. Beyond the façade lies a mid-century-inspired family home with dynamic ceiling heights, delightful sky views, and an earthy palette.
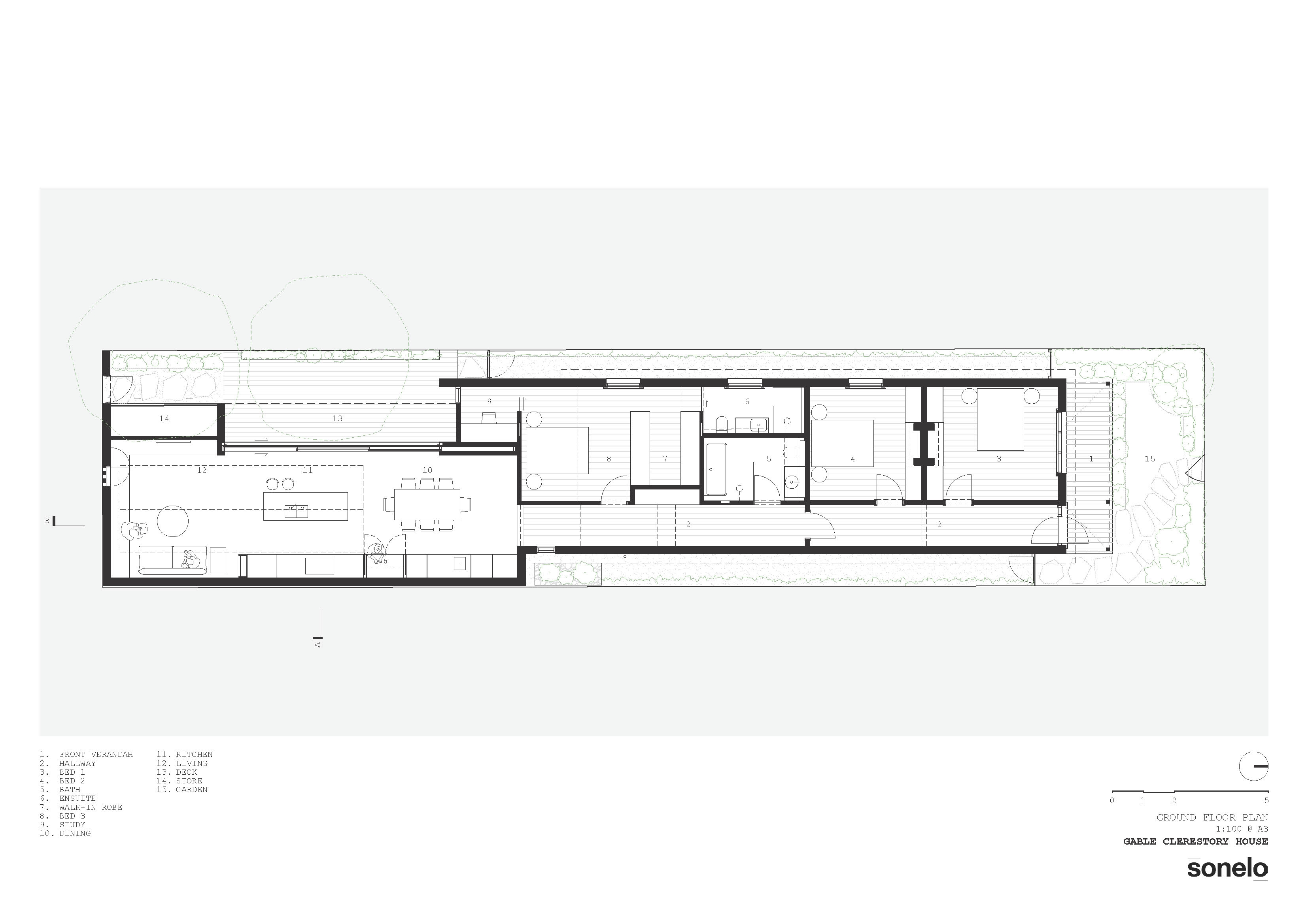
The existing house is a single-storey terrace sited in a heritage precinct. The client’s brief is to create a home for a growing young family with voluminous space and a connection to the outdoors. The heritage requirement and the surrounding amenities restrict the footprint of the house to a single-storey volume. Driven by these restrictions and a restrained budget, the design focuses on an efficient layout, generous internal volumes, and connected but private outdoor space.
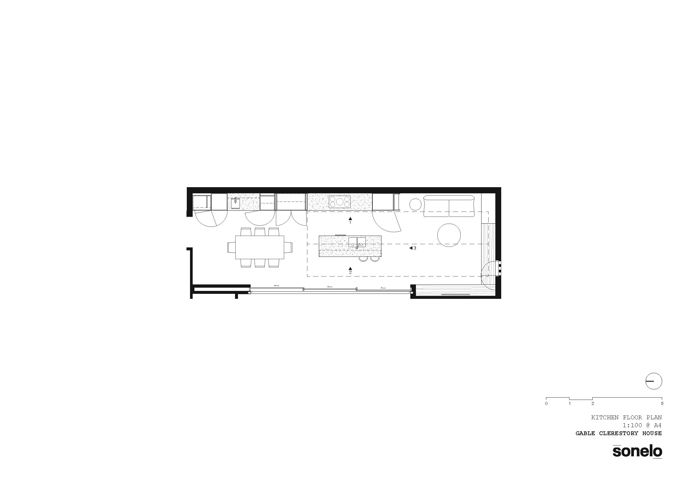
The journey from the old to the new part of the house is composed of varying ceiling volumes. The tall ceiling of the heritage house with periodic details leads to an unexpected skylight and a downward curve in the ceiling. After passing through a compressed threshold, a spacious living space comes into view. Taking inspiration from mid-century architecture, a clearly expressed datum line marks the ceiling and the gable roof elevates the height above the kitchen and living area. A set of clerestory windows cap the ends of the gable roof, framing a ‘Turrel-esque’ sky view. They also admit abundant daylight and heat the space with warm winter sun during colder months. A large cavity sliding doors connect the living area to the outdoor deck. When in the fully open position, the sliding doors disappear into the wall, capable of amalgamating the indoor and outdoor into one space.
Project-specific details are developed whilst resolving functional requirements. Located in the southern hemisphere, the sun remains in the north during winter. The gable clerestory roof is our architectural response to admit this northerly exposure to a south-facing living extension. The hit-and-miss pattern in the rear brick wall, apart from adding finesse to the elevation, serves as a vent required for the evaporative air conditioning system to draw air when in operation. The brick corbel in the outdoor patio allows the brick wall to cantilever and serve as a privacy screen without the introduction of an additional structural beam or post.
The curation of select terrazzos and earthy colors of clay, green, and grey create a focal point in the interiors. Soft greys, and earthy tones of concrete, timber, and external galvanized steel are balanced against the vibrant colors and the heritage red bricks. The use of clay color warms the living area and complements the recycled red bricks on the exterior.
Face with the challenges of a compact site, heritage overlay, and restrained budget, the design approach focuses on meaningful gestures that elevate the quality of the spaces. The functional and considered interior, the grand yet simple addition of the gable roof, and the earthy material palette, combined form a thoughtful response to this family home.

PhotographerPier Carthew

PhotographerPier Carthew

PhotographerPier Carthew

PhotographerPier Carthew

PhotographerPier Carthew

PhotographerPier Carthew





























