Project Header Image
    Home/

    CCS Control and Services Center for the Port Authority of Ferrol

CCS Control and Services Center for the Port Authority of Ferrol

Ferrol, Galicia, 2010

• [Photographer]

By

© Eloy Taboada

• [Photographer]

By

© Eloy Taboada

• [Photographer]

By

© Eloy Taboada
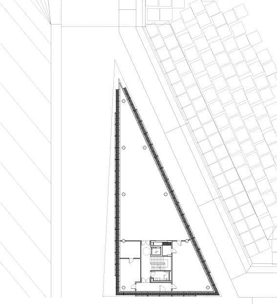
El edificio es como la proa de un buque dispuesto a levar anclas y a zarpar, sobre el martillo del dique principal del puerto exterior de Ferrol, abierto a las vistas de la ría. Los objetivos: singularidad y presencia; funcionalidad y flexibilidad; edificio "inteligente" y "high-tech"; economía y mantenimiento fácil.
Port Authority of Ferrol – San Cibrao
Díaz y Díaz Arquitectos [Lucas Díaz Sierra, Gustavo Díaz García]
Antonio Desmonts Sierra

• [Photographer]

By

© Eloy Taboada

• [Photographer]

By

© Eloy Taboada

Project Gallery

Latest products in our catalog