
Fotograf Jens Bösenberg

Fotograf Jens Bösenberg

Fotograf Jens Bösenberg
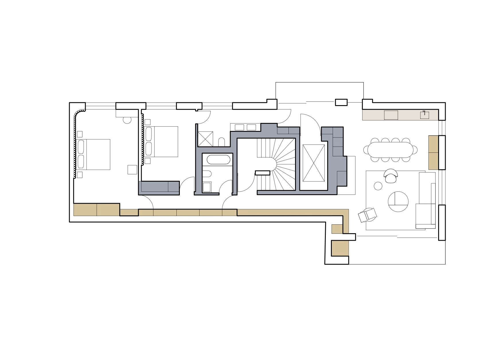
Boxes of carefully detailed millwork play off each other to create subtle use patterns for the penthouse apartment. The residence is designed to expand to accommodate different numbers of users: it is a piedà- terre in Berlin for a traveling couple, a place to host guests when they are there, or the location for a large party on two floors.
A millwork door in the hallway serves a double purpose to help choreograph these use patterns: it usually aligns with the hallway but opens perpendicularly to direct guests away from the private quarters to the roof terrace. A second similar door does the same thing and closes off the private bedroom from a guest room.
The space is therefore adjustable and expandable according to the particular needs of the users. A reduced palette of waxed pale oak, gray terrazzo and deep blues and grays maintains a consistent contemporary character across the apartment even as the space expands and contracts.

Fotograf Jens Bösenberg

Fotograf Jens Bösenberg

Fotograf Jens Bösenberg

Fotograf Jens Bösenberg

Fotograf Jens Bösenberg


















