Finde Produkte anhand eines Bildes
Ziehen Sie Ihr Bild hierher oder durchsuchen
PNG, JPG oder JPEG (Max 10mb)
oder
Produkte
Marken
Magazine
Project
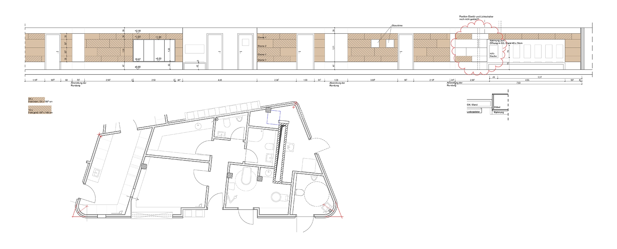
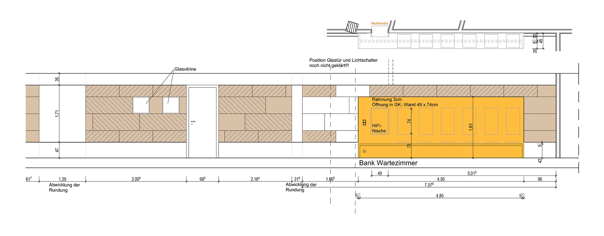
Praxis Dr.Redecker
Hannover/Langenhagen, 2012
Projekt von
Tags
Herstellerreferenzen
Polster
KURTH Manufaktur
Hersteller
Braunschweig, Germany
Jetzt anfragen
Marble | Verde Alpi
2 Varianten
Swisspearl | Plank Original Silk Grey CP 280
8 Varianten
The Orient Express Train
Maxime d'Angeac
2025
Boerum Hill Townhouse
BAAO / Barker Associates Architecture Office