Project Header Image
    Startseite/

    Optic shop Laskaris

Optic shop Laskaris

Athens, 2009

Projekt von

dARCHstudio

• [Fotograf]

Von

Stathis Mamalakis

• [Fotograf]

Von

Stathis Mamalakis

• [Fotograf]

Von

Stathis Mamalakis
Transparency, semi-transparency, opaque and reflection are the main design characteristics incorporated in the design of the Laskaris Optics shop. The inspiration was drawn from the nature of the eye. These characteristics are spaciously represented by the use of curved forms and curvilinear shapes in the design of objects as tables, service counters and display cases.
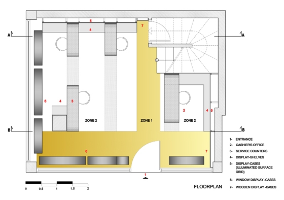
The optic shop positioned in the centre of Kifissia – Athens, takes angular place of a mall and is devided into two levels: the groundfloor that operates as a public sale space and the mezzanine, where the ophthalmological office, the laboratory and a small lounge area are located in.
The most substantial difficulty of the design study was the wish of the client for even more display-cases, storage-places and service counters, all planted into the small ground area of 38m2, where self-service and customer service would both take place.
The above criterions led to the division of the groundfloor area in two main zones, which functionally distinguish self from customer service.
The first zone, designed in a T–shape and cladded in beech wood, marks the circulation of the store.
Along the windows internally, the customers can cast an eye over the spectacles, featured on the glass-shelves of the suspended large white corian cylinders, and try out their favourites.
The second zone takes 60% of the space, providing the customer service and the main display area.
White ribbons of corian unfold from the ceiling, shaping the service counters at the ground level. The unfolding of the ribbons intersects an illuminated plexiglas surface-grid on this zone’s wall which represents the main display case.
The two zones become noticeable by the contrast of their material: wood against plexiglas, corian and mirror. The opacity and the dark grain of wood contradict the transparency and the icy-hued colours of plexiglas, as well as the reflection of the mirror, bringing into our mind the contrast between the sclera and the pupil of the eye’s fields.
The wide use of mirrors, located in specific points of the place, not only enlarge the small interior, resulting an effect of infinite depth, but also reflect the rich vegetation of the context.
Outside, passers can be all eyes to the exhibition of the store’s commodity and also have a clear view to what is happening inside.
Laskaris Optics
Elina Drossou
Nikos Karkatselas

• [Fotograf]

Von

Stathis Mamalakis

• [Fotograf]

Von

Stathis Mamalakis

Projekt Gallerie

Neueste Produkte in unserem Katalog