Project Header Image
    Startseite/

    Mill24

Mill24

Vienna, 2016

• [Fotograf]

Von

Hertha Hurnaus

• [Fotograf]

Von

Hertha Hurnaus

• [Fotograf]

Von

Hertha Hurnaus
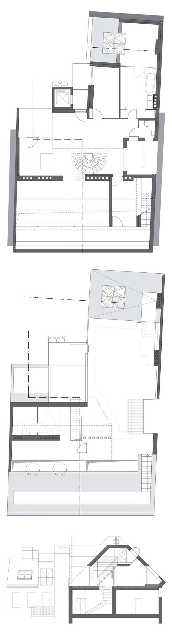
Die innerstädtische Nachverdichtung bei „mill24“, dem neusten Projekt von Caramel architekten, realisiert durch den Dachausbau eines Gründerzeithauses, wird durch seine spezifische Komposition vom Straßenraum so gut wie nicht wahrgenommen. Der Außenraum fließt in den Innenraum und die geschaffene Gartenidylle, über den Dächern von Wien, kann von jedem Raum erlebt und begangen, ja sogar umrundet werden.
Die Freiräume erstrecken sich dabei über verschiedene Niveaus und Himmelsrichtungen und erzeugen somit nicht nur Panoramaausblicke, sondern Innen wie Außen, geschoss- und klimaübergreifende Spannungsräume. Der gesamte Wohn- Ess- Küchen- und Chillbereich ist offen gestaltet. Sogar die Sanitärräume bieten transparente Durchblicke. Zwei Schlafräume und ein Home Office bieten aber auch geschlossene Rückzugsmöglichkeiten.
Die primäre Konstruktion besteht aus Stahl- bzw. Stahlbeton. Außenhüllen wie Dach und Brüstungen bestehen aus einer hochwertigen, hellgrauen Kunststoffmembran, Fußböden aus geschliffenem und transparent versiegeltem Estrich und gefärbte Versiegelungen in Bereichen der Nassräume.
Caramel Architekten

• [Fotograf]

Von

Hertha Hurnaus

• [Fotograf]

Von

Hertha Hurnaus

Projekt Gallerie

Neueste Produkte in unserem Katalog

Produkt SOMA Media des Herstellers Kettnaker anzeigen