Project Header Image
    Startseite/

    Micro Courtyardhouse

Micro Courtyardhouse

2018

• [Fotograf]

Von

Nicolai Rapp

• [Fotograf]

Von

Nicolai Rapp

• [Fotograf]

Von

Nicolai Rapp
Concept
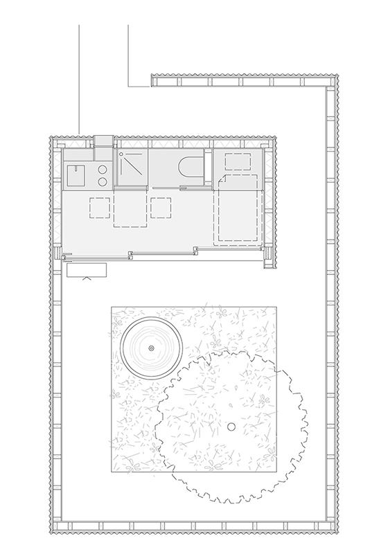
At first glance, the Micro Courtyardhouse seems out of place. Perched between four sets of stoplights, it stands upon a traffic island in Ludwigsburg, a city near Stuttgart. On a given day, thousands of vehicles pass by and pedestrians walk hurriedly across the intersection. The Micro Courtyardhouse is a new approach to dealing with “living in minimal space”. Despite being in the midst of a busy crossroad, it provides high privacy by separating adeptly the living space from the outside world.
The interior is secluded from the outside, with only a spiral entrance leading curiously inside. At merely 7.3 square meters, the Micro Courtyardhouse contains all of the required utilities. The bathroom, cupboards, and kitchen have a depth of 85 cm and are arranged along the main wall, which also features a foldable table and bed. A square window along this wall connects the living area to the outside world. Opposite to this side, a long glass door spanning the entire length of the house loosely separates the living space from the tranquil garden. In summer, the glass door can be slid open, effectively merging the house and the courtyard.
The exterior design is inspired by traditional Chinese courtyardhouses. A single tree stands beside a fountain, creating an asymmetric arrangement. The fountain not only serves aesthetic purposes, but also as an effective acoustic feature against noise. Spruce panels with timber frames lay on top of pillars 20 cm above the ground, generating a light ambiance. The cozy atmosphere of the inner wooden wall contrasts the dark corrugated iron sheets of the external facade.
The juxtaposition between inside and outside, open and closed, noise and quiet, privacy and public, enriches the architecture. It thus becomes clear that the Micro Courtyardhouse is an ideal solution to utilizing minimal space, even the most unusual ones. Despite being situated in a tight and hectic space, one can still escape from the busy world and gaze into the open skies.
Quotes
“The ongoing densification of cities poses the enormous challenge of fitting more people into less space while maintaining high quality of living. Conventional small house designs are open and thus tend to struggle in providing privacy in densely populated areas. Therefore, we created a fundamentally different design that provides an open and green, yet also highly private living space suitable for densely populated areas.” Florian Kaiser “Our design is inspired by Chinese Hutongs and Moroccan Riads. During travels, we got the chance to experience these courtyard houses and were amazed by the astonishing peace inside of them that stands in great contrast to the turbulent life outside the walls.“ Guobin Shen
Atelier Kaiser Shen: Florian Kaiser, Guobin Shen and Hans-Christian Bäcker
Builder: city of Ludwigsburg / Ludwigsburg Museum
Project leadership: Bernd Wenger (Fachbereich Tiefbau und Grünflächen) / Elisabeth Meier (Ludwigsburg Museum)
Structural engineer: Hildenbrand Ingenieure, Ludwigsburg
Companies: Rikker Holzbau GmbH, Affalterbach

• [Fotograf]

Von

Nicolai Rapp

• [Fotograf]

Von

Nicolai Rapp

Projekt Gallerie

Neueste Produkte in unserem Katalog