Project Header Image
    Startseite/

    LOFT34

LOFT34

Cdad. de Buenos Aires, 2005

If Architecture is about construction it produces in a material fashion. Thus, the architecture is no more than organised matter in a specific way. However, how this matter is articulated?
From the office I try to deal with this question in every project we are involved, and Loft34 is no exception.
Loft 34 is located in a late XIX century industrial building. Originally housed the first electrical sub-plant in Buenos Aires City and after several changes of owners and therefore of its appearance, nowadays the building is occupied almost entirely with theatre workshops, artists, designers and architects.
The wing in where the loft is located would be dedicated for residential use. However the project should be flexible enough to aloud the traditional uses that are usually developed in the building.
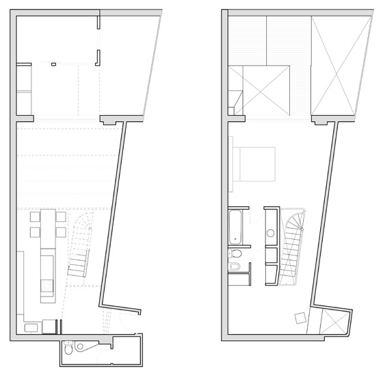
The boundaries were given; there was a small bathroom and a patio with a construction on the back. Since it is a renewal, the intervention is not large; a mezzanine was built in order to duplicate the area. In the ground floor the existing floor the existing bathroom is used as toilette and in one big space the areas for cooking, eating and relaxing were organised with a protagonist role for the stair, which is used to order the relationships between the different areas. In the upper floor the bathroom, the space for working and sleeping are located; from this place through a bridge it is possible to access the roof of the existing construction on the patio, having from there a panoramic view to the roofs of the old electrical plant.
Although the program was simple [a living space for a young professional], the possibilities the task had were not so. Simplicity was taken as an opportunity to experiment and work on the specifics of the material. Making from the detail an obsession.
Thus, the stair has a protagonic role. Not only for its central position that orders the circulation between the different areas, but also for the work on every single piece that make the stair: a swept circular section that connects both levels is subtly curved in its lower ending to haul in the slab, while getting close to the upper ending it curves again changing its direction allowing that a straight stair turns into a spiral stair without loosing its continuity; the flights are welded and appear as floating in the open lower plan, and the handrail, a single continuous sweep surprises when defying gravity.
The subtlety of the other fix piece, the kitchen and table, is not an exception to the meticulous study of the needs and functionality while the intention is to explore the limits of the material and handcraft.
Najmias office for architecture [Oliverio Najmias]

Projekt Gallerie

Neueste Produkte in unserem Katalog