Project Header Image
    Startseite/

    Hof

Hof

Skagafjörður fjord, 2007

Projekt von

Studio Granda

• [Fotograf]

Von

Sigurgeir Sigurjónsson

• [Fotograf]

Von

Sigurgeir Sigurjónsson

• [Fotograf]

Von

Sigurgeir Sigurjónsson
Hof residence
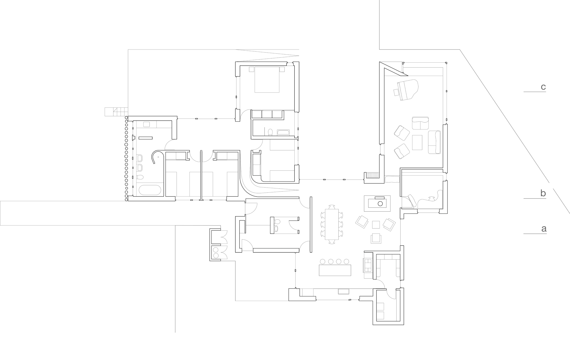
Hof is a country residence in the Skagafjörður fjord, less than 100km from the Arctic Circle. The spectacle of the location, its remoteness and special program fuelled a unique rapport between the client, contractor and architect resulting in a building that is in every respect a direct consequence of that collaboration.
The buildings on the estate include a house, church, barn and cowshed, clustered on a riverbank, and further inland stables and an equestrian training hall. The fjörd is a serene landscape punctuated only by the sheer cliffs of the islands Drangey and Málmey and the headland Þórðarhöfði. Set slightly apart from the existing buildings, the new residence is located on raised ground with each space orientated to capture this magnificent panorama.
Externally the house rises from the tufted site as a series of sheer cedar and concrete walls that will weather according to the vagaries of the elements. The displaced grass of the field is reinstated on the roof and the surrounding meadow is cut and folded in earthworks of turf and stone that open ways to the entrance and terraces. Hexagonal basalt pillars were excavated from the site during the preparations for the foundations and the external surfaces are paved in this material. Internally the same stone is used throughout the living and circulation areas. Telegraph poles salvaged from the site were used as a sun/privacy screen to south-facing windows.
Most internal walls are of raw or painted concrete and the ceilings, doors and other carpentry are predominately of oiled sawn oak with steel details; a rustic palette offset by smooth painted planes. In a gesture of refinement and escape the kitchen and bathrooms enjoy marble surfaces suggestive of more habitable latitudes whereas the larder’s glazed white tiles and basalt shelves reminds of the need to stash food for harsh winters.
The house is highly insulated and thermally stable due to the massive concrete walls, stone floors and balanced fenestration. Geothermal water is used for the floor heating and radiators as well as for all domestic use. Electricity use is minimised by design and the little that is required is sourced from hydroelectric and geothermal sources.
Although dramatic views fill the interior the ambience is augmented by a secondary system of clearstory lights and other roof penetrations that orchestrate daylight throughout the house. The exception is the dogleg route between the living and bedroom wings where lighting is reduced to a few pinpricks.
Awards :
Shortlisted for the Barbara Cappochin International Biennial Architecture Prize 4th. Edition 2009
Shortlisted for the European Union Prize for Contemporary Architecture - Mies van der Rohe Award 2009
Nominated for the Myndstef honorary award 2008
Dedalo Minosse International Prize for Commisioning a Building 2007/2008 Seventh Edition, L'Arca Special Prize 2008
Nominated for the Icelandic Architecture Award 2007
Icelandic Visual Arts Awards, Design Award Sjónlist 2007
Private
Steve Christer, Ulrike Diana Malsch
Structural & environmental engineers : Víðsjá
Electrical services : VJÍ
Contractor : Trésmiðjan Borg

• [Fotograf]

Von

Sigurgeir Sigurjónsson

• [Fotograf]

Von

Sigurgeir Sigurjónsson

Projekt Gallerie

Neueste Produkte in unserem Katalog