Helsinki, 2022
Projekt von
JKMM ArchitectsTags
Architektur
The Dance House project is a long-awaited milestone in the history of Finnish performing arts. The impressive new building and renovated premises in the old parts of the Cable Factory cultural center are designed by JKMM Architects in collaboration with fellow Finnish practice, ILO architects. The project, combining new and old, comprises over 7,000 square meters dedicated to dance – a world-class setting for the performance and experience of dance, circus, and culture. Finland's first landmark designed for dance opened at the Cable Factory Cultural Centre in Helsinki's downtown area in spring 2022.
Dance begins. In recent years, dance has become an important part of life in Finland as a popular form of recreation that contributes to people's well-being. In this sense, a house dedicated to dance is part of the infrastructure for “happiness”, a common good.
The building is a significant remodeling and extension of Helsinki’s former cable factory. Dating from the early 1940s, this is where, for example, marine cables were manufactured. In the early 1990s, the building was acquired by the City of Helsinki and, today, the Cable Factory is Finland’s largest cultural center containing museums, galleries, studios, art schools, and many other spaces and functions for hundreds of creative tenants and professionals.
The Dance House adds a striking contemporary layer to the history of the former factory and its surroundings. The new and the old are placed in contrast, but also in dialogue with each other. The Cable Factory's cultural and artistic tenants and visitors were actively engaged in the design process from the beginning. Their feedback has led to a major overhaul of the 30- year-old cultural center during the construction project.
Dance as an inspiration. The architecture of the Dance House was inspired by dance. The aim was to examine the underlying principles of dance rather than its forms and aesthetics.
Dance deals with gravity, lightness, and the weight of the human body. The main façades consist of two gigantic steel walls, lifted from the ground and hovering in the air, seemingly defying gravity. The two walls are in dialogue: one wall is made of rough rusted steel and another of shiny stainless steel. The “floating” metal facades were custom designed by using laser welding technology, to create bespoke sandwich panels with the biggest possible surfaces of metal.
Dance performances also create illusions. The steel wall of the entrance square forms a gigantic surface for reflections and light in the darkening evening. The light satin-like steel surface can be transformed with light, it can become a part of the scenery of the dance events.
Facing the park, the North facades are covered by hundreds of circular aluminum discs. The discs create abstract rhythmic surfaces against the sky. Rhythm is also one of the key principles of dance.
Machine for dance. The Dance House is like a huge modern "dance machine", designed to connect to an old factory. The spaces are industrial in scale and the details can be identified as parts of a machine. The Dance House provides state-of-the-art technology for experiencing and performing dance.
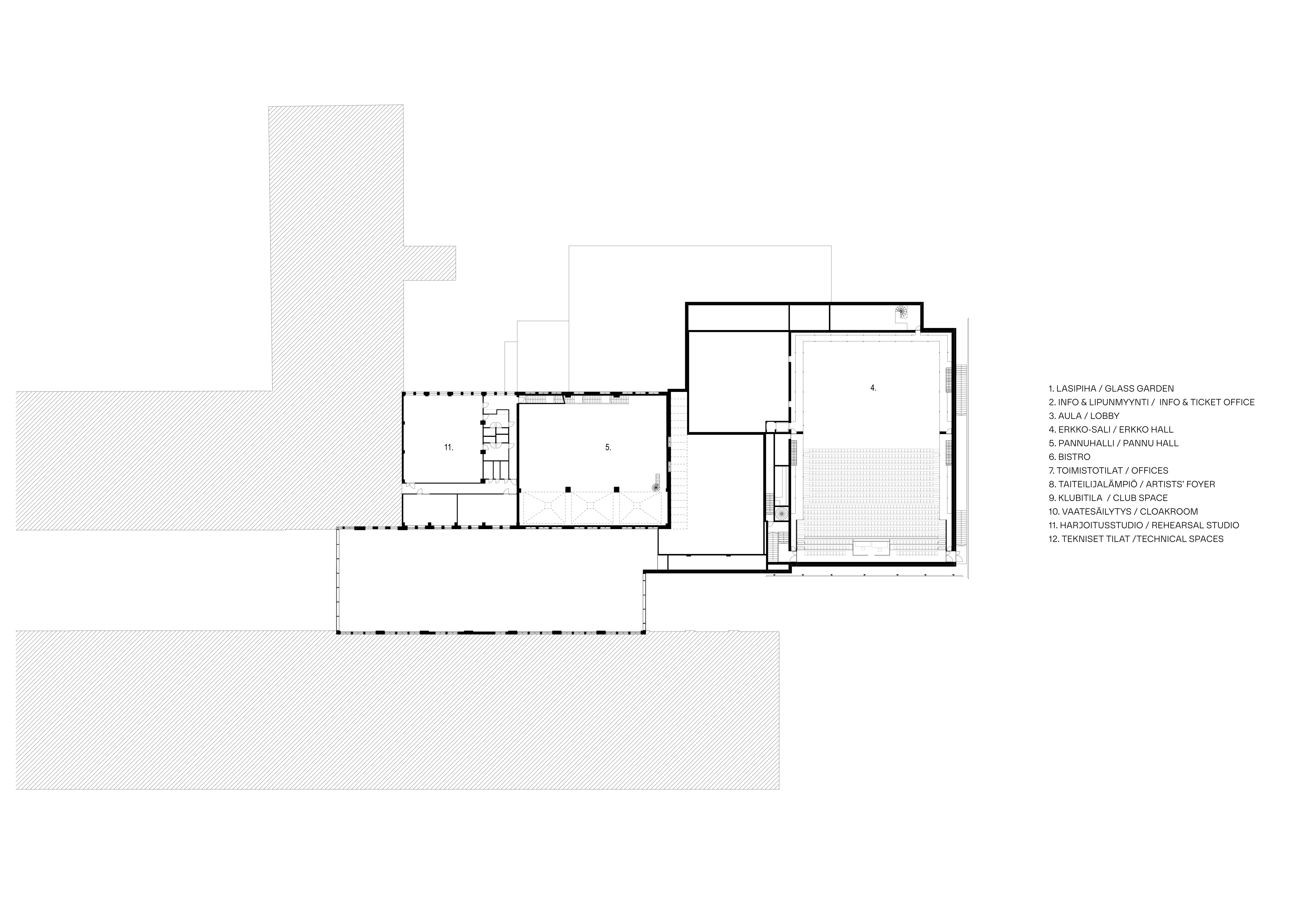
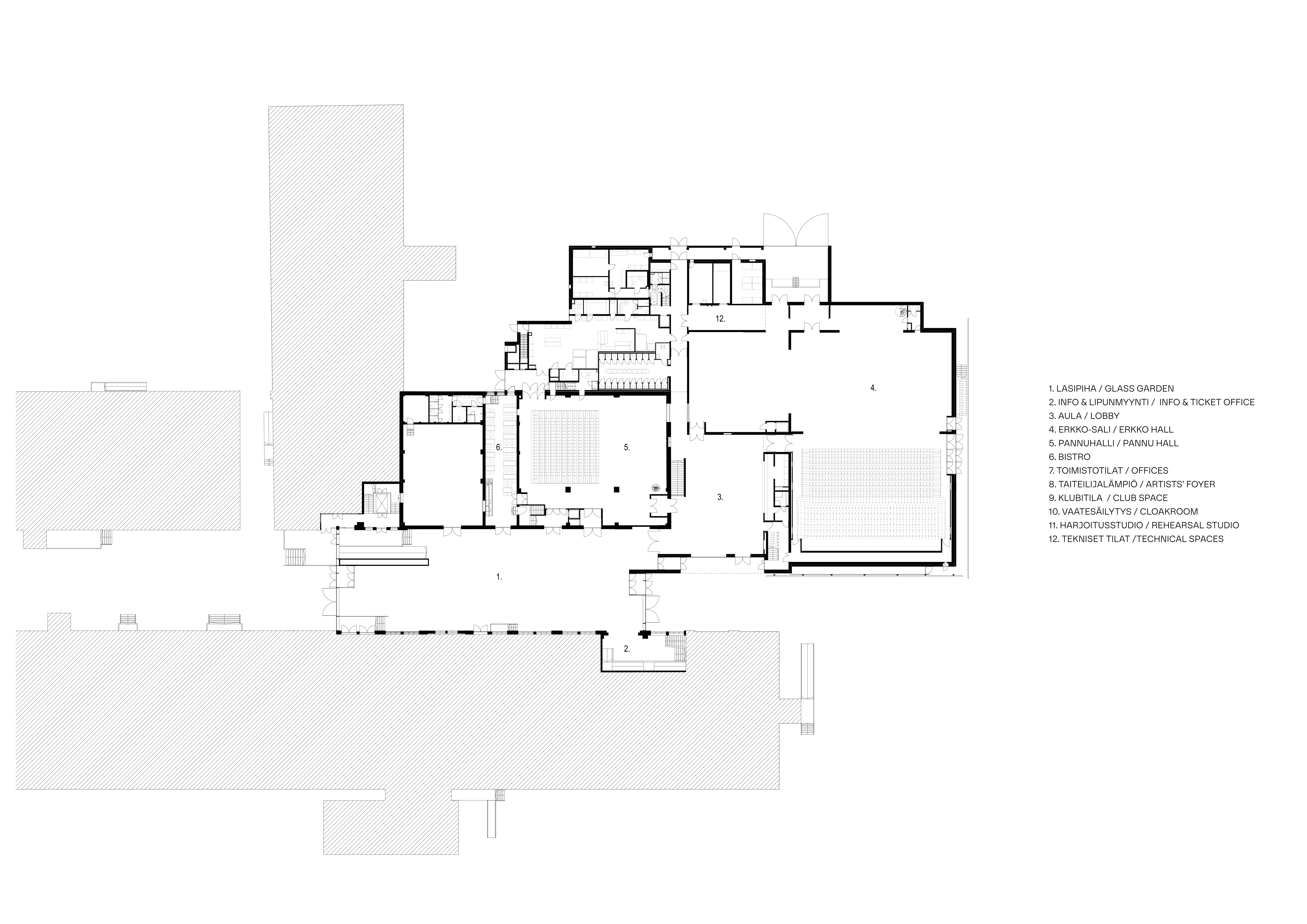
The 7,000 sqm project contains two black-box dance theatre spaces. ‘Erkko Hall’ is the largest dance performance space in the Nordic countries: 26 meters wide, 37 meters deep, and 24 meters high, including a mobile 700-seat telescope seating system. The flexible space can accommodate up to 1,000 people. The Erkko Hall's auditorium, stage, and side stage can also be separated to form three event spaces. The Cable Factory's old ‘Pannu Hall’ was redesigned into a smaller black-box theatre space for 235-400 people. The modular and movable seating system has a total of 1,100 seats. The performance spaces of the Dance House are equally suitable for dance, circus, and other demanding performing arts.
The Dance House project houses a new heart for Cable Factory, a glazed roof to cover the outside courtyard space between the factory wings transforming it into a multifunctional entrance and event space. Inside, in addition to the Dance House theatres, the visitor will find the lobby; a restaurant; a cellar serving as an underground club, and a cloakroom. Back-of-house facilities include the performers' greenroom; a training studio; changing rooms; offices. Dance can spread everywhere: out of the halls to the lobby, glass courtyard, and further out to Cable Square, all kitted out with performance facilities.


























































