Project Header Image
    Startseite/

    CaballeroFabriek

CaballeroFabriek

Den Haag, 2008

Projekt von

GROUP A
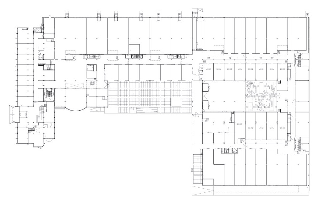
The CaballeroFabriek is a former tobacco factory on the Binckhorst industrial estate which has been transformed into a lively environment, with studios and offices for companies in the fields of culture, IT and media.
The leading theme behind the design of the CaballeroFabriek is cross-fertilization. The interior seeks to stimulate creative and innovative interaction amongst the tenants, and between tenants and visitors.The original factory building from 1953 was left untouched, later additions were demolished. The industrial character remains intact while new functions stand out by their different design.
The newly created broad corridor which doubles as a meeting area functions as the backbone of the building. Lounge areas, suspended conference 'boxes', the lunch cafe and a large auditorium -linked to a central courtyard-, are all located on this corridor. These areas are not only meant to be used by tenants, but also by visitors from outside the factory. Visitors can drink coffee at the espresso bar and rent meeting rooms.
The building, surrounded on three sides by water, encircles an inner yard. This yard has been enlarged by demolishing the loading zone, thus providing a large outdoor terrace. Both entrances of the CaballeroFabriek are situated next to this terrace. The entire factory grounds have been rearranged, with the use of existing materials.
Because of its lively character, the CaballeroFabriek is able to attract a wide audience, thus giving a strong new impulse to the Binckhorst, an area designated for further development by the City of The Hague. In 2006 the CaballeroFabriek has won both the Jury Award ass well as the Audience Award of the Nieuwe Stad Prijs of The Hague. For the first time in the history of this prize two awards went to the same project.

Projekt Gallerie

Neueste Produkte in unserem Katalog

Produkt Journey des Herstellers Longhi S.p.a. anzeigen