Project Header Image
    Startseite/

    365 Studio

365 Studio

Kiev, 2019

Projekt von

Bogdanova Bureau
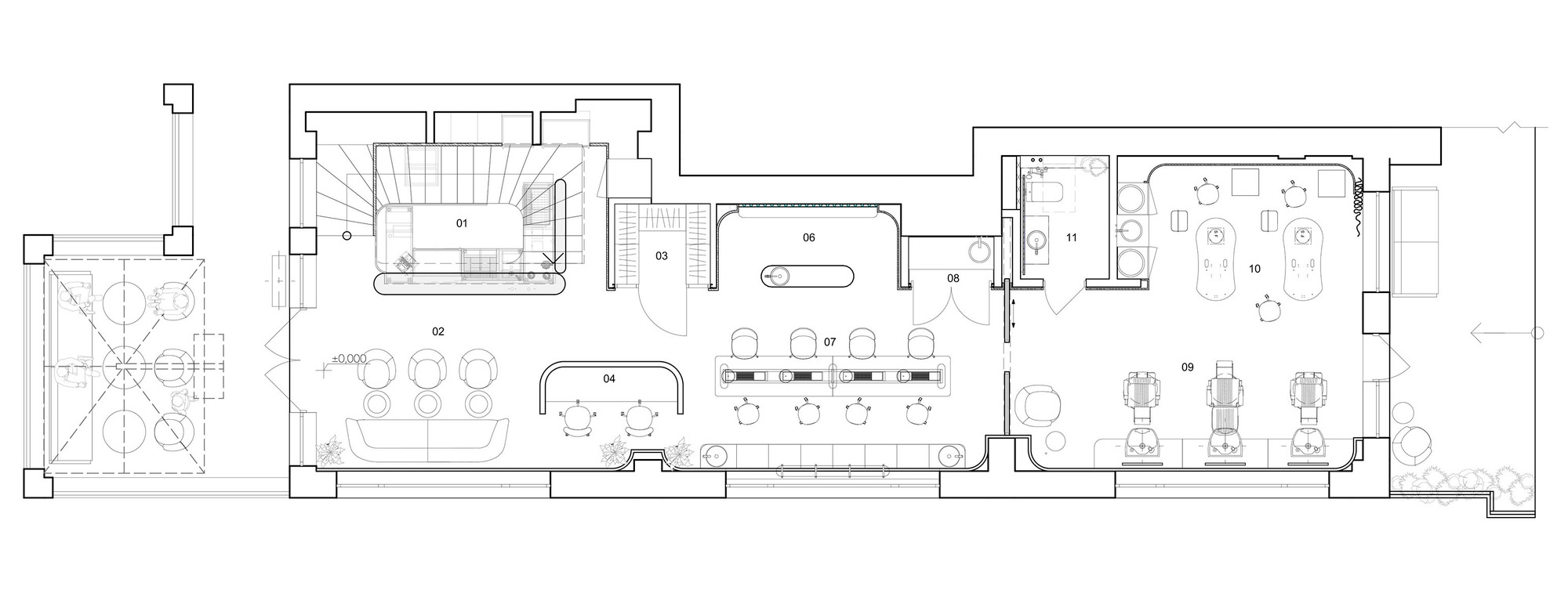
365 Studio occupies some part of the ground floor and the first floor in a new building in central Kyiv. The key element of the project is the stairs with green steel banister. Above it, we hang up elegant pendant lamps by Ukrainian brand Noom. We had to cut out a part of the floor above and reinforce the building construction before it. 10 mm thick steel sheets for banister were cut and bent in advance to be welded on site. We built up a lifting tackle in the building which held every metal sheet and let weld them unsupported.
Rounded shapes of the banister add some dynamics and continuity to space. These elements are aligned with some of the walls and work surfaces radiuses, shapes of mirrors on walls and three bar islands. Color Bar is a place where hair dyes are mixed. Also, you can drink some champagne next to it. In the 365 Studio customers decide where to spend the time during hair dying by themselves, there is no need to stay in a hairdressing chair all the time. The real bar with drinks is located on the ground floor under the stairs. We brought a cozy rattan couch and chairs from Bali especially for this zone next to the bar.
The Man zone is located on the ground floor and has a separate entrance. The glass wall divides this space from another studio. Besides three barber chairs, there is a zone for combined manicure and pedicure where you can watch a movie on 52 inches screen or play on a Playstation with your neighbor during the procedures.
The crucial aspect of 365 Studio’s interior is its ergonomics and thoughtful logistics inside the space. The comfort of customers and masters is equally important. We calculated everything, even a correct swing of the pedicure chair by testing it on the real-size model so that a client can take off and take on their shoes in the most comfortable way.
One of the features of 365 Studio is the possibility of parallel processes. Up to five masters can work with the client at the same time. Manicure, pedicure, hair dying, eyebrows and makeup can be done in one or two hours. Such an approach saves the customer’s time. It requires the perfect logic of the space where several masters do their work in one square meter.
Good beauty studio reminds me of a pit stop in Formula-1 where a group of professionals change wheels and charge a car within a couple of seconds. When masters are doing their business the customer feels calmness and trust. He or she comes here to rest, look after themselves, chit-chat and have a glass of champagne, – an architect Olga Bogdanova tells.

Design team:

Bogdanova Bureau
Lead Architects: Olga Bogdanova, Oleg Matiushchenko, Alena Prokhorova

Projekt Gallerie

Neueste Produkte in unserem Katalog

Produkt Binar 60 des Herstellers Inclass anzeigen
Produkt Skyfall des Herstellers Quasar anzeigen