Project Header Image
    Tuis/

    Villa Hermína

Villa Hermína

Černín, region Beroun, 2009

Projek deur

HŠH architekti

Etikette

Architecture

• [Fotograaf]

Deur

Ester Havlová

• [Fotograaf]

Deur

Ester Havlová
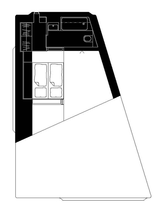
The building is situated on a sloping terrain on the outskirts of Černín, taking the same slope into its internals for floors. The interior layout is based on alternating straight and sloping floor surfaces that create the overall spiralling character of the interior and define the building’s external appearance. However, the use of the sloping floor on the ground floor is not purposeless – it is there on investor´s reguest to accomodate movie projections as a small movie theatre. Windows and other openings are placed with respect of the external façade – each of the walls only has one opening. For thermal and water insulation a polyurethane spray with pink coat is used, meant as a credit to our favourite building of Versuchsanstalt fur Wasserbau und Schiffbau by Ludwig Leo.
HŠH architekti / Petr Hájek, Tomáš Hradečný, Jan Šépka

• [Fotograaf]

Deur

Ester Havlová

• [Fotograaf]

Deur

Ester Havlová

• [Fotograaf]

Deur

Ester Havlová

• [Fotograaf]

Deur

Ester Havlová

Projekgalery

Nuutste produkte in ons katalogus