Project Header Image
    Tuis/

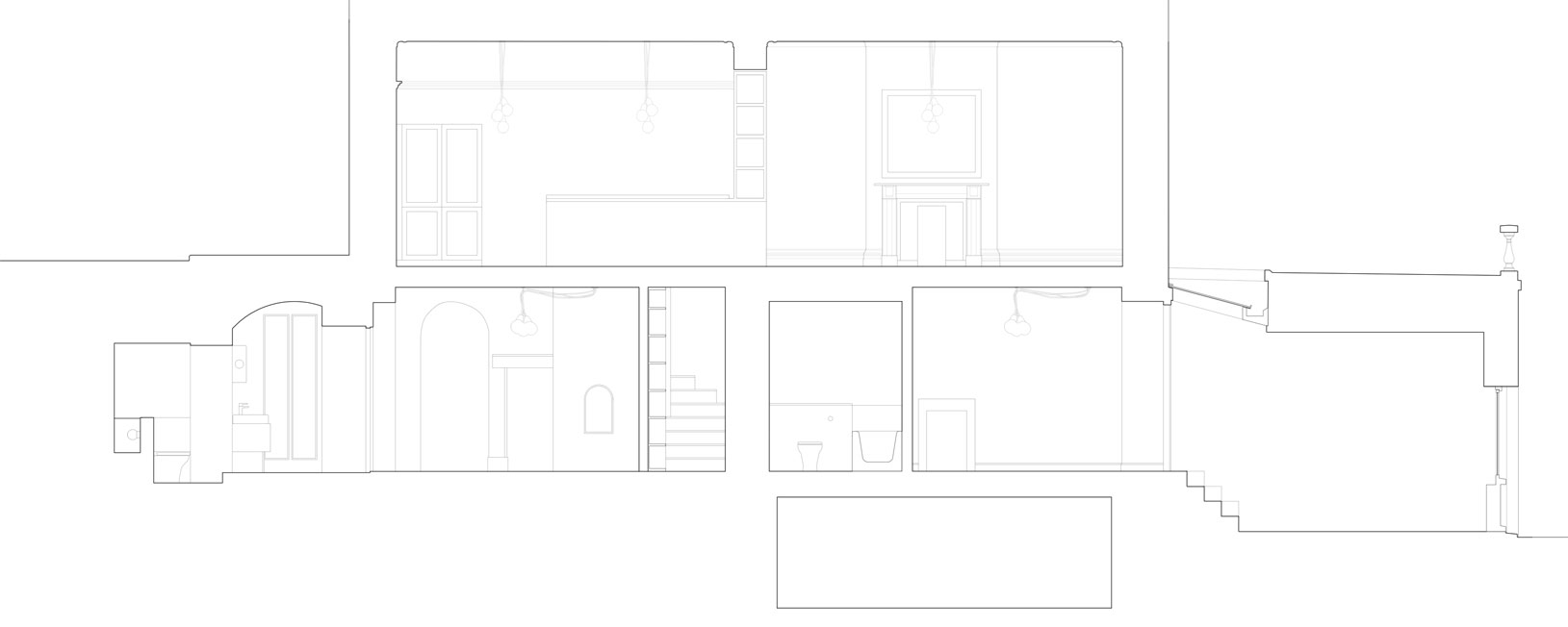
    The Paragon

The Paragon

Bristol, 2021

162 square metres of pure painted pleasure, with some authentic Georgian rubble and driftwood thrown in for good measure.
What once resembled a dripping, grimy, rabbit-warreny vaulted prison worthy of Jack Sparrow on a very bad run of luck is now a fabulous 3 Bed Maisonette. It's in a Grade 2 Star Listed Georgian terrace property (oh, the fun, the joyous fun to be had with conservation officers) in Bristol. We 'restored' the existing fabric, converting what were previously stores and garages in the rear to interior space (making them look as greek-island-glorious as we could). Newly introduced elements stand proud (literally, they are P R O U D ) of the older building, painted in bright, contrasting colours.
NOT using Farrow and Ball. We are confidently Dulux. A redundant staircase was converted into a library (there's a kiddy ledge that is situated near the top, not shown in the photos). Light is brought into what was previously a dark (dank, bleak) area through the use of clerestories, a large skylight spanning the width of the property (there is a grill above it for the communal terrace, which casts uncanny, Hitchcock bars of shadow through the rooms?), and a glazed wall unit (with integrated blind for privacy at night) to one side of the main corridor.

Design Team:

Atelier Adam Nathaniel Furman

Projekgalery

Nuutste produkte in ons katalogus

Vertoon produk Plissé D50 H40 van vervaardiger Midj