Project Header Image
    Tuis/

    Stack House

Stack House

Los Angeles, 2018

Projek deur

FreelandBuck

Etikette

Architecture

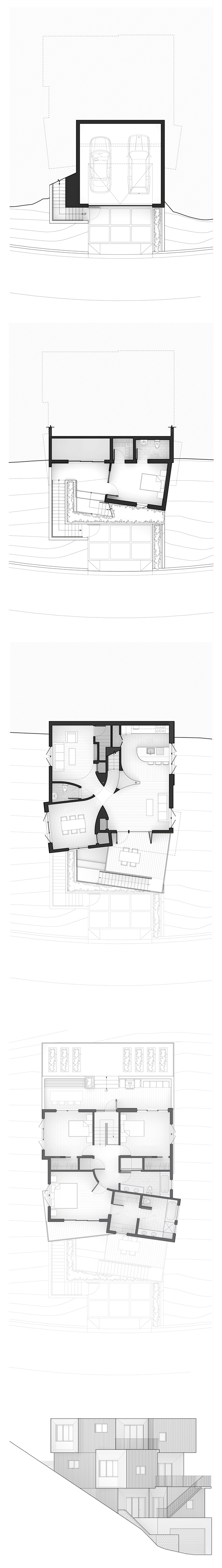
Stack House is a newly built 2,207-square-foot residence designed and developed by award-winning LA and NY-based architecture office FreelandBuck. Comprised of four stories notched into a sloping hillside, this vertical house uses the subtle rotation of each room to create seamless indoor-outdoor spaces at every floor, each with unique and unobstructed views to the San Gabriel mountains.
Working with difficult site constraints is central to the design of this house; unlike conventional hillside homes that appear to have been placed atop the slope, this house is embedded into it, creating a much closer relationship to the landscape. The primary living spaces at the third level (dining, kitchen, living, den) are organized into a simple grid of four rooms.
The walls of each room curve at the center in a series of tangent arcs that blend the individual spaces while carefully opening views through the house. A central stair connects the living spaces to a rear dining patio and yard that overlook the house and mountains beyond. The upper fourth level features three bedrooms, with the master and en suite bathroom organized across the front of the house. A private two-car garage or workspace makes up the ground floor.
An accessory dwelling unit (ADU) is incorporated into the stack at the second level between the garage and the upper levels. ADU’s are typically built adjacent to existing houses; in this case the ADU is uniquely integrated into the massing of the house. The exterior cladding of the house is custom-made, a play on board-and-batten siding organized into patterns that suggest varied depth and texture.
Painted in subtle gradiations from white to gray, the striped shadows of the board-and-battens shift throughout the day. Interior features include French oak flooring in a natural finish and marble countertops. The folding effect of the large accordion doors extend the interior spaces to the outside, allowing for the iconic views unique to Los Angeles hillside living.
Design Highlights:
• 2,207-square-foot house situated four-levels; features 4 beds and 4 baths
• A hillside accessory dwelling unit with a separate entry uniquely embedded into the second level of the house
• Exterior facade made of custom-cut board-and-batten siding, painted in varying shades of white and gray
• Interior details include: French oak flooring in a natural finish, marble countertops, and custom cabinetry, Waterworks plumbing fixtures, and Bosch and Viking appliances
• Balconies and indoor-outdoor spaces seamlessly incorporated into every floor, with unique and unobstructed views of the San Gabriel mountains
• Sustainable and smart home features, including a sprinkler system, Nest control, and tankless water heaters thoughtfully integrated into the design for responsible and efficient use
FreelandBuck
Lead Designers: David Freeland and Brennan Buck
Project Team: Belinda Lee and Gary Dominguez

Projekgalery

Nuutste produkte in ons katalogus