Project Header Image
    Tuis/

    NEU 31

NEU 31

Wien

Etikette

Architecture

• [Fotograaf]

Deur

© Hertha Hurnaus

• [Fotograaf]

Deur

© Hertha Hurnaus

• [Fotograaf]

Deur

© Hertha Hurnaus
The concept of the overlapping spatial structure, open to the outside as well as inside, with symbiotically conjoined resitential and office accomodation units is not merely a lip service here, it runs throughout all parts of the building - the spatial solution appeared that beneficial to the architects to occupy it by themselves.
The site Neuwaldegger Straße 31 combines the „city“ with the “country” within a narrow strip of land. The building, erected on the plot 15-17 meters wide and 82 meters deep, is an attached design,
with its north facade facing a high traffic street and its south side favoring the unspoilt view to the adjoining Vienna Woods.
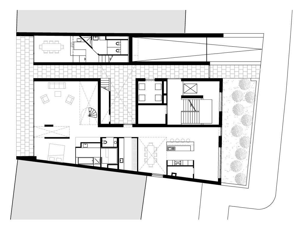
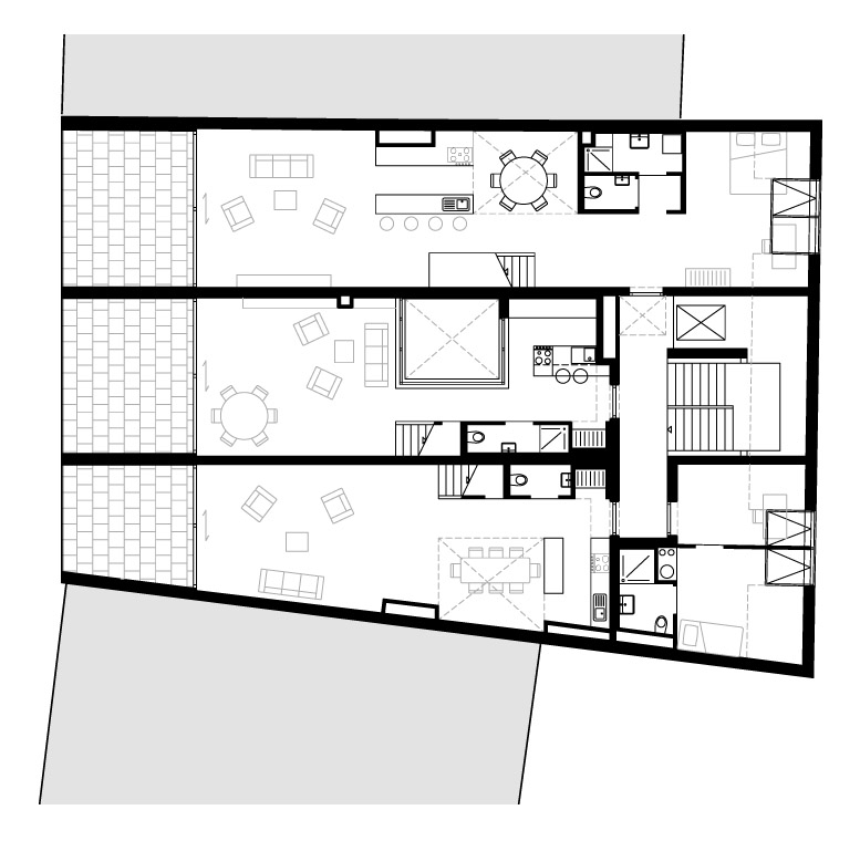
The concept was to create a four-level diaphanous structure, which integrates all functions of living and working and yet offers enough privacy. All rooms and apartments are interlaced into each other and open not only to the outside but to the inside as well. This radically breaks with the classical scheme of a cube, which is bordered by four walls.
The center of the house is an open-top 30m2 dimensioned courtyard, the glass panes of which connect the rooms of all levels optically and supply them with daylight at the same time. Both outer apartments on the above floors are configured over two storeys, that are glazed at the top and thus deliver light to the underneath. All of the apartments have spacious double-storey south terraces, that open up the structure of the house to the garden. Due to the open window areas of the ground floor the street space is as well provided with a vivid and exceptional scenery.
The surface of the house facing Neuwaldegger Strasse is rigide. It´s “fish-scale” facade is coated in white aluminium folding shingles that cover the whole of it - from the roof ridge to the ground. Thanks to the front garden there is no need for a gutter, the building cleans itself by means of the channelless eaves every time it rains.
The building was wholly developed and financed by the architect office SUPERBLOCK, beginning with the land purchase. After the completion the accommodation units were sold to like-minded people, the garden is used collectively. At the moment the house NEU 31 accommodates 22 working and residing persons, 1 dog and 2 cats.
NEU 31 Raum GmbH
SUPERBLOCK ZT GmbH

• [Fotograaf]

Deur

© Hertha Hurnaus

• [Fotograaf]

Deur

© Hertha Hurnaus

• [Fotograaf]

Deur

© Hertha Hurnaus

Projekgalery

Nuutste produkte in ons katalogus