Project Header Image
    Tuis/

    House EFFE-E

House EFFE-E

Bomporto, 2016

Projek deur

Archiplan Studio

Etikette

Architecture

• [Fotograaf]

Deur

Davide Galli Atelier

• [Fotograaf]

Deur

Davide Galli Atelier

• [Fotograaf]

Deur

Davide Galli Atelier
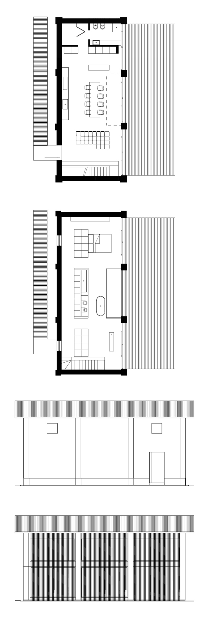
The project involves the recovery of an old country barn partially damaged by the earthquake. The volume of the building and its size remained invariate. The project redefines the interior spaces and the distribution system, while externally develops a dual opening system. The main facade is almost no openings except the front door and two small windows on the first floor, while the rear façade that overlooks the countryside opens fully to the outside and the plain landscape is the background to the internal space The environment is characterized by the presence of disused farm buildings have been abandoned and the cultivated fields of the Modena plain. The building claims its membership to sites with a main front from the harsh nature, grumpy and unhelpful, which is opposed to a domestic and faithful interior space and a large façade that opens the endless countryside.
Archiplan Studio

• [Fotograaf]

Deur

Davide Galli Atelier

• [Fotograaf]

Deur

Davide Galli Atelier

Projekgalery

Nuutste produkte in ons katalogus