Project Header Image
    Tuis/

    Flux

Flux

Kyoto, 2017

Projek deur

SIDES CORE

• [Fotograaf]

Deur

Takumi Ota

• [Fotograaf]

Deur

Takumi Ota

• [Fotograaf]

Deur

Takumi Ota
A hanging mirror blends into the space while pulling the line of sight through it.
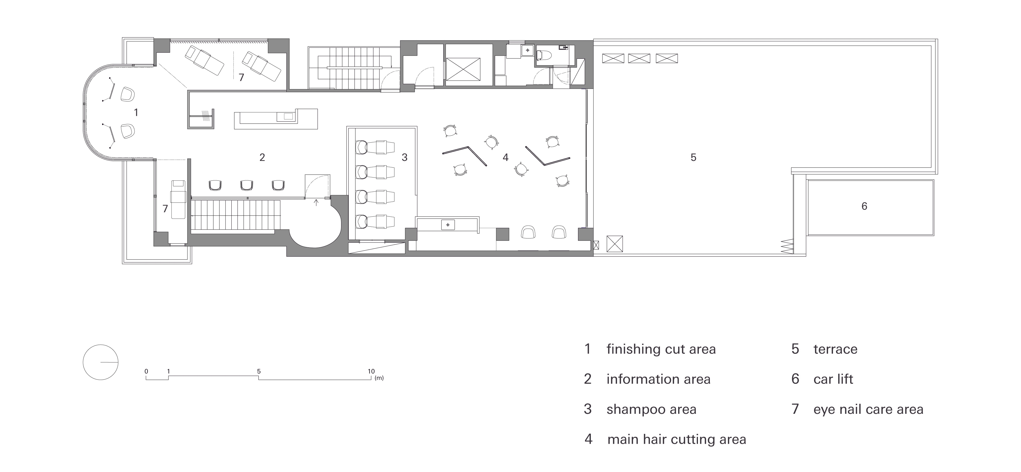
FLUX hair salon was planning to move to a space near Kyoto Station. The new space is the 2nd floor of a former car showroom. Specialized features included floor-to-ceiling curved windows that open onto the main road on the south side. The north side looks out onto a terrace with a car lift.
Mirrors used for cutting hair are one item that define hair salons. Many feature cutting mirrors that emulate vanities A few of them lined up clearly define a business as a hair salon.
With Flux, we wanted to create an airy space, fitting of the name, that breezes can easily flow through. Flux’s main cutting mirror is suspended from the ceiling and features mirrors on all sides, effectively avoiding a vanity-like feel. We designed a mirror that emphasizes the reflected image brings the space together, rather than just being an object in the space.
We decided to make use of the depth of the space, one characteristic of Kyoto architecture. The space is designed to show a different perspective and different settings as you progress deeper into it. In contrast to the stark information area, the main hair cutting area on the south side is relaxing, facing the terrace. The box-shaped shampoo area in the center gently divides the entire space. An open book-shaped mirror provides two client seats on the outside, and one on the inside with a double-paned mirror. It hangs from the ceiling, and mirrored surfaces on all sides easily blend into the space.
We limited the height of both the mirror and partitions to 1500 mm so the sight line would flow throughout. Stylists have an undisturbed view of the entire space.
A second tier fully surrounds the information counter. It could display flowers or products for sale. We imagine it as an easy-to-define and flexible feature.
The south side of the salon is a bright and open curved space that faces the street. There are just two client chairs to give the space a relaxed feel — spend some time here. Curtains regulate both light and how much people outside can see in.
The owner chose the name “FLUX” — they wanted the salon to be like a stage for skilled staff to give their performances, a space that flows and never stands still. The cutting area on the north side represents this concept, and is also a counseling and final styling space with an elevated feel.
Design office: Sides Core
Designer: Sohei Arao
Construction: THE

• [Fotograaf]

Deur

Takumi Ota

• [Fotograaf]

Deur

Takumi Ota

Projekgalery

Nuutste produkte in ons katalogus