Project Header Image
    Home/

    Penthouse Wien 1

Penthouse Wien 1

Wien

WOHNEN IM ERSTEN – GRÜNDERZEITLICHES GESCHÄFTSHAUS ERFREUT SICH NEUEN INNENLEBENS
Wohnen im Wiener Innenstadtbezirk kann - in den oberen Geschoßen – besondere Qualitäten spielen:
Einen großen Vorteil von Gesamtgeschoßwohnungen bildet die durchgängige Belichtung – hier Nordsüd - wobei der Süden zusätzlich bevorteilt ist, indem ein großer, grüner, ruhiger Innenstadthof anschließt.
Sämtliche Geschoße sind innerhalb der Wohnung lifterschlossen, obwohl auch die in Sandstein ausgeführten Treppen - in ihrer elegant zurückhaltenden Ausführung der Ausstellung von Bildern gewidmet - zum erlebnisreichen Begehen einladen.
Dass sich in jedem Geschoss mindestens ein Bad befindet (im Schlaf- und Gästegeschoss natürlich zwei) zählt zum geplanten Komfort einer Großwohnung.
Das 3-geschossige Wohnen beginnt im 5.Obergeschoss: hier befinden sich auf gut 150 m2 Empfang und Gästegarderobe, Essplatz und Küche, Kamin- und Wohnbereich.
Die Speisetafel an der vorgelagerten Südterrasse, unter dem 2-geschossigen Luftraum, der sie von oben mit weiteren Lichtgaben speist, an der einen Seite vom offenen Kamin an der anderen vom großen Küchenbereich begrenzt, bildet das Herzstück des Geschosses.
Von hier aus lässt sich auch der weitere Wohnbereich in Teildurchsichten erfahren: die Kaminlounge direkt ostwärts anschließend, das begehbar bescreente Fensterband am anderen Ende der offenen Küche und die weite Wohnlandschaft mit breiter Bücherwand und Medienmöbel im diagonalen Sichtfeld.
Das dem Wohnen nach oben angeschlossene Schlaf- und Aufenthaltsgeschoss verwöhnt mit Schlafzimmerblick auf Dach und Turm des Stephansdoms und großzügigen Bad- und Ankleidesituationen. Die leichte Schräge auf der Nordseite vermag die Privatsphäre noch zu unterstreichen. Neben einem privaten Bürobereich an der Luftraumöffnung im Süden, findet gegenüberliegend im auch ein kleines Gästezimmer mit anschließendem Gästebad seinen adäquaten Platz.
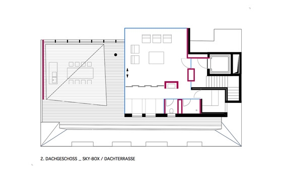
Und wer den Blick über Innenstadt bis hin zum Kahlenberg genießen möchte, begibt sich ein Stockwerk höher in die glasummantelte „Skybox“. Hier kann sogar von der Sauna aus dem Weitblick gefrönt werden. Und auf der anschließenden Terrasse sorgen feste (Holz) und organische (Pflanzen) Wände für geringmögliche Ein- und bestmögliche Aussichten.
junger_beer architektur
alexander krittl / bockfließ

Galleria del progetto

Ultimi prodotti nel nostro catalogo

Mostra il prodotto Frida Work Booth del produttore Boss Design
Mostra il prodotto Skyfall del produttore Quasar